Holmefield Road, Ripon
By Sherringtons Estate Agents
£ 160,000
Reviews
3 out of 5 stars
Sherringtons Estate Agents says ..
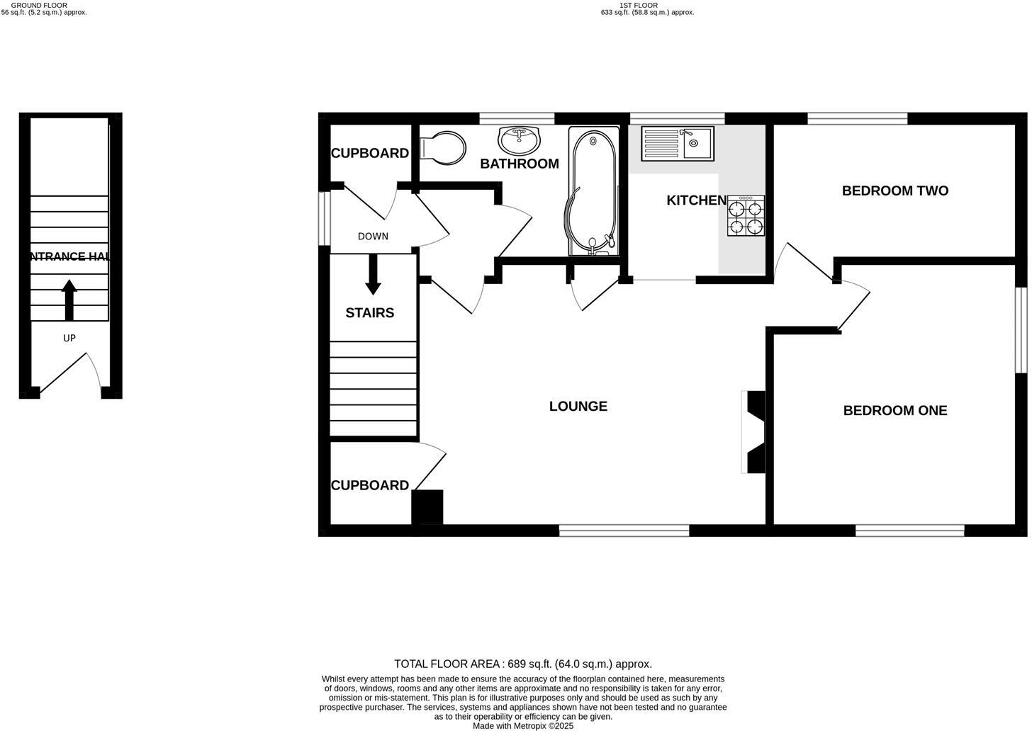
A great opportunity to purchase a spacious two bedroom first floor flat situated in a popular location to the south of Ripon with easy access to commuter links and amenities. The property benefiting from a single garage and driveway providing parking, enclosed lawned and patio garden, double glaz...
Property Oracle says ..
This property is a 2 bedroom, 1 bathroom house located on Holmefield Road in Ripon, North Yorkshire. The property benefits from a small garden. The property appears to be in reasonable condition, although some minor cosmetic improvements could be made. The location is convenient to several primary schools, with Moorside Primary School & Nursery being the closest at approximately 0.50 KM. There is no nearby transportation information provided. The list price of £160,000 seems reasonable considering comparable properties in the area, although more information on square footage of similar properties would be beneficial to provide a more precise analysis.
Therefore, we give this property 6 / 10. *Disclaimer: This is our option and does constitute a recommendation or financial advice. Do your own research. *
- Price
- 7
- Condition
- 7
- Location
- 7
- Land
- 6
- Bedrooms
- 2
- Bathrooms
- 1
- Sqft (est)
- 733.88
- Lot (est)
- 689.00
The heatmap indicates the level of crime in the area. The color of the heatmap indicates the crime severity and recency.
Metrics Year-on-Year
- Average area value
- 688,333.00 £Decreased by 8.54 %
- Est sale value
- 536,466.28 £Increased by 26.03 %
- Average area rental value
- 1,650.00 £/moDecreased by 35.09 %
- Est letting value
- 733.88 £/moUnchanged by 0.00 %
- Est rental Yield
- 2.88 %Decreased by 28.89 %
- Crime Rate
- 10.00 %Unchanged by 0.00 %
Agent Activity
Sherringtons Estate Agents created the listing.
Nearby Schools
| Name | Type | Ofsted | Distance |
|---|---|---|---|
| Moorside Primary School & Nursery | Community School | Good | 0.50 KM |
| Outwood Primary Academy Greystone | Academy Sponsor Led | 0.64 KM | |
| St Wilfrid'S Catholic Primary School | Voluntary Aided School | Outstanding | 1.01 KM |
| Holy Trinity Cofe Junior School | Voluntary Controlled School | Good | 1.02 KM |
| Holy Trinity Cofe Infant School | Voluntary Controlled School | Requires improvement | 1.06 KM |
Images
Nearby Streets
| Name | Average Price | Average Sqft | Distance |
|---|---|---|---|
| Harewood Road | £ 0 | 0 | 0.00 KM |
| King George Road | £ 175,000 | 0 | 0.00 KM |
| Grove Close | £ 0 | 0 | 0.00 KM |
| Southgate Avenue | £ 0 | 0 | 0.00 KM |
| Redshaw Close | £ 0 | 0 | 0.00 KM |
Nearby Listings
| Address | Price | Type | Score | Distance |
|---|---|---|---|---|
| Holmefield Road, Ripon | £ 160,000 | BUY | 6 / 10 | 0.00 KM |
| Holmefield Road, Ripon, North Yorkshire, HG4 | £ 15,000 | BUY | Unknown | 0.07 KM |
| Holmefield Road, Ripon | £ 250,000 | BUY | 7 / 10 | 0.14 KM |
| Holmefield Road, Ripon | £ 325,000 | BUY | 7 / 10 | 0.14 KM |
| Harewood Road, Ripon | £ 550,000 | BUY | 7 / 10 | 0.18 KM |
Nearby Properties
| Address | Price | Distance |
|---|---|---|
| 40 Holmefield Road | £ 145,000 | 0.06 KM |
| 78 Holmefield Road | £ 171,950 | 0.06 KM |
| 45 Holmefield Road | £ 125,000 | 0.06 KM |
| 42 Holmefield Road | £ 162,000 | 0.06 KM |
| 37 Holmefield Road | £ 120,000 | 0.06 KM |