Wolseley Road, Plymouth
By Mayer Estate Agents
£ 135,000
Reviews
3 out of 5 stars
Mayer Estate Agents says ..
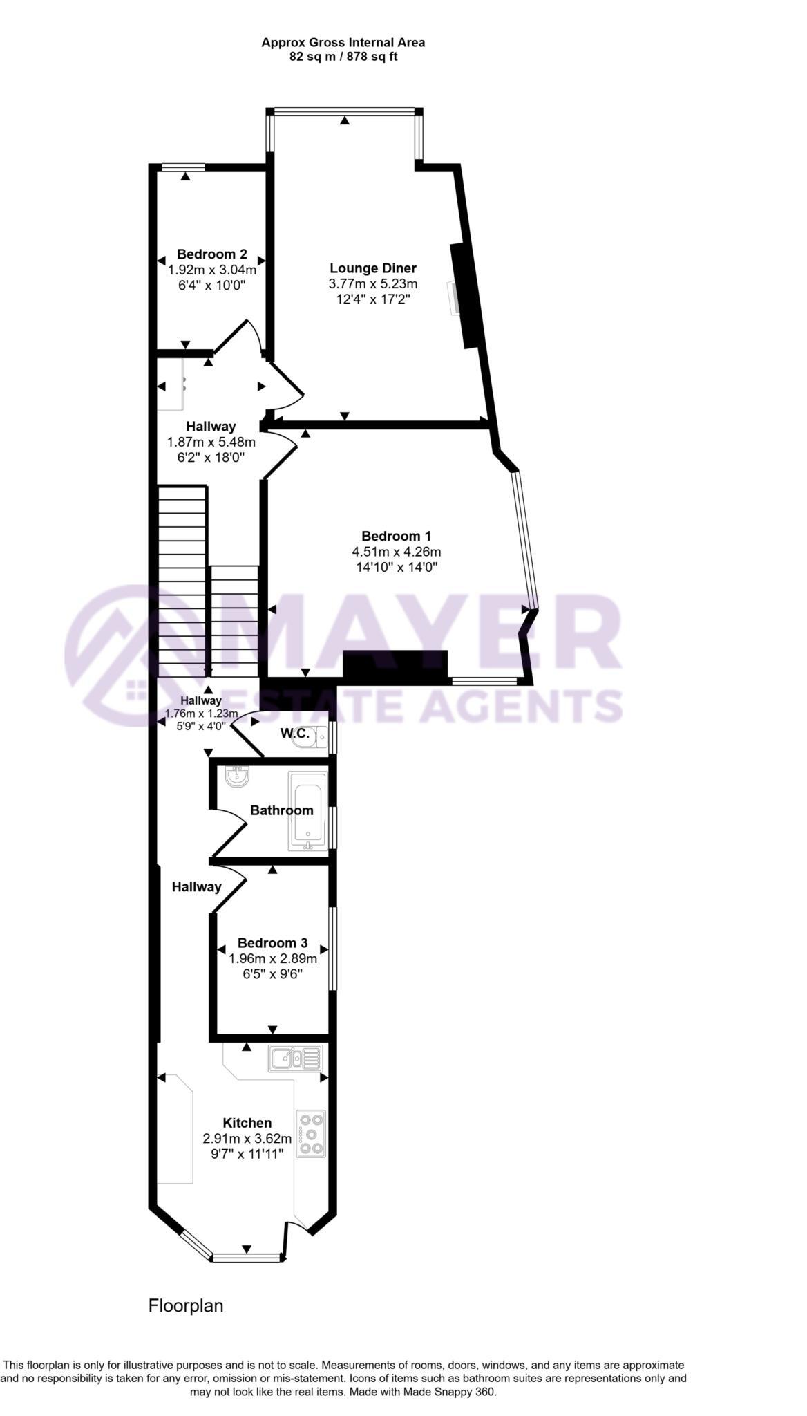
Spacious 3-bed first floor flat with private access & garden. Split-level layout, bright interiors, feature lounge/diner, flexible rooms for home office or guests. Close to Dockyard, schools & transport. No onward chain ideal for a swift move.
Property Oracle says ..
This is a three-bedroom apartment located on Wolseley Road in Stoke, Plymouth. Marketed by Mayer Estate Agents, the property is listed at £135,000. The apartment benefits from a garden and is situated in a convenient location close to schools and transport links. While the property is in reasonable condition, it would benefit from some modernisation. The price is competitive, making it an attractive option for first-time buyers or investors looking to add value through renovation.
Therefore, we give this property 7 / 10. *Disclaimer: This is our option and does constitute a recommendation or financial advice. Do your own research. *
- Price
- 9
- Condition
- 6
- Location
- 7
- Land
- 7
- Bedrooms
- 3
- Bathrooms
- 1
The heatmap indicates the level of crime in the area. The color of the heatmap indicates the crime severity and recency.
Metrics Year-on-Year
- Average area value
- 308,693.00 £Increased by 9.77 %
- Average area rental value
- 1,292.00 £/moIncreased by 17.03 %
- Est rental Yield
- 5.02 %Increased by 6.58 %
- Crime Rate
- 10.00 %Unchanged by 0.00 %
Agent Activity
Mayer Estate Agents created the listing.
Nearby Schools
| Name | Type | Ofsted | Distance |
|---|---|---|---|
| Ford Primary School | Academy Converter | 0.33 KM | |
| Sure Start Lark Children'S Centre | Children's Centre | 0.57 KM | |
| Mayflower Academy | Academy Sponsor Led | Outstanding | 0.90 KM |
| Ham Drive Nursery School And Day Care | Local Authority Nursery School | Good | 0.90 KM |
| Scott Medical And Healthcare College | Studio Schools | Good | 0.94 KM |
Images
Nearby Streets
| Name | Average Price | Average Sqft | Distance |
|---|---|---|---|
| Allenby Road | £ 175,000 | 0 | 0.00 KM |
| Dingle Road | £ 0 | 0 | 0.00 KM |
| Church Street | £ 280,000 | 0 | 0.00 KM |
| Pasley Street East | £ 225,000 | 0 | 0.00 KM |
| Elmcroft | £ 0 | 0 | 0.00 KM |
Nearby Transport
| Name | NLC | TLC | Distance |
|---|---|---|---|
| Devonport | 3579 | DPT | 1.20 KM |
| Dockyard (Devonport) | 3588 | DOC | 1.37 KM |
| Keyham | 3571 | KEY | 1.66 KM |
| Plymouth | 3580 | PLY | 2.61 KM |
| St Budeaux Ferry Road | 3590 | SBF | 2.87 KM |
Nearby Listings
| Address | Price | Type | Score | Distance |
|---|---|---|---|---|
| Wolseley Road, Plymouth | £ 135,000 | BUY | 7 / 10 | 0.00 KM |
| Wadham Terrace, Plymouth | £ 220,000 | BUY | 6 / 10 | 0.11 KM |
| Wolseley Road, Plymouth | £ 350,000 | BUY | 6 / 10 | 0.12 KM |
| Alexandra Road, Ford, PL2 3BU | £ 230,000 | BUY | Unknown | 0.15 KM |
| Alexandra Road, Ford, Plymouth | £ 120,000 | BUY | Unknown | 0.15 KM |
Nearby Properties
| Address | Price | Distance |
|---|---|---|
| 2 Greatlands Place | £ 125,000 | 0.10 KM |
| 14 Greatlands Place | £ 124,000 | 0.10 KM |
| 6 Greatlands Place | £ 123,000 | 0.10 KM |
| 8 Greatlands Place | £ 80,500 | 0.10 KM |
| 101 Wolseley Road | £ 170,000 | 0.12 KM |