Sowerbys says ..
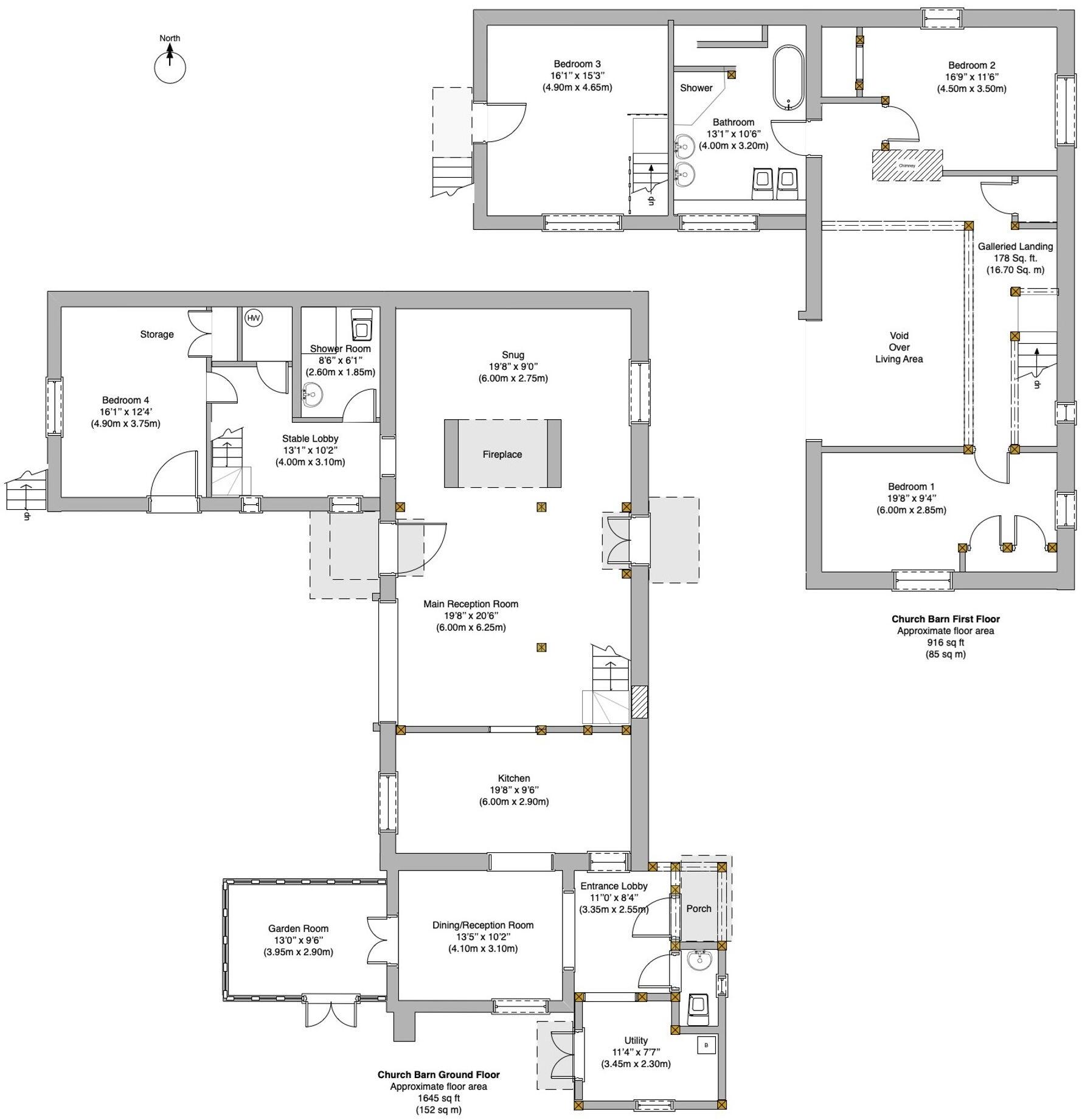
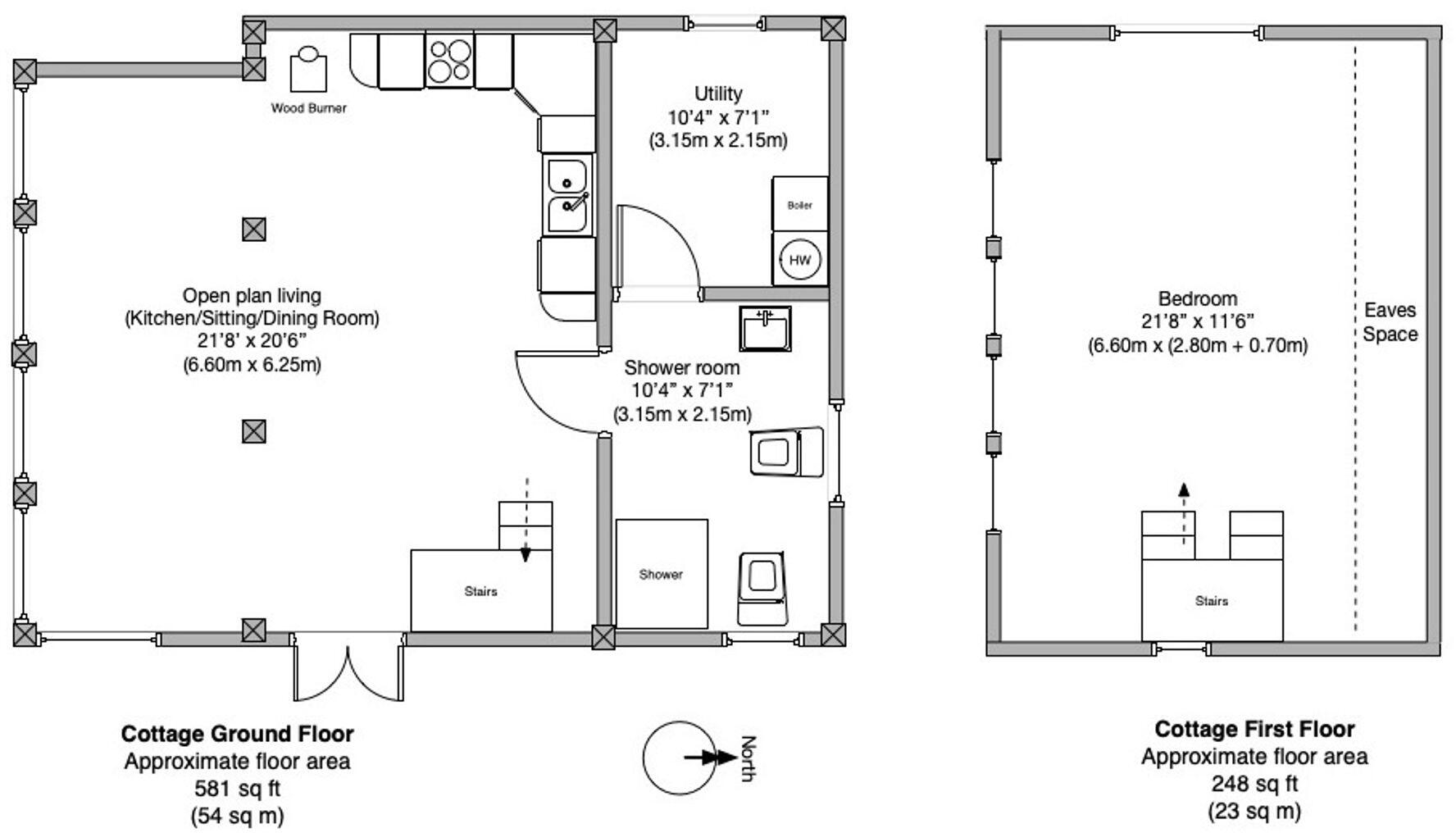
GUIDE PRICE £1,000,000 - £1,100,000. A stunning five bedroom character barn boasting impeccably renovated interiors, renovated to the most exacting of standards. Ground floor bedrooms, a detached cottage annexe and an enchanting plot of 0.75 acres (STS) make this a unique home to cater for all ge...
Property Oracle says ..
Therefore, we give this property 7 / 10. *Disclaimer: This is our option and does constitute a recommendation or financial advice. Do your own research. *
- Price
- 6
- Condition
- 8
- Location
- 6
- Land
- 8
- Bedrooms
- 5
- Bathrooms
- 3
- Sqft (est)
- 2,505.60
The heatmap indicates the level of crime in the area. The color of the heatmap indicates the crime severity and recency.
Metrics Year-on-Year
- Average area value
- 396,111.00 £Decreased by 1.72 %
- Est sale value
- 1,047,340.80 £Increased by 57.74 %
- Average area rental value
- 1,217.00 £/moIncreased by 20.26 %
- Est letting value
- 2,505.60 £/mo
- Est rental Yield
- 3.69 %Increased by 22.59 %
- Crime Rate
- 0.00 %
from 403,045.00 £
from 663,984.00 £
from 1,012.00 £/mo
from 0.00 £/mo
from 3.01 %
from 0.00 %
Agent Activity
Sowerbys created the listing.
Nearby Schools
| Name | Type | Ofsted | Distance |
|---|---|---|---|
| Bacton Primary School | Community School | Good | 2.45 KM |
| East Ruston Infant School & Nursery | Academy Converter | 2.65 KM | |
| The Stables Independent School | Other Independent Special School | Requires improvement | 4.77 KM |
| Happisburgh Primary And Early Years School | Voluntary Aided School | Requires improvement | 5.66 KM |
| Stalham Infant School And Nursery | Academy Converter | 7.29 KM |
Images
Nearby Streets
| Name | Average Price | Average Sqft | Distance |
|---|---|---|---|
| Rookery Farm Road | £ 0 | 0 | 0.00 KM |
| Manor Farm Road | £ 0 | 0 | 0.00 KM |
| Crossways Lane | £ 1,150,000 | 0 | 0.00 KM |
Nearby Transport
| Name | NLC | TLC | Distance |
|---|---|---|---|
| Worstead | 7326 | WRT | 9.98 KM |
Nearby Listings
| Address | Price | Type | Score | Distance |
|---|---|---|---|---|
| Ridlington | £ 1,000,000 | BUY | 7 / 10 | 0.00 KM |
| Ridlington | £ 550,000 | BUY | 6 / 10 | 0.18 KM |
| Ridlington | £ 350,000 | BUY | 7 / 10 | 0.23 KM |
| North Walsham Road, Ridlington, North Walsham | £ 450,000 | BUY | 6 / 10 | 0.31 KM |
| The Street, RIDLINGTON, Norwich, NR28 | £ 700,000 | BUY | 7 / 10 | 0.35 KM |
Nearby Properties
| Address | Price | Distance |
|---|---|---|
| Cornucopia | £ 110,000 | 0.25 KM |
| East Haven | £ 165,000 | 0.25 KM |
| Bramley Lodge | £ 350,000 | 0.25 KM |
| Three Willows | £ 310,000 | 0.25 KM |
| Sherwood | £ 150,000 | 0.25 KM |