TO
Darwin Court, Darwin Crescent, Torquay, Devon, TQ2
By Torbay Accommodation Bureau
£ 725
Torbay Accommodation Bureau says ..
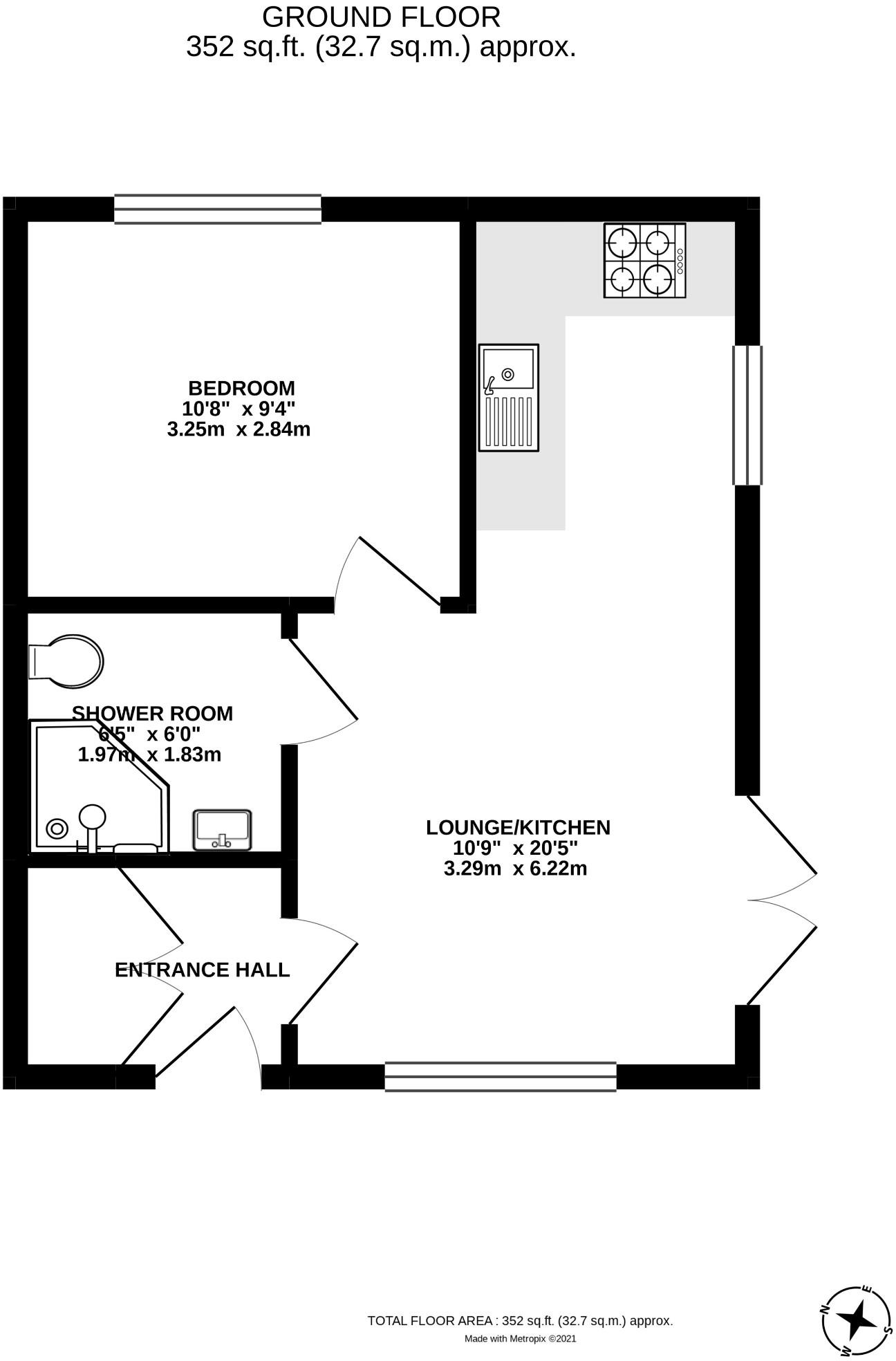
A modern purpose built 1 bed ground flat located on the popular Evolve development by Cavanna Homes enjoying the benefit of a private lawned garden fully self contained with its own private entrance. With allocated parking the property is ideally situated for Torbay Hospital and The Willows.
- Bedrooms
- 1
- Bathrooms
- 1
The heatmap indicates the level of crime in the area. The color of the heatmap indicates the crime severity and recency.
Metrics Year-on-Year
- Average area value
- 271,992.00 £Decreased by 13.54 %
- Average area rental value
- 992.00 £/moDecreased by 5.88 %
- Est rental Yield
- 4.38 %Increased by 8.96 %
- Crime Rate
- 7.00 %Unchanged by 0.00 %
from 314,570.00 £
from 1,054.00 £/mo
from 4.02 %
from 7.00 %
Agent Activity
Torbay Accommodation Bureau created the listing.
Nearby Schools
| Name | Type | Ofsted | Distance |
|---|---|---|---|
| Barton Hill Academy | Academy Sponsor Led | Good | 0.49 KM |
| The Burton Academy | Academy Alternative Provision Sponsor Led | Requires improvement | 0.61 KM |
| Phoenix Bay School | Other Independent Special School | 0.93 KM | |
| Watcombe Children'S Centre | Children's Centre Linked Site | 1.38 KM | |
| Watcombe Primary School | Community School | Good | 1.47 KM |
Images
Nearby Streets
| Name | Average Price | Average Sqft | Distance |
|---|---|---|---|
| Broom Park | £ 650,000 | 0 | 0.00 KM |
| Pengelly Court | £ 0 | 0 | 0.00 KM |
| Rue Orchard Lodge | £ 250,000 | 0 | 0.00 KM |
| Lea Road | £ 300,000 | 0 | 0.00 KM |
| Footland Lane | £ 0 | 0 | 0.00 KM |
Nearby Transport
| Name | NLC | TLC | Distance |
|---|---|---|---|
| Torre | 3432 | TRR | 2.37 KM |
| Torquay | 3434 | TQY | 3.67 KM |
| Paignton | 3427 | PGN | 7.06 KM |
| Newton Abbot | 3426 | NTA | 7.43 KM |
| Teignmouth | 3430 | TGM | 7.97 KM |
Nearby Listings
| Address | Price | Type | Score | Distance |
|---|---|---|---|---|
| Kingsley Avenue, Torquay, TQ2 | £ 750 | RENT | Unknown | 0.14 KM |
| Leeward Lane, Torquay, TQ2 | £ 1,400 | RENT | Unknown | 0.29 KM |
| Pengelly Way, Torquay, Devon, TQ2 | £ 775 | RENT | Unknown | 0.32 KM |
| Fore Street, Barton, Torquay, TQ2 8DP | £ 875 | RENT | Unknown | 0.39 KM |
| Willowfield Road, Torquay, TQ2 8GS | £ 950 | RENT | Unknown | 0.45 KM |
Nearby Properties
| Address | Price | Distance |
|---|---|---|
| 67 Darwin Crescent | £ 240,000 | 0.07 KM |
| 45 Darwin Crescent | £ 204,250 | 0.07 KM |
| 7 Darwin Crescent | £ 153,000 | 0.07 KM |
| 12 Darwin Crescent | £ 180,000 | 0.07 KM |
| 6 Darwin Crescent | £ 220,000 | 0.07 KM |