Northwich Road, Centennial Place, WA16
By Stuart Rushton & Co
£ 480,000
Reviews
3 out of 5 stars
Stuart Rushton & Co says ..
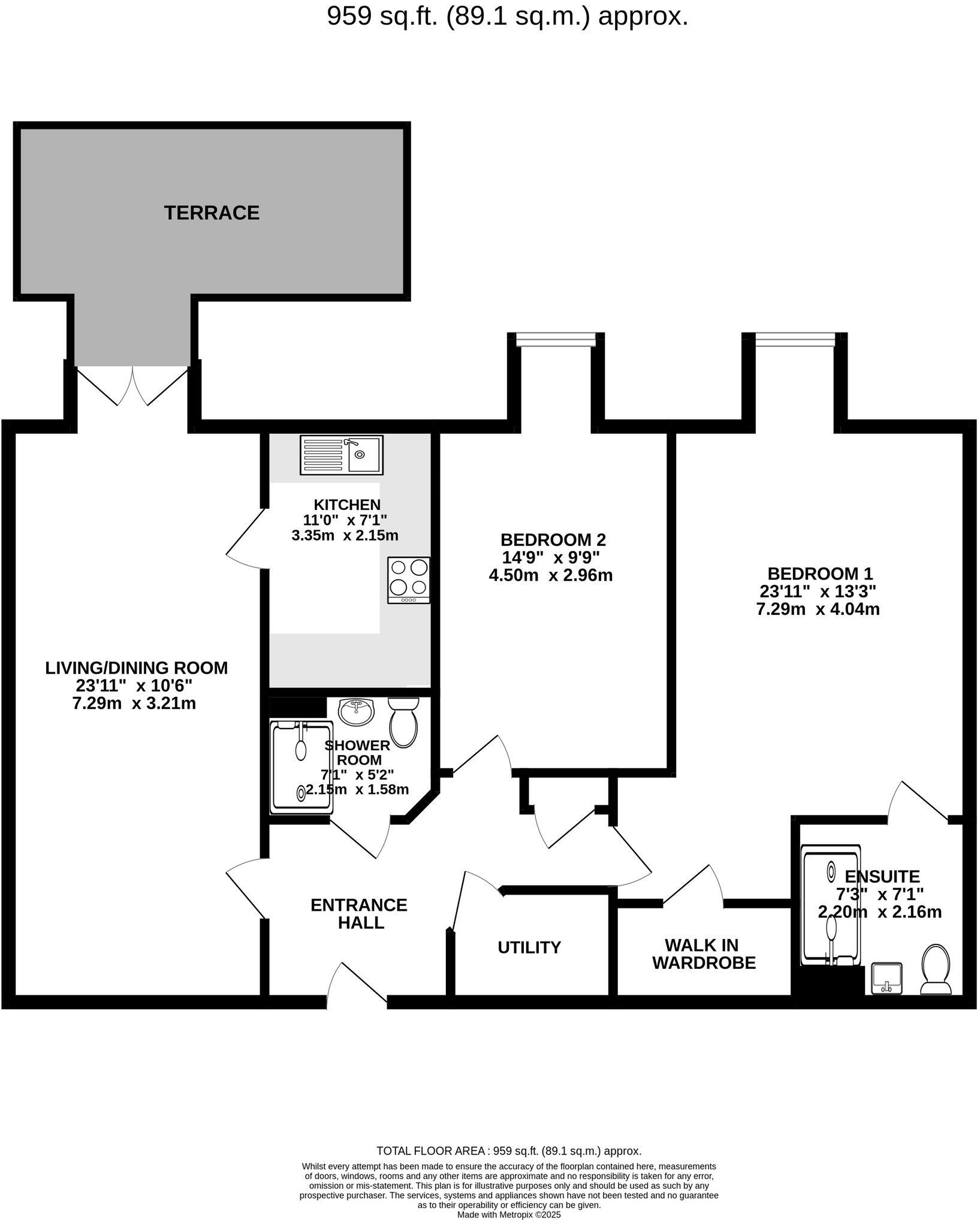
Effortless luxury living in the prestigious McCarthy & Stone Centennial Place. Designed for over-60s, this 2-bed, 2-shower apartment features open-plan living, modern kitchen, spacious bedrooms, walk-in wardrobe, large terrace, lift access. Residents enjoy social lounge, landscaped gardens, parki...
Property Oracle says ..
This is a well-presented, modern retirement property in a desirable location. The property benefits from communal gardens and parking. The price seems reasonable, but the retirement property status may limit its appeal to some buyers.
Therefore, we give this property 7 / 10. *Disclaimer: This is our option and does constitute a recommendation or financial advice. Do your own research. *
- Price
- 6
- Condition
- 9
- Location
- 7
- Land
- 6
- Bedrooms
- 2
- Bathrooms
- 2
The heatmap indicates the level of crime in the area. The color of the heatmap indicates the crime severity and recency.
Metrics Year-on-Year
- Average area value
- 818,019.00 £Decreased by 6.49 %
- Average area rental value
- 3,565.00 £/moIncreased by 27.19 %
- Est rental Yield
- 5.23 %Increased by 35.84 %
- Crime Rate
- 8.00 %Unchanged by 0.00 %
Agent Activity
Stuart Rushton & Co created the listing.
Nearby Schools
| Name | Type | Ofsted | Distance |
|---|---|---|---|
| Cheshire Studio School | Studio Schools | Good | 0.69 KM |
| Knutsford Academy | Academy Converter | Good | 0.69 KM |
| Yorston Lodge School | Other Independent School | 0.95 KM | |
| Egerton Primary School | Academy Converter | 1.15 KM | |
| Bexton Primary School | Academy Converter | 1.57 KM |
Images
Nearby Streets
| Name | Average Price | Average Sqft | Distance |
|---|---|---|---|
| Devis Way | £ 846,407 | 0 | 0.00 KM |
| Lawrence Way | £ 895,000 | 0 | 0.00 KM |
| Curzon Avenue | £ 569,950 | 0 | 0.00 KM |
| Bertram Place | £ 252,940 | 0 | 0.00 KM |
| Warren Close | £ 185,800 | 0 | 0.00 KM |
Nearby Transport
| Name | NLC | TLC | Distance |
|---|---|---|---|
| Knutsford | 2848 | KNF | 1.68 KM |
| Plumley | 2308 | PLM | 4.88 KM |
| Mobberley | 2849 | MOB | 6.51 KM |
| Ashley | 2850 | ASY | 7.64 KM |
| Hale (Manchester) | 2845 | HAL | 9.40 KM |
Nearby Listings
| Address | Price | Type | Score | Distance |
|---|---|---|---|---|
| Apartment 9, Emmeline Court, Northwich Road, Knutsford, WA16 | £ 204,000 | BUY | Unknown | 0.00 KM |
| Northwich Road, Centennial Place, WA16 | £ 480,000 | BUY | 7 / 10 | 0.00 KM |
| Apartment 6, Emmeline Court, Northwich Road, Knutsford, WA16 | £ 165,000 | BUY | Unknown | 0.00 KM |
| Northwich Road, Centennial Place, WA16 | £ 499,950 | BUY | 7 / 10 | 0.00 KM |
| Apartment 10, Emmeline Court, Northwich Road, Knutsford, WA16 | £ 37,500 | BUY | Unknown | 0.00 KM |
Nearby Properties
| Address | Price | Distance |
|---|---|---|
| 26 Northwich Road | £ 395,000 | 0.18 KM |
| 14 Northwich Road | £ 450,000 | 0.18 KM |
| 8 Northwich Road | £ 217,500 | 0.18 KM |
| 18 Northwich Road | £ 250,800 | 0.18 KM |
| 20 Northwich Road | £ 200,000 | 0.18 KM |