Phillip Shaw says ..
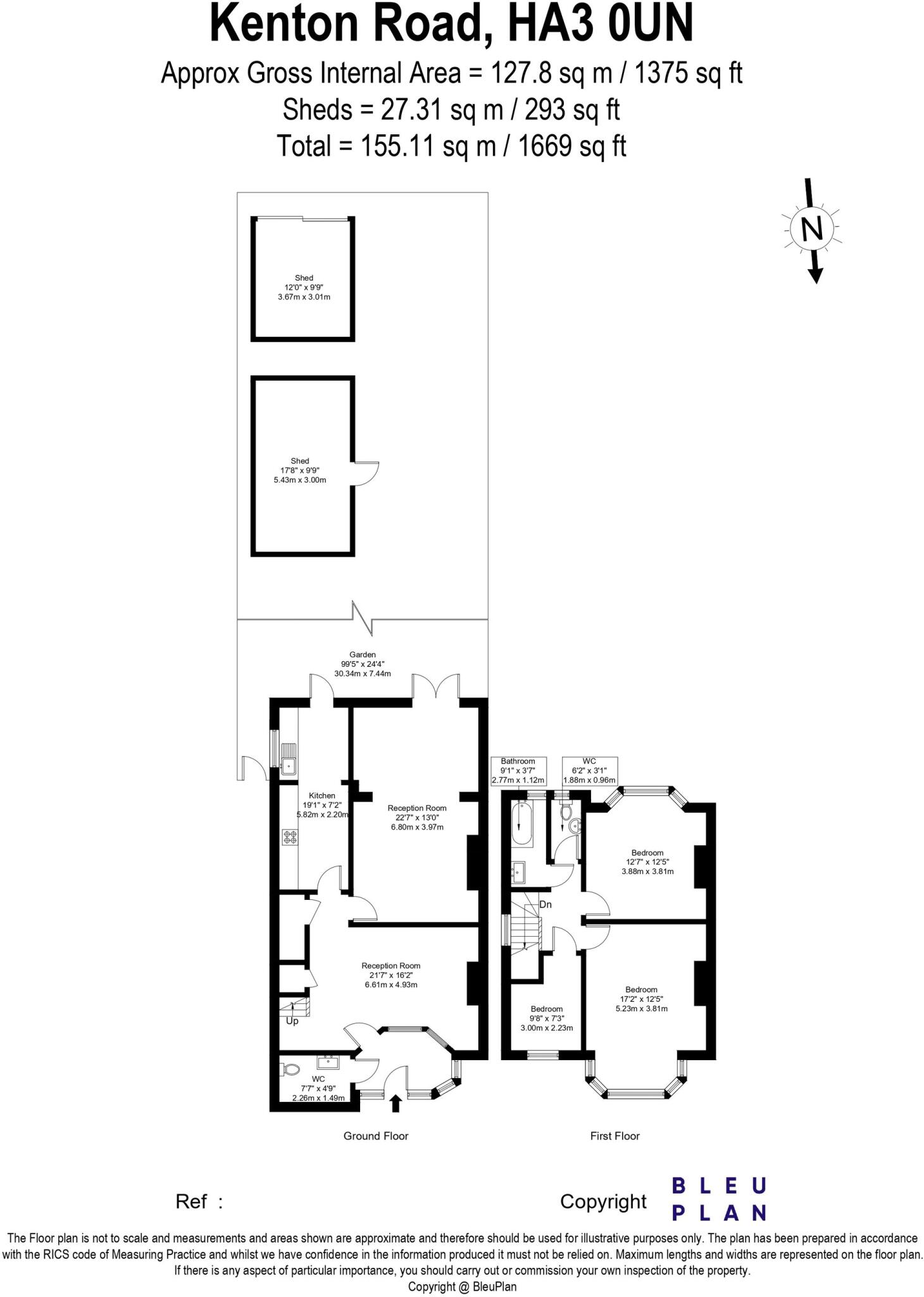
An excellent opportunity to purchase this three-bedroom semi-detached home, ideally located on the popular Kenton Road.
Property Oracle says ..
Therefore, we give this property 6 / 10. *Disclaimer: This is our option and does constitute a recommendation or financial advice. Do your own research. *
- Price
- 6
- Condition
- 6
- Location
- 8
- Land
- 7
- Bedrooms
- 3
- Bathrooms
- 1
- Sqft (est)
- 1,313.95
The heatmap indicates the level of crime in the area. The color of the heatmap indicates the crime severity and recency.
Metrics Year-on-Year
- Average area value
- 200,667.00 £Decreased by 60.33 %
- Est sale value
- 332,429.35 £Decreased by 29.53 %
- Average area rental value
- 1,454.00 £/moDecreased by 8.95 %
- Est letting value
- 1,313.95 £/moUnchanged by 0.00 %
- Est rental Yield
- 8.70 %Increased by 129.55 %
- Crime Rate
- 5.00 %Unchanged by 0.00 %
from 505,808.00 £
from 471,708.05 £
from 1,597.00 £/mo
from 1,313.95 £/mo
from 3.79 %
from 5.00 %
Agent Activity
Phillip Shaw created the listing.
Nearby Schools
| Name | Type | Ofsted | Distance |
|---|---|---|---|
| Uxendon Manor Primary School | Community School | Good | 0.37 KM |
| Claremont High School | Academy Converter | Outstanding | 0.41 KM |
| Glebe Primary School | Community School | Outstanding | 0.57 KM |
| Kenmore Park Children'S Centre | Children's Centre Linked Site | 0.77 KM | |
| St Bernadette'S Catholic Primary School | Academy Converter | 0.78 KM |
Images
Nearby Streets
| Name | Average Price | Average Sqft | Distance |
|---|---|---|---|
| D'Arcy Drive | £ 0 | 0 | 0.00 KM |
| Cranleigh Gardens | £ 0 | 0 | 0.00 KM |
| Westfield Drive | £ 0 | 0 | 0.00 KM |
| Glebe Lane | £ 355,000 | 0 | 0.00 KM |
| Court Close | £ 0 | 0 | 0.00 KM |
Nearby Transport
| Name | NLC | TLC | Distance |
|---|---|---|---|
| South Kenton | 1453 | SOK | 2.22 KM |
| Kenton | 1399 | KNT | 2.28 KM |
| North Wembley | 1422 | NWB | 2.78 KM |
| Wembley Stadium | 1509 | WCX | 3.79 KM |
| Wembley Central | 1423 | WMB | 3.81 KM |
Nearby Listings
| Address | Price | Type | Score | Distance |
|---|---|---|---|---|
| Kenton Road, Harrow, HA3 | £ 680,000 | BUY | 6 / 10 | 0.00 KM |
| Kenton Road, Harrow, Middlesex, HA3 | £ 719,500 | BUY | 5 / 10 | 0.00 KM |
| Kenton Road, Harrow | £ 695,000 | BUY | 7 / 10 | 0.01 KM |
| Kenton Road, Kenton, HA3 0UN | £ 719,500 | BUY | 6 / 10 | 0.01 KM |
| Kenton Road, Harrow, HA3 0UN | £ 650,000 | BUY | 7 / 10 | 0.01 KM |
Nearby Properties
| Address | Price | Distance |
|---|---|---|
| 469 Kenton Road | £ 600,000 | 0.01 KM |
| 489 Kenton Road | £ 120,000 | 0.01 KM |
| 467 Kenton Road | £ 525,000 | 0.01 KM |
| 491 Kenton Road | £ 120,000 | 0.03 KM |
| 442 Kenton Road | £ 320,000 | 0.06 KM |