Flavel Court, Austrey, CV9
Next Place Property Agents Limited logo

Flavel Court, Austrey, CV9

By Next Place Property Agents Limited

£ 400,000

Reviews

3 out of 5 stars

Next Place Property Agents Limited says ..

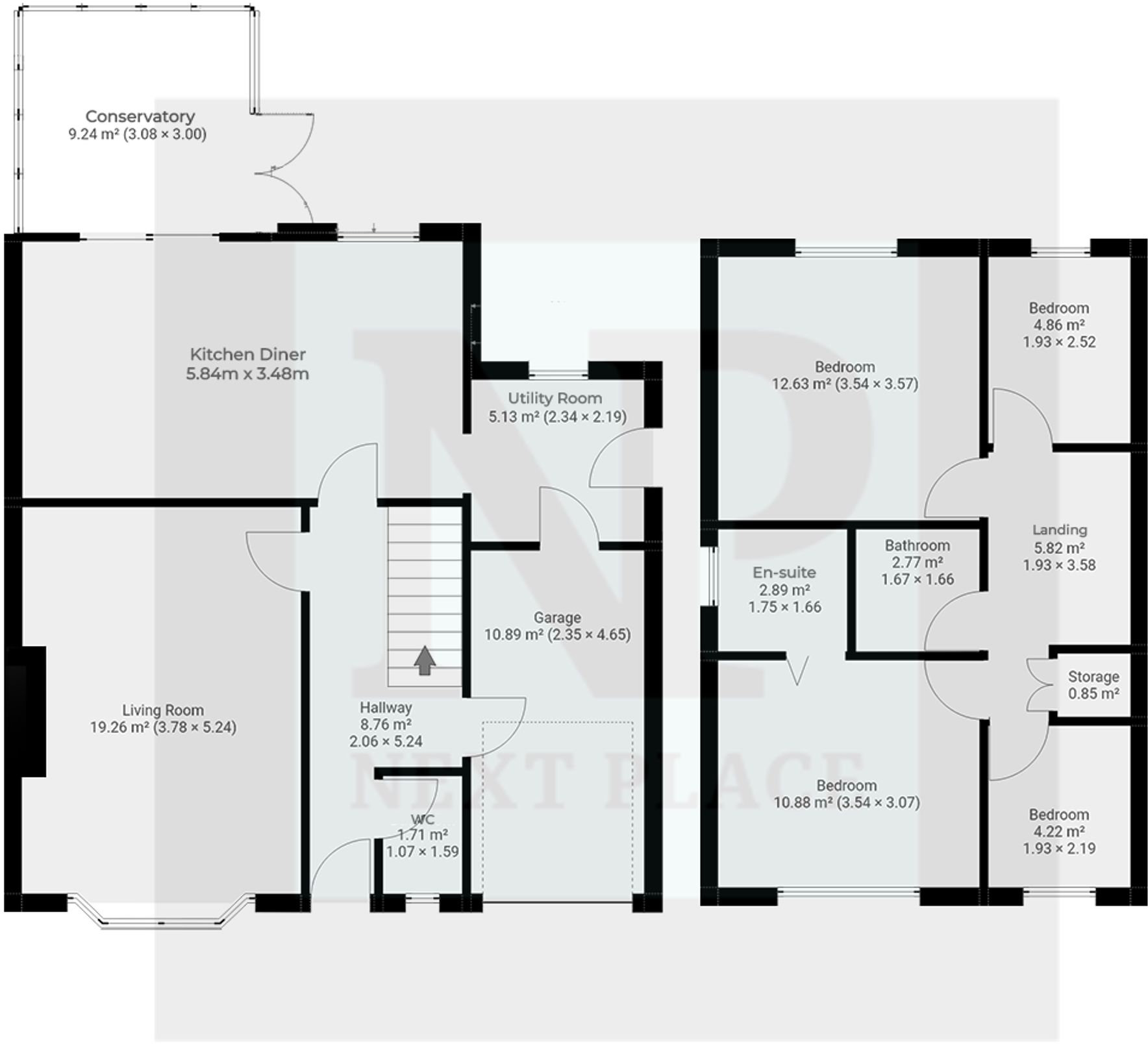
Nestled in the heart of Austrey, a sought-after North Warwickshire village the esteemed Next Place Property Agents proudly present this exquisite 4-bedroom detached family residence boasting generous size family accommodation in a tranquil cul-de-sac setting.

Property Oracle says ..

This is a four-bedroom detached house in Austrey, Warwickshire. The property is in good condition and has a modern kitchen and bathrooms. It has a good-sized garden with a patio area and a shed. The property is located close to local schools and transport links. The listing price seems reasonable for the area and the type of property.

Therefore, we give this property 7 / 10. *Disclaimer: This is our option and does constitute a recommendation or financial advice. Do your own research. *

Price
7
Condition
7
Location
7
Land
7
Bedrooms
4
Bathrooms
2

The heatmap indicates the level of crime in the area. The color of the heatmap indicates the crime severity and recency.

Metrics Year-on-Year

Average area value
262,833.00 £
Decreased by 38.15 %
from 424,924.00 £
Average area rental value
1,350.00 £/mo
Increased by 3.85 %
from 1,300.00 £/mo
Est rental Yield
6.16 %
Increased by 67.85 %
from 3.67 %
Crime Rate
129.00 %
Unchanged by 0.00 %
from 129.00 %

Agent Activity

  • Next Place Property Agents Limited created the listing.

Nearby Schools

NameTypeOfstedDistance
Austrey Cofe Primary SchoolAcademy ConverterGood0.36 KM
Newton Regis Cofe Primary SchoolAcademy ConverterGood2.44 KM
Warton Nethersole'S Cofe Primary SchoolAcademy ConverterGood3.21 KM
Sir John Moore Church Of England Primary SchoolVoluntary Aided SchoolGood4.84 KM
The Nethersole Cofe AcademyAcademy Sponsor LedGood5.77 KM

Images

Entrance Hallway Kitchen Dining Room Kitchen Dining Room Conservatory Master Bedroom Master Bedroom Family Bathroom En-suite Entrance Hallway Guest WC Living Room Living Room Kitchen Dining Room Utility Room Utility Room Bedroom Two Bedroom Two Bedroom Three Bedroom Three Bedroom Four Bedroom Four

Nearby Streets

NameAverage PriceAverage SqftDistance
Elms Drive £ 000.00 KM
The Green £ 000.00 KM
Wolfric Avenue £ 390,25000.00 KM
Orton Lane £ 000.00 KM

Nearby Transport

NameNLCTLCDistance
Polesworth1078PSW5.76 KM
Atherstone1074ATH8.70 KM

Nearby Listings

AddressPriceTypeScoreDistance
Flavel Court, Austrey, CV9 £ 400,000BUY7 / 100.00 KM
Flavel Court, Austrey, CV9 £ 390,000BUY7 / 100.00 KM
Newborough Close, Austrey £ 379,950BUY7 / 100.09 KM
Saddlers Cottage, Warton Lane, Austrey, Warwickshire £ 1,000,000BUY7 / 100.12 KM
Newborough Close, Austrey, Atherstone, CV9 £ 475,000BUY7 / 100.15 KM

Nearby Properties

AddressPriceDistance
7 Flavel Court £ 249,9500.01 KM
3 Flavel Court £ 243,0000.01 KM
9 Orchard Close £ 327,0000.08 KM
14 Orchard Close £ 250,0000.08 KM
17 Orchard Close £ 300,0000.08 KM