Yopa says ..
A 2 bedroom semi detached character home that needs updating and comes with excellent potential to extend to the side and rear and offered for sale with no onward chain. The property is being sold via a modern method of auction. Please call or visit YOPA Online Auctions for more information.
Property Oracle says ..
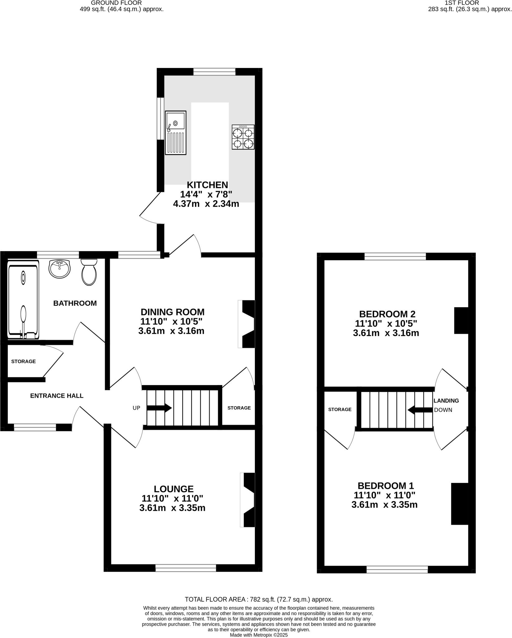
This property is a 2-bedroom, 1-bathroom semi-detached house located in Tongham, Farnham, Surrey. The asking price of £350,000 is below the average price for the area (£466,314), and the property is smaller than the average size (641 sqft vs 1024 sqft). However, nearby comparable properties on Poyle Road have sold for between £260,450 and £700,000, suggesting some price variation in the area. The property benefits from a garden, although it appears to be relatively small. The condition of the property appears to be fair, with some areas needing updating or renovation, particularly in the bathroom and kitchen. The location is convenient, with several schools and train stations within a reasonable distance. Overall, the property represents a potentially good value option for buyers who are willing to undertake some modernisation work.
Therefore, we give this property 6 / 10. *Disclaimer: This is our option and does constitute a recommendation or financial advice. Do your own research. *
- Price
- 7
- Condition
- 6
- Location
- 7
- Land
- 5
- Bedrooms
- 2
- Bathrooms
- 1
- Sqft (est)
- 641.38
- Lot (est)
- 782.00
The heatmap indicates the level of crime in the area. The color of the heatmap indicates the crime severity and recency.
Metrics Year-on-Year
- Average area value
- 415,000.00 £Decreased by 13.65 %
- Est sale value
- 364,303.84 £Increased by 69.05 %
- Average area rental value
- 1,095.00 £/moDecreased by 45.71 %
- Est letting value
- 641.38 £/moUnchanged by 0.00 %
- Est rental Yield
- 3.17 %Decreased by 37.10 %
- Crime Rate
- 13.00 %Unchanged by 0.00 %
Agent Activity
Yopa created the listing.
Nearby Schools
| Name | Type | Ofsted | Distance |
|---|---|---|---|
| St Paul'S Cofe Infant School | Voluntary Controlled School | Good | 0.17 KM |
| St Paul'S C/E Infant School & Sure Start Children'S Centre | Children's Centre | 0.34 KM | |
| Ash Manor School | Community School | Good | 0.83 KM |
| Walsh Cofe Junior School | Voluntary Controlled School | Requires improvement | 1.17 KM |
| Walsh Memorial Cofe Controlled Infant School | Voluntary Controlled School | Outstanding | 1.17 KM |
Images
Nearby Streets
| Name | Average Price | Average Sqft | Distance |
|---|---|---|---|
| Northside Court | £ 287,500 | 0 | 0.00 KM |
| Church Close | £ 807,500 | 0 | 0.00 KM |
| The Woodridges | £ 0 | 0 | 0.00 KM |
| Hammersley Drive | £ 0 | 0 | 0.00 KM |
| The Moors | £ 0 | 0 | 0.00 KM |
Nearby Transport
| Name | NLC | TLC | Distance |
|---|---|---|---|
| Ash | 5641 | ASH | 2.10 KM |
| Aldershot | 5623 | AHT | 4.16 KM |
| Ash Vale | 5547 | AHV | 4.21 KM |
| North Camp | 5636 | NCM | 4.66 KM |
| Wanborough | 5639 | WAN | 6.36 KM |
Nearby Listings
| Address | Price | Type | Score | Distance |
|---|---|---|---|---|
| Poyle Road, Tongham, Farnham, GU10 | £ 350,000 | BUY | 6 / 10 | 0.00 KM |
| Poyle Road, Tongham, Farnham, Surrey, GU10 | £ 600,000 | BUY | 7 / 10 | 0.01 KM |
| Poyle Road, Tongham, Farnham | £ 450,000 | BUY | 7 / 10 | 0.05 KM |
| Poyle Road, Tongham, Farnham, Surrey, GU10 | £ 850,000 | BUY | 7 / 10 | 0.17 KM |
| North Side, The Cardinals, Tongham, Surrey, GU10 | £ 475,000 | BUY | 7 / 10 | 0.22 KM |
Nearby Properties
| Address | Price | Distance |
|---|---|---|
| 90 Poyle Road | £ 475,000 | 0.01 KM |
| 81a Poyle Road | £ 370,000 | 0.01 KM |
| 68 Poyle Road | £ 327,000 | 0.01 KM |
| 87 Poyle Road | £ 700,000 | 0.01 KM |
| 81 Poyle Road | £ 260,450 | 0.01 KM |