Wallington Road, Billingham, TS23
By Northgate Estate Agents & Property Management
£ 180,000
Reviews
3 out of 5 stars
Northgate Estate Agents & Property Management says ..
Nestled in the sought-after High Grange area of Billingham, this charming three-bedroom link detached home offers the ideal blend of comfort and convenience.
Property Oracle says ..
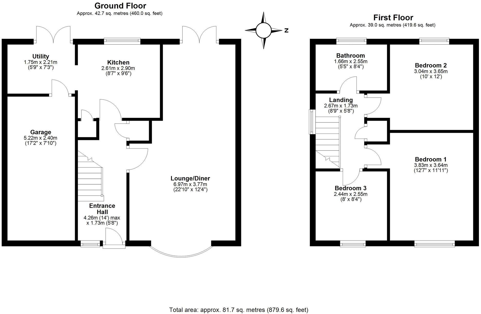
This three-bedroom detached house is located in Billingham, Stockton-on-Tees. The property benefits from a good-sized rear garden, and is conveniently located near several primary schools which are rated as good by Ofsted. Transport links are also within reasonable distance, with Billingham train station being approximately 1.97km away. The house itself appears to be well-maintained and presented to a good standard. While the provided images do not show any obvious signs of disrepair, it is important to conduct a full survey prior to purchasing. The list price of £180,000 is slightly below the average price for the area (£207,297), though this may be influenced by factors such as plot size and the specifics of the property itself. A comparison with similar properties in the area would be beneficial to determine if this is a fair price.
Therefore, we give this property 7 / 10. *Disclaimer: This is our option and does constitute a recommendation or financial advice. Do your own research. *
- Price
- 7
- Condition
- 8
- Location
- 7
- Land
- 7
- Bedrooms
- 3
- Bathrooms
- 1
- Sqft (est)
- 879.41
The heatmap indicates the level of crime in the area. The color of the heatmap indicates the crime severity and recency.
Metrics Year-on-Year
- Average area value
- 139,000.00 £Decreased by 28.29 %
- Est sale value
- 147,740.88 £Increased by 9.09 %
- Average area rental value
- 648.00 £/moIncreased by 13.88 %
- Est letting value
- 0.00 £/mo
- Est rental Yield
- 5.59 %Increased by 58.81 %
- Crime Rate
- 3.00 %Unchanged by 0.00 %
Agent Activity
Northgate Estate Agents & Property Management created the listing.
Nearby Schools
| Name | Type | Ofsted | Distance |
|---|---|---|---|
| Bishopton Pru | Academy Alternative Provision Converter | 0.67 KM | |
| Ash Trees Academy | Academy Special Sponsor Led | Good | 1.16 KM |
| New Life Cc | Children's Centre | 1.23 KM | |
| Roseberry Primary School | Community School | Good | 1.42 KM |
| St Joseph'S Catholic Primary School | Academy Converter | Good | 1.45 KM |
Images
Nearby Streets
| Name | Average Price | Average Sqft | Distance |
|---|---|---|---|
| Newbiggin Road | £ 0 | 0 | 0.00 KM |
| Barmton Road | £ 0 | 0 | 0.00 KM |
| Wordsworth Close | £ 0 | 0 | 0.00 KM |
| Dunster Road | £ 0 | 0 | 0.00 KM |
| Hale Road | £ 0 | 0 | 0.00 KM |
Nearby Transport
| Name | NLC | TLC | Distance |
|---|---|---|---|
| Billingham | 7910 | BIL | 1.97 KM |
| Stockton | 7975 | STK | 6.86 KM |
| Thornaby | 7976 | TBY | 7.20 KM |
| Middlesbrough | 7929 | MBR | 7.43 KM |
Nearby Listings
| Address | Price | Type | Score | Distance |
|---|---|---|---|---|
| Wallington Road, Billingham, TS23 | £ 180,000 | BUY | 7 / 10 | 0.00 KM |
| Chillingham Court, Billingham, TS23 | £ 290,000 | BUY | 7 / 10 | 0.05 KM |
| Horsley Way, Eaglescliffe, TS16 | £ 430,000 | BUY | 7 / 10 | 0.06 KM |
| Horsely Way, Eaglescliffe | £ 345,000 | BUY | 7 / 10 | 0.08 KM |
| Horsely way, Eaglescliffe | £ 359,995 | BUY | 8 / 10 | 0.08 KM |
Nearby Properties
| Address | Price | Distance |
|---|---|---|
| 2 Wallington Way | £ 130,000 | 0.08 KM |
| 1 Wallington Way | £ 117,000 | 0.08 KM |
| 3 Wallington Way | £ 148,000 | 0.08 KM |
| 5 Horsley Way | £ 115,000 | 0.09 KM |
| 4 Horsley Way | £ 128,500 | 0.09 KM |