EX
Applewood Grove, Halewood, Liverpool, L26 6BR
By eXp UK
£ 520,000
Reviews
3 out of 5 stars
eXp UK says ..
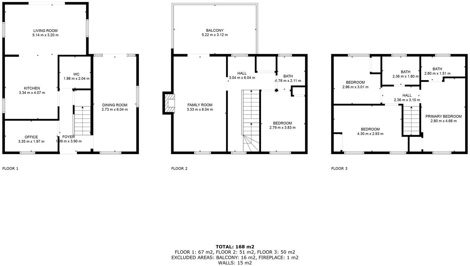
Desirably offered on a premium plot on the sought-after Applewood Grove, this truly outstanding and impeccably presented four-five bedroom, three storey detached residence presents a truly unique living experience for buyers seeking luxury and private living in a prime and peaceful residential...
Property Oracle says ..
Therefore, we give this property 7 / 10. *Disclaimer: This is our option and does constitute a recommendation or financial advice. Do your own research. *
- Price
- 6
- Condition
- 8
- Location
- 7
- Land
- 7
- Bedrooms
- 4
- Bathrooms
- 3
- Sqft (est)
- 1,810.20
The heatmap indicates the level of crime in the area. The color of the heatmap indicates the crime severity and recency.
Metrics Year-on-Year
- Average area value
- 313,305.00 £Increased by 18.00 %
- Est sale value
- 725,890.20 £Increased by 61.04 %
- Average area rental value
- 1,442.00 £/moIncreased by 35.27 %
- Est letting value
- 1,810.20 £/moUnchanged by 0.00 %
- Est rental Yield
- 5.52 %Increased by 14.52 %
- Crime Rate
- 15.00 %Unchanged by 0.00 %
from 265,506.00 £
from 450,739.80 £
from 1,066.00 £/mo
from 1,810.20 £/mo
from 4.82 %
from 15.00 %
Agent Activity
eXp UK created the listing.
Nearby Schools
| Name | Type | Ofsted | Distance |
|---|---|---|---|
| Halewood Church Of England Primary Academy | Academy Converter | 0.50 KM | |
| St Mark'S Catholic Primary School | Voluntary Aided School | Good | 0.98 KM |
| Finch Woods Academy | Academy Special Sponsor Led | Good | 1.13 KM |
| Plantation Primary School | Community School | Good | 1.27 KM |
| Halewood Academy | Academy Converter | Good | 2.17 KM |
Images
Nearby Streets
| Name | Average Price | Average Sqft | Distance |
|---|---|---|---|
| Woodend | £ 280,000 | 0 | 0.00 KM |
| Court Avenue | £ 245,000 | 0 | 0.00 KM |
| Weaver Drive | £ 0 | 0 | 0.00 KM |
| Fir Avenue | £ 0 | 0 | 0.00 KM |
| Travers Road | £ 0 | 0 | 0.00 KM |
Nearby Transport
| Name | NLC | TLC | Distance |
|---|---|---|---|
| Halewood | 2295 | HED | 1.23 KM |
| Hunts Cross | 2235 | HNX | 3.97 KM |
| Huyton | 2160 | HUY | 4.84 KM |
| Hough Green | 2303 | HGN | 5.16 KM |
| Whiston | 2161 | WHN | 5.46 KM |
Nearby Listings
| Address | Price | Type | Score | Distance |
|---|---|---|---|---|
| Applewood Grove, Halewood, Liverpool, L26 6BR | £ 520,000 | BUY | 7 / 10 | 0.00 KM |
| Ditton Drive, Halewood, Liverpool, L26 6BT | £ 270,000 | BUY | 6 / 10 | 0.00 KM |
| Applewood Grove, Halewood, Liverpool, Merseyside. L26 6BR | £ 265,000 | BUY | 6 / 10 | 0.00 KM |
| Woodend, Halewood, Liverpool, Merseyside, L26 | £ 475,000 | BUY | 7 / 10 | 0.07 KM |
| Lightoaks Drive, Halewood, Liverpool. | £ 270,000 | BUY | 7 / 10 | 0.07 KM |
Nearby Properties
| Address | Price | Distance |
|---|---|---|
| 6 Woodend | £ 235,000 | 0.05 KM |
| 6 Lightoaks Drive | £ 249,995 | 0.07 KM |
| 7 Lightoaks Drive | £ 169,750 | 0.11 KM |
| 26 Redoaks Way | £ 82,500 | 0.13 KM |
| 7 Redoaks Way | £ 133,500 | 0.13 KM |