Dean Beck Avenue, Bradford, BD6
By Robert Watts
£ 279,950
Reviews
3 out of 5 stars
Robert Watts says ..
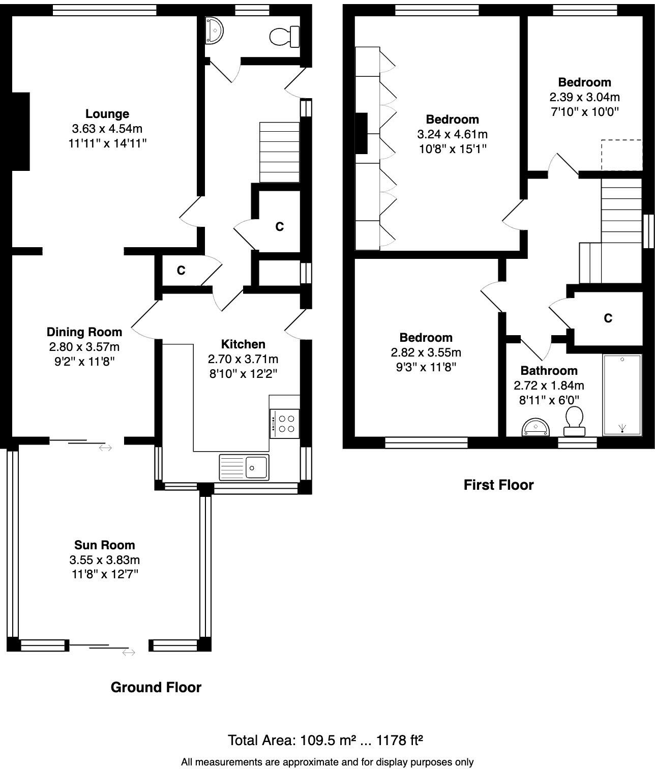
** PRESENTED TO A HIGH STANDARD ** STUNNING POPULAR STYLE OF SEMI DETACHED ** Viewing is an absolute MUST for this 'Robinson built' family home which offer spacious accommodation throughout. Having undergone a vast amount of works over recent years the property briefly comprises: Entrance hallway...
Property Oracle says ..
This three-bedroom semi-detached house in Wyke, Bradford, presents itself as a well-maintained family home. The property boasts a modern kitchen and updated bathrooms, as shown in the provided images. The interior has been tastefully decorated. The inclusion of a conservatory offers additional living space and enhances natural light. The property benefits from having off-street parking. There is a garden present, which provides outdoor space for leisure. The location offers convenient access to several primary schools, with some rated ‘Good’ by Ofsted. Transport links to Bradford city centre are also within a reasonable distance. However, the property is situated within a location that is not commonly viewed as amongst the most sought after in Bradford. The lack of precise plot size data hinders a complete assessment of the value proposition. The listed price is in line with other sales within the immediate area, but further comparative data would be required to make an entirely conclusive valuation. Overall, this appears to be a suitable family home for those seeking a reasonably convenient and well-maintained property in Wyke, Bradford.
Therefore, we give this property 6 / 10. *Disclaimer: This is our option and does constitute a recommendation or financial advice. Do your own research. *
- Price
- 7
- Condition
- 8
- Location
- 7
- Land
- 4
- Bedrooms
- 3
- Bathrooms
- 2
- Sqft (est)
- 1,178.65
The heatmap indicates the level of crime in the area. The color of the heatmap indicates the crime severity and recency.
Metrics Year-on-Year
- Average area value
- 856,250.00 £Increased by 15.74 %
- Est sale value
- 836,841.50 £Increased by 21.37 %
- Average area rental value
- 2,000.00 £/moDecreased by 15.25 %
- Est letting value
- 1,178.65 £/moUnchanged by 0.00 %
- Est rental Yield
- 2.80 %Decreased by 26.89 %
- Crime Rate
- 2.00 %Unchanged by 0.00 %
Agent Activity
Robert Watts marked this listing as sold.
Robert Watts created the listing.
Nearby Schools
| Name | Type | Ofsted | Distance |
|---|---|---|---|
| St Matthew'S Cofe Primary School And Nursery | Voluntary Controlled School | Good | 0.55 KM |
| Woodroyd Children'S Centre | Children's Centre | 0.85 KM | |
| The Fountain School | Other Independent School | Requires improvement | 1.18 KM |
| Primary Pupil Referral Unit | Pupil Referral Unit | Good | 1.24 KM |
| Bowling Park Primary School | Community School | Good | 1.30 KM |
Images
Nearby Streets
| Name | Average Price | Average Sqft | Distance |
|---|---|---|---|
| Birch Close | £ 145,000 | 0 | 0.00 KM |
| Birch Way | £ 0 | 0 | 0.00 KM |
| Park House Close | £ 0 | 0 | 0.00 KM |
| Silverdale Road | £ 0 | 0 | 0.00 KM |
| Springwood Gardens | £ 0 | 0 | 0.00 KM |
Nearby Transport
| Name | NLC | TLC | Distance |
|---|---|---|---|
| Low Moor | 8416 | LMR | 1.77 KM |
| Bradford Interchange | 8345 | BDI | 2.84 KM |
| Bradford Forster Square | 8346 | BDQ | 3.49 KM |
| Frizinghall | 8556 | FZH | 6.40 KM |
| Shipley (Yorks) | 8347 | SHY | 7.90 KM |
Nearby Listings
| Address | Price | Type | Score | Distance |
|---|---|---|---|---|
| Dean Beck Avenue, Bradford, BD6 | £ 279,950 | BUY | 6 / 10 | 0.00 KM |
| Dean Beck Avenue, Bradford | £ 320,000 | BUY | 7 / 10 | 0.05 KM |
| Radfield Drive, Off Rooley Crescent, Bradford, BD6 | £ 395,000 | BUY | 7 / 10 | 0.08 KM |
| Dean Beck Avenue, Bradford, West Yorkshire, BD6 1DE | £ 245,000 | BUY | 6 / 10 | 0.09 KM |
| Dean Beck Avenue Staithgate, Bradford, West Yorkshire, BD6 1DE | £ 280,000 | BUY | 7 / 10 | 0.13 KM |
Nearby Properties
| Address | Price | Distance |
|---|---|---|
| 30 Dean Beck Avenue | £ 168,000 | 0.05 KM |
| 21 Dean Beck Avenue | £ 180,000 | 0.05 KM |
| 17 Dean Beck Avenue | £ 270,000 | 0.05 KM |
| 26 Dean Beck Avenue | £ 115,000 | 0.05 KM |
| 24 Dean Beck Avenue | £ 158,000 | 0.05 KM |