Page & Wells says ..
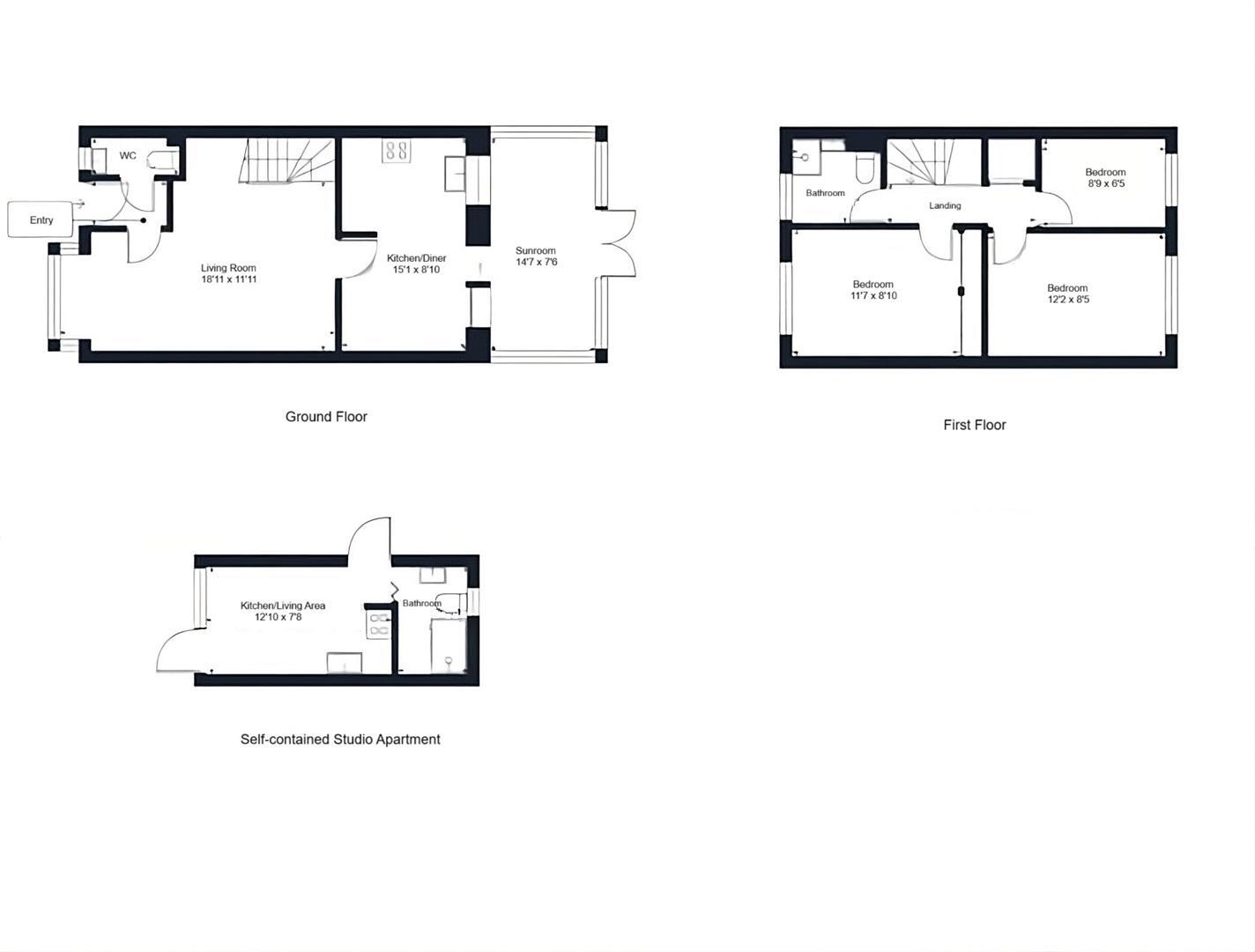
** A WELL-PRESENTED THREE BEDROOM SEMI-DETACHED FAMILY HOME WITH A CONVERTED GARAGE USED AS A SELF-CONTAINED STUDIO APARTMENT ** Page & Wells are delighted to bring to the market this modern family home situated in a convenient location on the Maidstone/Barming borders. The ground floor ...
Property Oracle says ..
This is a three-bedroom semi-detached house located on St. Andrew’s Road in Maidstone, Kent. The property is in a good location, close to schools and transportation links. The house has a garden, off street parking and an additional outbuilding. The property appears to be in reasonable condition, although some aspects of the interior may benefit from modernisation. The house is listed for £399,950, which is slightly above the average price for properties in Maidstone. Overall, this property would make a good family home.
Therefore, we give this property 6 / 10. *Disclaimer: This is our option and does constitute a recommendation or financial advice. Do your own research. *
- Price
- 7
- Condition
- 6
- Location
- 7
- Land
- 7
- Bedrooms
- 3
- Bathrooms
- 1
- Sqft (est)
- 808.90
The heatmap indicates the level of crime in the area. The color of the heatmap indicates the crime severity and recency.
Metrics Year-on-Year
- Average area value
- 358,479.00 £Decreased by 2.93 %
- Est sale value
- 341,355.80 £Increased by 20.57 %
- Average area rental value
- 1,595.00 £/moIncreased by 2.84 %
- Est letting value
- 808.90 £/moUnchanged by 0.00 %
- Est rental Yield
- 5.34 %Increased by 5.95 %
- Crime Rate
- 9.00 %Unchanged by 0.00 %
Agent Activity
Page & Wells created the listing.
Nearby Schools
| Name | Type | Ofsted | Distance |
|---|---|---|---|
| Bower Grove School | Foundation Special School | Outstanding | 0.29 KM |
| Jubilee Primary School | Free Schools | Outstanding | 0.47 KM |
| West Borough Children'S Centre | Children's Centre | 0.56 KM | |
| West Borough Primary School | Community School | Good | 0.56 KM |
| St Francis' Catholic Primary School, Maidstone | Voluntary Aided School | Good | 1.18 KM |
Images
Nearby Streets
| Name | Average Price | Average Sqft | Distance |
|---|---|---|---|
| Newman Close | £ 0 | 0 | 0.00 KM |
| The Coach Yard | £ 0 | 0 | 0.00 KM |
| Conference Way | £ 0 | 0 | 0.00 KM |
| Beverley Road | £ 0 | 0 | 0.00 KM |
| Pine Lodge | £ 115,000 | 0 | 0.00 KM |
Nearby Transport
| Name | NLC | TLC | Distance |
|---|---|---|---|
| East Farleigh | 5234 | EFL | 1.42 KM |
| Barming | 5133 | BMG | 2.06 KM |
| Maidstone Barracks | 5237 | MDB | 3.23 KM |
| Maidstone West | 5222 | MDW | 3.27 KM |
| Maidstone East | 5115 | MDE | 4.03 KM |
Nearby Listings
| Address | Price | Type | Score | Distance |
|---|---|---|---|---|
| St Andrew's Road, Maidstone | £ 399,950 | BUY | 6 / 10 | 0.00 KM |
| St. Andrews Road, Maidstone, ME16 | £ 475,000 | BUY | 6 / 10 | 0.05 KM |
| Tonbridge Road, Maidstone, ME16 | £ 155,000 | BUY | 8 / 10 | 0.10 KM |
| Tonbridge Road, Maidstone, Kent, ME16 | £ 240,000 | BUY | 7 / 10 | 0.10 KM |
| Tonbridge Road, Maidstone, Kent | £ 264,500 | BUY | 7 / 10 | 0.12 KM |
Nearby Properties
| Address | Price | Distance |
|---|---|---|
| 499 Tonbridge Road | £ 452,500 | 0.10 KM |
| 513 Tonbridge Road | £ 235,000 | 0.10 KM |
| 511 Tonbridge Road | £ 290,000 | 0.10 KM |
| 527 Tonbridge Road | £ 165,000 | 0.10 KM |
| 497 Tonbridge Road | £ 430,000 | 0.10 KM |