Botley Road, Romsey, Hampshire
By Michael Rhodes
£ 640,000
Reviews
3 out of 5 stars
Michael Rhodes says ..
Montfort Place is an exclusive development of four brand new individually design bungalows with private rear gardens and parking nestled in a quiet cul-de-sac position on the outskirts of the picturesque market town of Romsey.
Property Oracle says ..
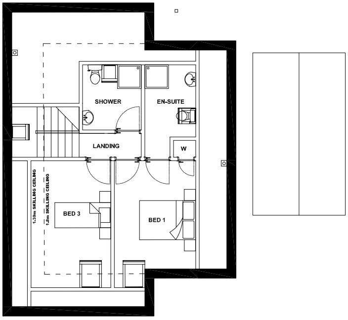
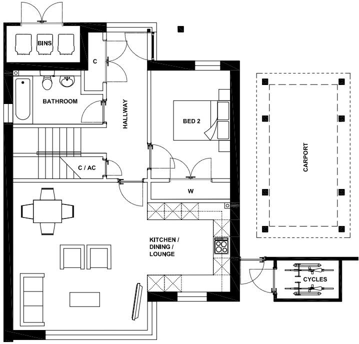
This property, located on Botley Road in Romsey, Hampshire, is a 3-bedroom, 2-bathroom house. The architectural renderings depict a modern, well-designed structure. While the listed plot size is 0.00 sqft, the images clearly show each property has a private garden with shared green spaces within the development. The location benefits from relatively close proximity to several primary and secondary schools, some of which have received positive Ofsted ratings. Railway connections to Romsey and other locations are available within a reasonable distance. The pricing seems consistent with other recently listed properties in the area, though lack of square footage data in comparable properties makes a precise per-sqft comparison impossible. Overall, the property represents a new-build or well-maintained house, in an area with good schools and transport links, offering good value for the price, given the small amount of specific data provided.
Therefore, we give this property 7 / 10. *Disclaimer: This is our option and does constitute a recommendation or financial advice. Do your own research. *
- Price
- 7
- Condition
- 8
- Location
- 7
- Land
- 6
- Bedrooms
- 3
- Bathrooms
- 2
- Sqft (est)
- 678.13
The heatmap indicates the level of crime in the area. The color of the heatmap indicates the crime severity and recency.
Metrics Year-on-Year
- Average area value
- 469,988.00 £Increased by 15.68 %
- Est sale value
- 638,120.33 £Increased by 162.85 %
- Average area rental value
- 1,325.00 £/moDecreased by 6.43 %
- Est letting value
- 1,356.26 £/moIncreased by 100.00 %
- Est rental Yield
- 3.38 %Decreased by 19.14 %
- Crime Rate
- 3.00 %Unchanged by 0.00 %
Agent Activity
Michael Rhodes marked this listing as sold.
Michael Rhodes created the listing.
Nearby Schools
| Name | Type | Ofsted | Distance |
|---|---|---|---|
| Halterworth Primary School | Academy Converter | 0.25 KM | |
| The Mountbatten School | Academy Converter | Good | 0.45 KM |
| Cupernham Infant School | Community School | Good | 1.54 KM |
| Cupernham Junior School | Community School | Good | 1.54 KM |
| Stroud, The King Edward Vi Preparatory School | Other Independent School | 1.54 KM |
Images
Nearby Streets
| Name | Average Price | Average Sqft | Distance |
|---|---|---|---|
| Meon Close | £ 495,000 | 0 | 0.00 KM |
| Alder Close | £ 340,000 | 0 | 0.00 KM |
| Chestnut Close | £ 460,000 | 0 | 0.00 KM |
| Beverley Close | £ 312,500 | 0 | 0.00 KM |
| Hogarth Close | £ 0 | 0 | 0.00 KM |
Nearby Transport
| Name | NLC | TLC | Distance |
|---|---|---|---|
| Romsey | 5943 | ROM | 2.51 KM |
| Redbridge | 5912 | RDB | 7.43 KM |
| Totton | 5921 | TTN | 7.75 KM |
| Millbrook (Hants) | 5909 | MBK | 9.33 KM |
| Chandlers Ford | 5836 | CFR | 9.52 KM |
Nearby Listings
| Address | Price | Type | Score | Distance |
|---|---|---|---|---|
| Botley Road, Romsey, Hampshire | £ 625,000 | BUY | 6 / 10 | 0.00 KM |
| Botley Road, Romsey, Hampshire | £ 640,000 | BUY | 7 / 10 | 0.00 KM |
| Botley Road, Romsey, Hampshire | £ 615,000 | BUY | 6 / 10 | 0.00 KM |
| Botley Road, Romsey, Hampshire | £ 640,000 | BUY | 7 / 10 | 0.00 KM |
| Botley Road, Romsey, Hampshire | £ 665,000 | BUY | 7 / 10 | 0.00 KM |
Nearby Properties
| Address | Price | Distance |
|---|---|---|
| 9 Maple Close | £ 311,000 | 0.13 KM |
| 10 Maple Close | £ 240,000 | 0.13 KM |
| 3 Ash Close | £ 273,000 | 0.18 KM |
| 8b Ash Close | £ 393,000 | 0.18 KM |
| 7 Ash Close | £ 370,000 | 0.18 KM |