Harper & Woods says ..
A fabulous home! On a spacious corner plot this three-bedroom, semi-detached home benefits from a double driveway, rear and side gardens enjoying the sun throughout the day and a fantastic converted garage. This would be a great home for a family to make memories in! Located in a popular area ...
Property Oracle says ..
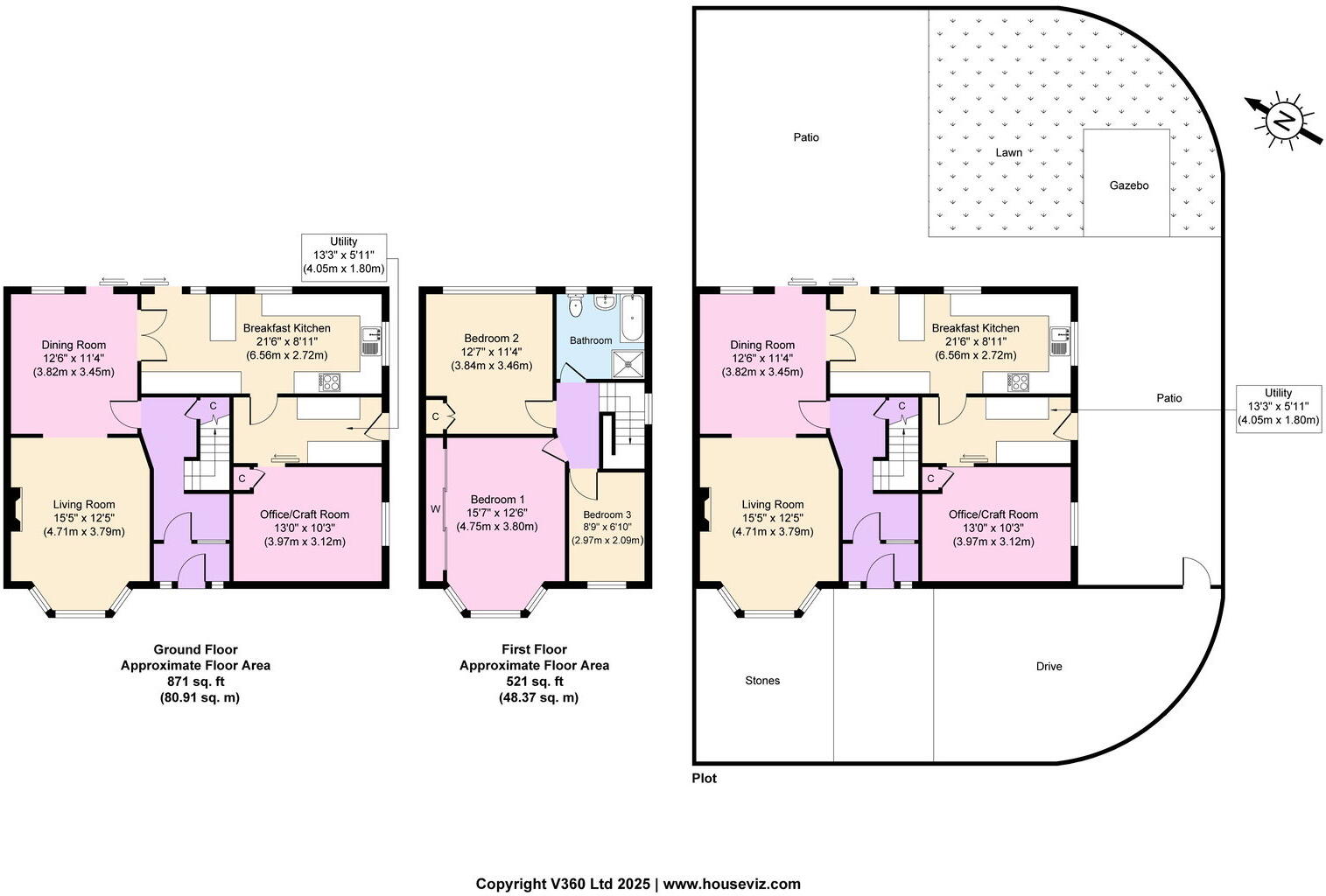
This property is a 3-bedroom semi-detached house located on Shrewsbury Road in Wallasey, Wirral. The location benefits from being within proximity to several schools, including Weatherhead High School (Outstanding Ofsted rating) and St George’s Primary School (Good Ofsted rating). There are also several Merseyrail stations within a reasonable distance, providing convenient access to public transportation. The property itself appears to be well-maintained and recently renovated, with a modern kitchen and bathroom. The images show a good-sized garden with patio area, offering outdoor space. While the plot size is listed as 0.00 sqft, the images clearly show a substantial garden. The list price of £300,000 is slightly above the average price for the area (£297,608), but considering the property’s apparent condition, modern updates, and the garden, it could be considered reasonable. Further investigation into the exact plot size would be beneficial to fully assess the price per sqft.
Therefore, we give this property 8 / 10. *Disclaimer: This is our option and does constitute a recommendation or financial advice. Do your own research. *
- Price
- 7
- Condition
- 9
- Location
- 8
- Land
- 8
- Bedrooms
- 3
- Bathrooms
- 1
- Sqft (est)
- 871.00
The heatmap indicates the level of crime in the area. The color of the heatmap indicates the crime severity and recency.
Metrics Year-on-Year
- Average area value
- 283,568.00 £Increased by 1.75 %
- Est sale value
- 193,362.00 £Increased by 2.30 %
- Average area rental value
- 825.00 £/moDecreased by 19.67 %
- Est letting value
- 0.00 £/mo
- Est rental Yield
- 3.49 %Decreased by 21.04 %
- Crime Rate
- 5.00 %Unchanged by 0.00 %
Agent Activity
Harper & Woods created the listing.
Nearby Schools
| Name | Type | Ofsted | Distance |
|---|---|---|---|
| St George'S Primary School | Community School | Good | 0.69 KM |
| The Oldershaw School | Academy Converter | Good | 0.69 KM |
| Weatherhead High School | Academy Converter | Outstanding | 0.81 KM |
| St Mary'S Catholic College, A Voluntary Academy | Academy Sponsor Led | Requires improvement | 0.97 KM |
| Mount Primary School | Community School | Good | 1.04 KM |
Images
Nearby Streets
| Name | Average Price | Average Sqft | Distance |
|---|---|---|---|
| Shrewsbury Road | £ 340,000 | 0 | 0.00 KM |
| Loretto Road | £ 0 | 0 | 0.00 KM |
| Church Hill | £ 0 | 0 | 0.00 KM |
| Beverley Road | £ 205,000 | 0 | 0.00 KM |
| Leyburn Road | £ 312,500 | 0 | 0.00 KM |
Nearby Transport
| Name | NLC | TLC | Distance |
|---|---|---|---|
| Wallasey Village | 2265 | WLV | 1.42 KM |
| Wallasey Grove Road | 2154 | WLG | 1.64 KM |
| Birkenhead North | 2145 | BKN | 1.91 KM |
| New Brighton | 2152 | NBN | 1.99 KM |
| Bidston | 2136 | BID | 2.81 KM |
Nearby Listings
| Address | Price | Type | Score | Distance |
|---|---|---|---|---|
| Shrewsbury Road, Wallasey | £ 300,000 | BUY | 8 / 10 | 0.00 KM |
| Loretto Road, Wallasey | £ 230,000 | BUY | 5 / 10 | 0.16 KM |
| Uppingham Road, Wallasey | £ 325,000 | BUY | 6 / 10 | 0.18 KM |
| Uppingham Road, Wallasey | £ 350,000 | BUY | 7 / 10 | 0.18 KM |
| Uppingham Road, Wallasey | £ 325,000 | BUY | 6 / 10 | 0.18 KM |
Nearby Properties
| Address | Price | Distance |
|---|---|---|
| 9 Shrewsbury Road | £ 160,000 | 0.01 KM |
| 21 Shrewsbury Road | £ 220,000 | 0.01 KM |
| 27 Shrewsbury Road | £ 297,500 | 0.01 KM |
| 31 Shrewsbury Road | £ 157,000 | 0.01 KM |
| 23 Shrewsbury Road | £ 299,000 | 0.01 KM |