Hodders says ..
Offered to the market with no onwards chain this two bedroom semi-detached bungalow is situated within a popular residential road in Addlestone. This home would benefit from some updating, which gives the opportunity to an incoming purchaser to tailor the property to their own needs and desi...
Property Oracle says ..
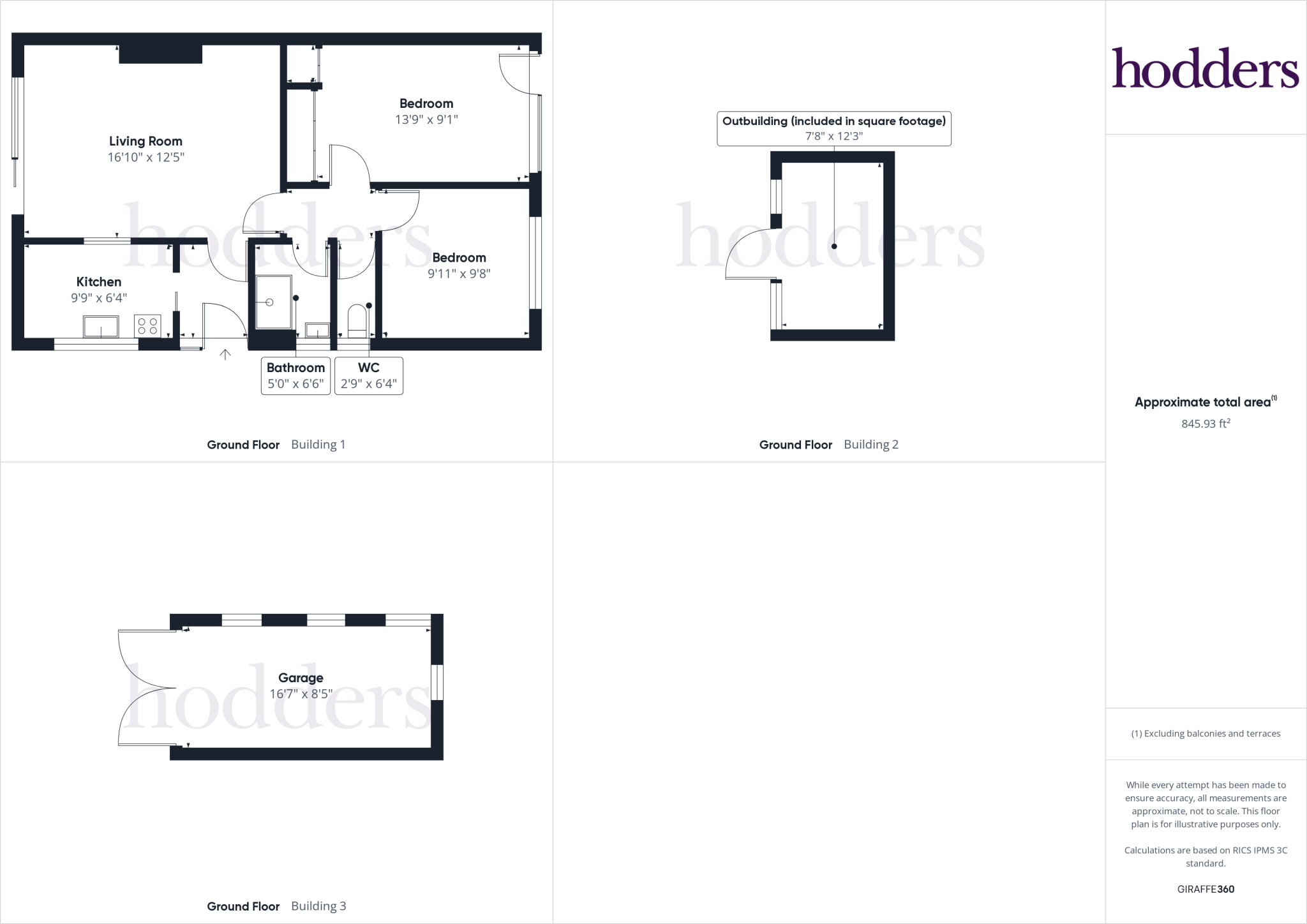
This bungalow is located in Addlestone, Surrey, an area with good transport links and schools. The property itself is a 2-bedroom bungalow with 1 bathroom. While it benefits from a garden and what appears to be a shed/garage, the interior images suggest it is in need of significant modernisation. The kitchen and bathroom are particularly dated. The list price is below the average price for the area, but this is likely reflective of the property’s condition and relatively small size (845.93 sqft) compared to the area average (1,181 sqft). Nearby properties on Sandy Road show a range of prices, some higher and some lower than the list price, making it difficult to definitively assess the value. More information on the plot size would be helpful in determining the land value.
Therefore, we give this property 5 / 10. *Disclaimer: This is our option and does constitute a recommendation or financial advice. Do your own research. *
- Price
- 6
- Condition
- 4
- Location
- 7
- Land
- 6
- Bedrooms
- 2
- Bathrooms
- 1
- Sqft (est)
- 845.93
The heatmap indicates the level of crime in the area. The color of the heatmap indicates the crime severity and recency.
Metrics Year-on-Year
- Average area value
- 628,999.00 £Increased by 26.67 %
- Est sale value
- 829,857.33 £Increased by 169.51 %
- Average area rental value
- 1,650.00 £/moDecreased by 23.36 %
- Est letting value
- 1,691.86 £/moIncreased by 100.00 %
- Est rental Yield
- 3.15 %Decreased by 39.42 %
- Crime Rate
- 0.00 %
Agent Activity
Hodders created the listing.
Nearby Schools
| Name | Type | Ofsted | Distance |
|---|---|---|---|
| Ongar Place Primary School | Community School | Good | 0.27 KM |
| Holy Family Catholic Primary School | Academy Converter | Good | 0.55 KM |
| Jubilee High School | Academy Sponsor Led | Good | 0.61 KM |
| St Paul'S Cofe Primary School | Academy Sponsor Led | Good | 0.67 KM |
| Sayes Court Sure Start Children'S Centre | Children's Centre | 0.76 KM |
Images
Nearby Streets
| Name | Average Price | Average Sqft | Distance |
|---|---|---|---|
| Orchard Way | £ 675,000 | 0 | 0.00 KM |
| Barton Close | £ 0 | 0 | 0.00 KM |
| Dale Close | £ 0 | 0 | 0.00 KM |
| Church Road | £ 699,950 | 0 | 0.00 KM |
| M25 | £ 625,000 | 0 | 0.00 KM |
Nearby Transport
| Name | NLC | TLC | Distance |
|---|---|---|---|
| Addlestone | 5550 | ASN | 2.00 KM |
| Chertsey | 5553 | CHY | 2.66 KM |
| Byfleet And New Haw | 5689 | BFN | 2.69 KM |
| West Byfleet | 5684 | WBY | 2.90 KM |
| Weybridge | 5577 | WYB | 4.74 KM |
Nearby Listings
| Address | Price | Type | Score | Distance |
|---|---|---|---|---|
| Addlestone, Surrey, KT15 | £ 419,950 | BUY | 5 / 10 | 0.00 KM |
| Sandy Road, Addlestone, Surrey, KT15 | £ 459,950 | BUY | 6 / 10 | 0.02 KM |
| Sandy Road, Addlestone | £ 315,000 | BUY | 7 / 10 | 0.10 KM |
| Sandy Road, Addlestone | £ 320,000 | BUY | 6 / 10 | 0.11 KM |
| Sandy Road, Addlestone, Surrey, KT15 | £ 325,000 | BUY | 6 / 10 | 0.12 KM |
Nearby Properties
| Address | Price | Distance |
|---|---|---|
| 8 Sandy Road | £ 249,950 | 0.00 KM |
| 28 Sandy Road | £ 200,000 | 0.00 KM |
| 46 Sandy Road | £ 246,000 | 0.00 KM |
| 24 Sandy Road | £ 165,000 | 0.00 KM |
| 20 Sandy Road | £ 250,000 | 0.00 KM |