Davies & Way says ..
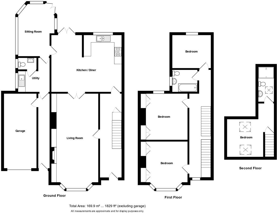
Welcome to this stunning semi-detached house on Midford Road, Bath! This beautifully extended family home boasts 2 reception rooms, 4 bedrooms, and 2 bathrooms, providing ample space for comfortable living. One of the highlights of this property is the open-plan kitchen diner/family roo...
Property Oracle says ..
This four-bedroom, two-bathroom detached house in Combe Down, Bath, is presented in excellent condition and features a modern interior. The property has undergone renovations or updates, with stylish kitchens, bathrooms, and flooring visible in the images provided. The living areas are spacious, including a conservatory offering additional living space. The exterior of the property appears well-maintained, and the property benefits from off-street parking and a sizeable garden. The location in Combe Down is advantageous, offering a blend of suburban tranquility and proximity to amenities and transport links. Combe Down is sought after and enjoys strong community links. Nearby schools are good and outstanding, as per the Ofsted data. Bath Spa railway station is within reasonable reach, providing rail connectivity. While the list price of \u00a3875,000 is in line with other properties in the area, a more definitive assessment of value would require more precise information concerning square footage and comparable sales data within the immediate surroundings of Midford Road, specifically, as the data provided is lacking in this detail.
Therefore, we give this property 7 / 10. *Disclaimer: This is our option and does constitute a recommendation or financial advice. Do your own research. *
- Price
- 7
- Condition
- 9
- Location
- 8
- Land
- 6
- Bedrooms
- 4
- Bathrooms
- 2
- Sqft (est)
- 1,828.79
The heatmap indicates the level of crime in the area. The color of the heatmap indicates the crime severity and recency.
Metrics Year-on-Year
- Average area value
- 812,500.00 £Increased by 46.80 %
- Est sale value
- 985,717.81 £Increased by 8.67 %
- Average area rental value
- 1,223.00 £/moDecreased by 43.04 %
- Est letting value
- 0.00 £/moDecreased by 100.00 %
- Est rental Yield
- 1.81 %Decreased by 61.08 %
- Crime Rate
- 1.00 %Unchanged by 0.00 %
Agent Activity
Davies & Way created the listing.
Nearby Schools
| Name | Type | Ofsted | Distance |
|---|---|---|---|
| Three Ways School | Academy Special Converter | Outstanding | 0.53 KM |
| Aspire Academy | Academy Special Sponsor Led | Good | 0.53 KM |
| St Martins Garden Children'S Centre | Children's Centre | 0.83 KM | |
| St Martin'S Garden Primary School | Academy Sponsor Led | Requires improvement | 0.99 KM |
| Mulberry Park Educate Together Primary Academy | Free Schools | 1.46 KM |
Images
Nearby Streets
| Name | Average Price | Average Sqft | Distance |
|---|---|---|---|
| Quarry Close | £ 0 | 0 | 0.00 KM |
| Frome Road | £ 1,250,000 | 0 | 0.00 KM |
| Victoria Cottages | £ 0 | 0 | 0.00 KM |
| Cranleigh | £ 800,000 | 0 | 0.00 KM |
| Oakhill Drive | £ 0 | 0 | 0.00 KM |
Nearby Transport
| Name | NLC | TLC | Distance |
|---|---|---|---|
| Bath Spa | 3271 | BTH | 2.58 KM |
| Oldfield Park | 3219 | OLF | 2.99 KM |
| Freshford | 3344 | FFD | 7.39 KM |
| Avoncliff | 3265 | AVF | 9.58 KM |
Nearby Listings
| Address | Price | Type | Score | Distance |
|---|---|---|---|---|
| Midford Road, Bath | £ 875,000 | BUY | 7 / 10 | 0.00 KM |
| Midford Road, Bath, BA2 | £ 800,000 | BUY | 6 / 10 | 0.12 KM |
| Bradford Road, Combe Down, Bath, BA2 | £ 850,000 | BUY | 8 / 10 | 0.16 KM |
| Bradford Road, Combe Down, Bath | £ 1,150,000 | BUY | 8 / 10 | 0.21 KM |
| Bradford Road, Combe Down, Bath | £ 1,125,000 | BUY | 7 / 10 | 0.21 KM |
Nearby Properties
| Address | Price | Distance |
|---|---|---|
| 125 Midford Road | £ 700,000 | 0.07 KM |
| 115 Midford Road | £ 682,000 | 0.07 KM |
| 123 Midford Road | £ 445,000 | 0.07 KM |
| 108 Midford Road | £ 412,000 | 0.14 KM |
| 122 Midford Road | £ 428,000 | 0.14 KM |