Oxford Close, St Nicolas Park, Nuneaton, CV11 6HG
By Alan Cooper Estates
£ 460,000
Reviews
3 out of 5 stars
Alan Cooper Estates says ..
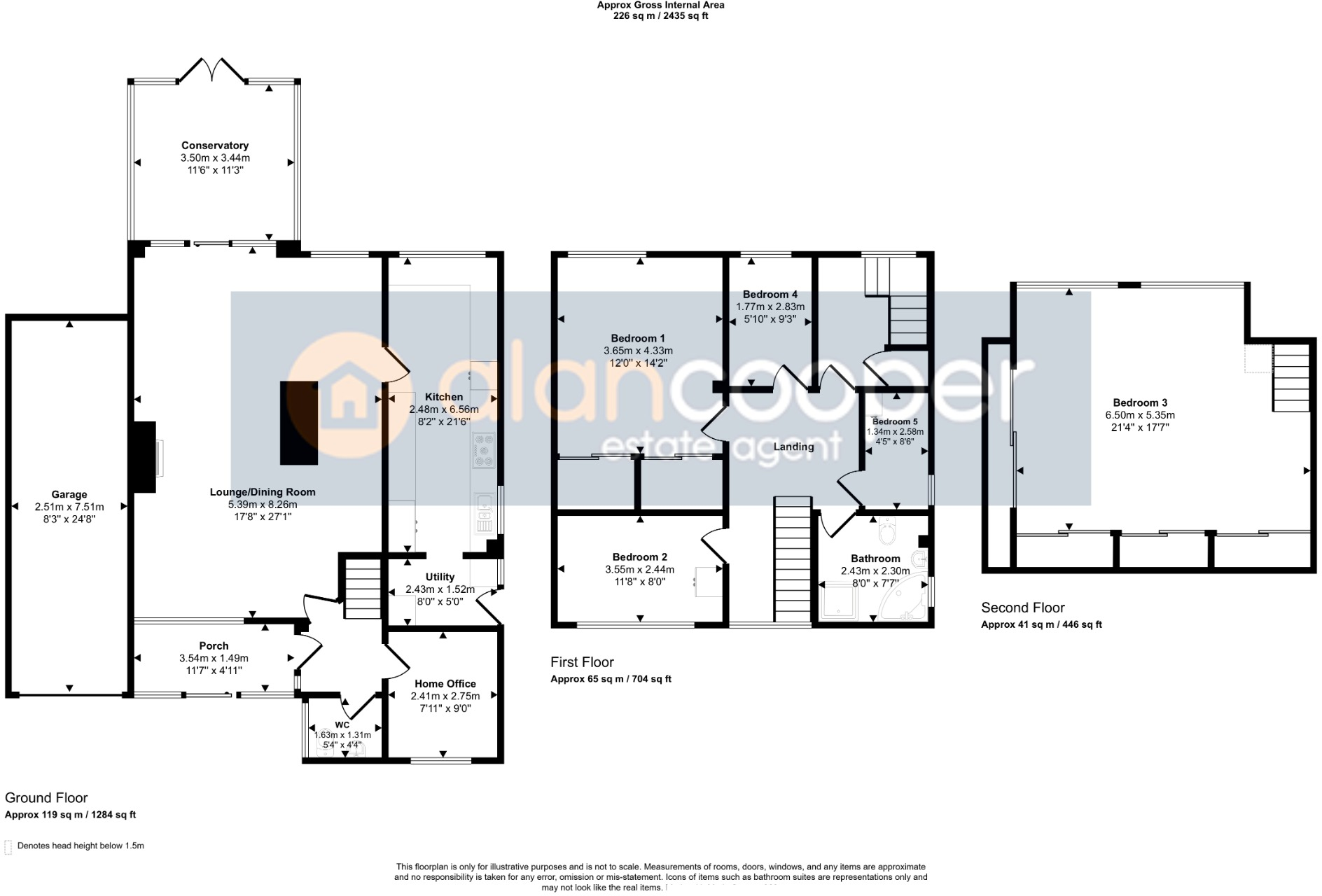
Here is a superb Detached Residence situated within a sought-after location. Excellent family accommodation laid out over three floors and featuring five bedrooms. Highly recommended.
Property Oracle says ..
This is a detached property located on Oxford Close, in the St Nicolas Park area of Nuneaton. It features 5 bedrooms and 1 bathroom. The property includes a garage, a well-maintained garden, and a conservatory. While the property is in reasonable condition, some interior aspects appear dated and may benefit from modernisation. The property is located close to schools and transportation links. The asking price of £460,000 appears high compared to the average price in the area.
Therefore, we give this property 6 / 10. *Disclaimer: This is our option and does constitute a recommendation or financial advice. Do your own research. *
- Price
- 5
- Condition
- 6
- Location
- 7
- Land
- 8
- Bedrooms
- 5
- Bathrooms
- 1
- Sqft (est)
- 464.25
The heatmap indicates the level of crime in the area. The color of the heatmap indicates the crime severity and recency.
Metrics Year-on-Year
- Average area value
- 288,249.00 £Decreased by 5.28 %
- Est sale value
- 161,094.75 £Increased by 17.23 %
- Average area rental value
- 1,224.00 £/moDecreased by 5.77 %
- Est letting value
- 464.25 £/moUnchanged by 0.00 %
- Est rental Yield
- 5.10 %Decreased by 0.39 %
- Crime Rate
- 20.00 %Unchanged by 0.00 %
Agent Activity
Alan Cooper Estates created the listing.
Nearby Schools
| Name | Type | Ofsted | Distance |
|---|---|---|---|
| Milby Primary School | Community School | Good | 0.29 KM |
| St Nicolas Cofe Academy | Academy Converter | Good | 0.68 KM |
| North Warwickshire And South Leicestershire College | Further Education | Good | 1.03 KM |
| Higham Lane School | Academy Converter | Outstanding | 1.17 KM |
| Weddington Primary School | Community School | Good | 1.60 KM |
Images
Nearby Streets
| Name | Average Price | Average Sqft | Distance |
|---|---|---|---|
| Henley Close | £ 450,000 | 0 | 0.00 KM |
| Roman Avenue | £ 0 | 0 | 0.00 KM |
| Roman Avenue | £ 392,999 | 0 | 0.00 KM |
| Caesar Drive | £ 0 | 0 | 0.00 KM |
| Mark Anthony Close | £ 0 | 0 | 0.00 KM |
Nearby Transport
| Name | NLC | TLC | Distance |
|---|---|---|---|
| Nuneaton | 1077 | NUN | 2.36 KM |
| Bermuda Park | 6543 | BEP | 5.04 KM |
| Bedworth | 1165 | BEH | 7.02 KM |
| Hinckley (Leics) | 1870 | HNK | 8.29 KM |
Nearby Listings
| Address | Price | Type | Score | Distance |
|---|---|---|---|---|
| Oxford Close, St Nicolas Park, Nuneaton, CV11 6HG | £ 460,000 | BUY | 6 / 10 | 0.00 KM |
| Oxford Close, Nuneaton, CV11 | £ 270,000 | BUY | 7 / 10 | 0.04 KM |
| Abingdon Way, Nuneaton | £ 285,000 | BUY | 7 / 10 | 0.11 KM |
| Knox Crescent, St Nicolas Park, Nuneaton | £ 387,500 | BUY | 8 / 10 | 0.13 KM |
| Raison Avenue, Nuneaton, CV11 | £ 285,000 | BUY | 6 / 10 | 0.16 KM |
Nearby Properties
| Address | Price | Distance |
|---|---|---|
| 8 Abingdon Way | £ 240,000 | 0.11 KM |
| 18 Abingdon Way | £ 79,950 | 0.11 KM |
| 22 Abingdon Way | £ 235,000 | 0.11 KM |
| 26 Abingdon Way | £ 300,000 | 0.11 KM |
| 19 Abingdon Way | £ 249,500 | 0.11 KM |