Cornwall Road, Herne Bay, CT6
By Miles & Barr
£ 400,000
Reviews
3 out of 5 stars
Miles & Barr says ..
Nestled within a sought-after location, this stunning chalet bungalow offers a unique blend of character and contemporary living. Thoughtfully refurbished to an extremely high standard, this property exudes sophistication and elegance throughout. Originally built as a three-bedroom res...
Property Oracle says ..
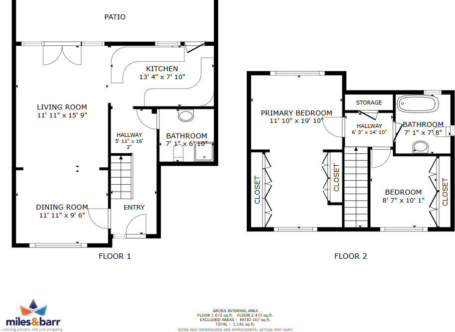
The property is a bungalow located on Cornwall Road in Herne Bay, Kent. It has two bedrooms and two bathrooms, and a total area of 1,145 sqft. The list price is £400,000.
The property appears to be in excellent condition, with modern fixtures and fittings throughout. The kitchen and bathrooms are particularly well-maintained, and the property benefits from a good-sized rear garden. The property also has a garage.
The average house price in the area is £381,799, with an average price per sqft of £492. Given that this property is larger than average (1145 sqft vs 775 sqft average), and appears to be in better-than-average condition, the asking price of £400,000 seems reasonable. However, the lack of plot size information prevents a definitive conclusion on land value. The nearby properties show a range of prices, some significantly lower, which suggests that the location may not command the highest prices in the area. The proximity to schools and transport links is positive, indicating a desirable location for families.
Based on the images provided, the property is modern and well-maintained. It does not appear to require any renovation.
Therefore, we give this property 7 / 10. *Disclaimer: This is our option and does constitute a recommendation or financial advice. Do your own research. *
- Price
- 7
- Condition
- 9
- Location
- 7
- Land
- 7
- Bedrooms
- 2
- Bathrooms
- 2
- Sqft (est)
- 1,145.00
The heatmap indicates the level of crime in the area. The color of the heatmap indicates the crime severity and recency.
Metrics Year-on-Year
- Average area value
- 454,441.00 £Increased by 9.13 %
- Est sale value
- 716,770.00 £Increased by 19.69 %
- Average area rental value
- 2,040.00 £/moIncreased by 11.29 %
- Est letting value
- 2,290.00 £/moUnchanged by 0.00 %
- Est rental Yield
- 5.39 %Increased by 2.08 %
- Crime Rate
- 8.00 %Unchanged by 0.00 %
Agent Activity
Miles & Barr created the listing.
Nearby Schools
| Name | Type | Ofsted | Distance |
|---|---|---|---|
| Briary Children'S Centre | Children's Centre Linked Site | 0.38 KM | |
| Briary Primary School | Academy Converter | 0.58 KM | |
| Hampton Primary School | Academy Converter | Good | 0.92 KM |
| Herne Bay High School | Academy Converter | Good | 1.65 KM |
| Fairlight Glen Independent Special School | Other Independent Special School | Good | 2.62 KM |
Images
Nearby Streets
| Name | Average Price | Average Sqft | Distance |
|---|---|---|---|
| Dragonfly Drive | £ 0 | 0 | 0.00 KM |
| Hawthornden Street | £ 0 | 0 | 0.00 KM |
| West View Close | £ 0 | 0 | 0.00 KM |
| Sussex Close Path | £ 300,000 | 0 | 0.00 KM |
| Beaumont Street | £ 382,500 | 0 | 0.00 KM |
Nearby Transport
| Name | NLC | TLC | Distance |
|---|---|---|---|
| Herne Bay | 5174 | HNB | 2.27 KM |
| Chestfield And Swalecliffe | 5200 | CSW | 3.40 KM |
| Whitstable | 5196 | WHI | 7.12 KM |
| Sturry | 5029 | STU | 7.14 KM |
| Canterbury West | 5007 | CBW | 8.83 KM |
Nearby Listings
| Address | Price | Type | Score | Distance |
|---|---|---|---|---|
| Cornwall Road, Herne Bay, CT6 | £ 400,000 | BUY | 7 / 10 | 0.00 KM |
| Blackburn Road, Greenhill, Herne Bay, Kent | £ 400,000 | BUY | 7 / 10 | 0.09 KM |
| Blackburn Road, Greenhill, Herne Bay, Kent | £ 264,500 | BUY | 7 / 10 | 0.09 KM |
| Cornwall Road, Herne Bay, CT6 | £ 280,000 | BUY | 6 / 10 | 0.09 KM |
| Cornwall Road, Greenhill, Herne Bay, Kent | £ 350,000 | BUY | Unknown | 0.09 KM |
Nearby Properties
| Address | Price | Distance |
|---|---|---|
| 46 Cornwall Road | £ 187,000 | 0.10 KM |
| 32 Cornwall Road | £ 123,000 | 0.10 KM |
| 11 Cornwall Road | £ 197,500 | 0.10 KM |
| 18 Cornwall Road | £ 157,500 | 0.10 KM |
| 19 Cornwall Road | £ 150,000 | 0.10 KM |