RO
Shorland Oaks, Bracknell, Berkshire
By Romans
£ 475,000
Reviews
3 out of 5 stars
Romans says ..
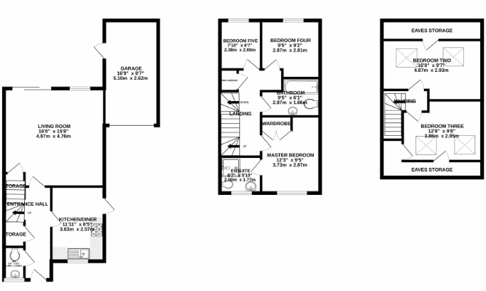
Located in the popular area of Warfiled is this extended five bedroom end of terrace home benefitting from garage, driveway parking and sold with no onward chain. The property comprises a separate kitchen, downstairs cloakroom and a 16' lounge diner with sliding doors onto your privat...
Property Oracle says ..
Therefore, we give this property 7 / 10. *Disclaimer: This is our option and does constitute a recommendation or financial advice. Do your own research. *
- Price
- 8
- Condition
- 7
- Location
- 8
- Land
- 7
- Bedrooms
- 5
- Bathrooms
- 2
- Sqft (est)
- 1,128.01
The heatmap indicates the level of crime in the area. The color of the heatmap indicates the crime severity and recency.
Metrics Year-on-Year
- Average area value
- 488,571.00 £Decreased by 8.34 %
- Est sale value
- 638,453.66 £Increased by 15.51 %
- Average area rental value
- 2,010.00 £/moDecreased by 11.84 %
- Est letting value
- 2,256.02 £/moUnchanged by 0.00 %
- Est rental Yield
- 4.94 %Decreased by 3.70 %
- Crime Rate
- 1.00 %Unchanged by 0.00 %
from 533,016.00 £
from 552,724.90 £
from 2,280.00 £/mo
from 2,256.02 £/mo
from 5.13 %
from 1.00 %
Agent Activity
Romans created the listing.
Nearby Schools
| Name | Type | Ofsted | Distance |
|---|---|---|---|
| Sandy Lane Primary School | Community School | Good | 0.81 KM |
| Garth Hill College | Community School | Good | 1.01 KM |
| Warfield Church Of England Primary School | Voluntary Controlled School | Good | 1.03 KM |
| Kennel Lane School | Community Special School | Good | 1.36 KM |
| Maples Children'S Centre | Children's Centre Linked Site | 1.43 KM |
Images
Nearby Streets
| Name | Average Price | Average Sqft | Distance |
|---|---|---|---|
| Deacon Groove | £ 602,500 | 0 | 0.00 KM |
| Quelm Lane | £ 0 | 0 | 0.00 KM |
| Hedge Lane | £ 0 | 0 | 0.00 KM |
| Kenilworth Avenue | £ 550,000 | 0 | 0.00 KM |
| All Saints Rise | £ 390,000 | 0 | 0.00 KM |
Nearby Transport
| Name | NLC | TLC | Distance |
|---|---|---|---|
| Bracknell | 5693 | BCE | 1.89 KM |
| Martins Heron | 5692 | MAO | 3.19 KM |
| Ascot (Berks) | 5666 | ACT | 7.94 KM |
| Bagshot | 5681 | BAG | 9.39 KM |
Nearby Listings
| Address | Price | Type | Score | Distance |
|---|---|---|---|---|
| Shorland Oaks, Bracknell, Berkshire | £ 475,000 | BUY | 7 / 10 | 0.00 KM |
| Shorland Oaks, Warfield, Berkshire, RG42 | £ 400,000 | BUY | 7 / 10 | 0.04 KM |
| Hemmyng Corner, Warfield, Bracknell, RG42 | £ 725,000 | BUY | 7 / 10 | 0.17 KM |
| Hemmyng Corner, Warfield, Bracknell, Berkshire, RG42 | £ 550,000 | BUY | 5 / 10 | 0.18 KM |
| Goddard Way, Warfield, Berkshire, RG42 | £ 900,000 | BUY | Unknown | 0.22 KM |
Nearby Properties
| Address | Price | Distance |
|---|---|---|
| 14 Shorland Oaks | £ 615,000 | 0.02 KM |
| 33 Shorland Oaks | £ 298,500 | 0.02 KM |
| 7a Shorland Oaks | £ 675,000 | 0.02 KM |
| 7 Shorland Oaks | £ 850,000 | 0.02 KM |
| 15 Shorland Oaks | £ 500,000 | 0.02 KM |