Albion Square, London Fields, E8
By Fyfe McDade Limited
£ 800,000
Reviews
3 out of 5 stars
Fyfe McDade Limited says ..
Land with planning permission for sale on a prime street in London Fields, E8.
Property Oracle says ..
This property is a new build located in the highly sought-after London Fields area of Hackney, East London. The location offers a fantastic blend of urban convenience and green open space, with easy access to London Fields itself and excellent transport connections via nearby Overground stations such as Haggerston and Dalston Junction. Several highly rated primary schools are within close proximity, making it an attractive option for families.
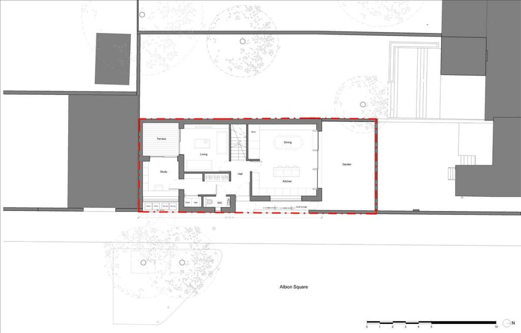
The architectural renderings show a modern, potentially well-designed home, with a focus on light and space. While there are no photos of the completed property to assess the final quality, the architectural style suggests a contemporary and functional design. The property is planned as a three-bedroom, two-bathroom home. The addition of a garden is a positive feature for the area.
The listed price of £800,000 sits within a range of prices for properties in Albion Square and the wider London Fields area, indicating a potentially fair market value. However, given the lack of information about actual square footage and final build quality, it’s challenging to give a definitive opinion on whether it is exceptional value for money or not. More specific information is needed to do this. Without this data, this analysis is limited. A thorough inspection of the finished property is recommended before making a purchase decision.
Therefore, we give this property 6 / 10. *Disclaimer: This is our option and does constitute a recommendation or financial advice. Do your own research. *
- Price
- 7
- Condition
- 7
- Location
- 9
- Land
- 4
- Bedrooms
- 3
- Bathrooms
- 2
The heatmap indicates the level of crime in the area. The color of the heatmap indicates the crime severity and recency.
Metrics Year-on-Year
- Average area value
- 832,500.00 £Increased by 1.06 %
- Average area rental value
- 2,762.00 £/moIncreased by 20.56 %
- Est rental Yield
- 3.98 %Increased by 19.16 %
- Crime Rate
- 3.00 %Unchanged by 0.00 %
Agent Activity
Fyfe McDade Limited marked this listing as sold.
Fyfe McDade Limited created the listing.
Nearby Schools
| Name | Type | Ofsted | Distance |
|---|---|---|---|
| Queensbridge Primary School | Community School | Outstanding | 0.11 KM |
| Mapledene Children'S Centre | Children's Centre | 0.18 KM | |
| Holy Trinity Church Of England Primary School | Voluntary Aided School | Good | 0.48 KM |
| The Bridge Academy | Academy Sponsor Led | Good | 0.54 KM |
| Waterside Academy | Free Schools | 0.61 KM |
Images
Nearby Streets
| Name | Average Price | Average Sqft | Distance |
|---|---|---|---|
| Holly Street | £ 0 | 0 | 0.00 KM |
| Richmond Road | £ 0 | 0 | 0.00 KM |
| Laurel Street | £ 895,000 | 0 | 0.00 KM |
| Nursery Lane | £ 0 | 0 | 0.00 KM |
| Boat Lane | £ 440,000 | 0 | 0.00 KM |
Nearby Transport
| Name | NLC | TLC | Distance |
|---|---|---|---|
| Haggerston | 1022 | HGG | 0.47 KM |
| Dalston Junction | 1443 | DLJ | 0.75 KM |
| Dalston Kingsland | 1429 | DLK | 0.98 KM |
| Hoxton | 1023 | HOX | 1.07 KM |
| Hackney Downs | 6867 | HAC | 1.53 KM |
Nearby Listings
| Address | Price | Type | Score | Distance |
|---|---|---|---|---|
| Albion Square, London Fields, E8 | £ 800,000 | BUY | 6 / 10 | 0.00 KM |
| Middleton Road, London, E8 | £ 575,000 | BUY | 6 / 10 | 0.04 KM |
| Holly Street, Haggerston, London, E8 | £ 1,200,000 | BUY | Unknown | 0.05 KM |
| Holly Street, Dalston, London, E8 | £ 450,000 | BUY | Unknown | 0.07 KM |
| Albion Square, London, E8 | £ 3,000,000 | BUY | 7 / 10 | 0.07 KM |
Nearby Properties
| Address | Price | Distance |
|---|---|---|
| 74 Middleton Road | £ 785,000 | 0.04 KM |
| 70a Middleton Road | £ 880,000 | 0.04 KM |
| 45 Middleton Road | £ 325,000 | 0.07 KM |
| 47 Middleton Road | £ 1,050,000 | 0.07 KM |
| 14 Albion Square | £ 2,602,000 | 0.08 KM |