Romans says ..
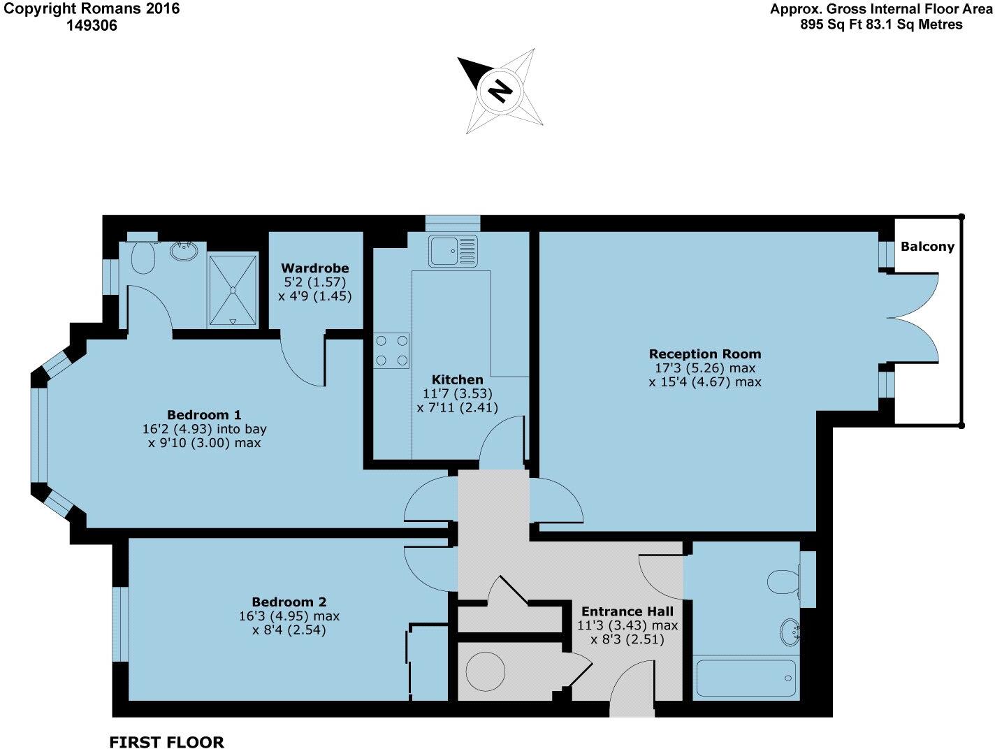
A well presented two bedroom first floor apartment within this gated development, built in 2007. The apartment would make an ideal first time buy or an investment property to let out. The property has spacious accommodation including a two double bedrooms; bedroom one has a walk in war...
Property Oracle says ..
Therefore, we give this property 7 / 10. *Disclaimer: This is our option and does constitute a recommendation or financial advice. Do your own research. *
- Price
- 9
- Condition
- 8
- Location
- 7
- Land
- 7
- Bedrooms
- 2
- Bathrooms
- 2
- Sqft (est)
- 627.29
The heatmap indicates the level of crime in the area. The color of the heatmap indicates the crime severity and recency.
Metrics Year-on-Year
- Average area value
- 1,043,333.00 £Increased by 83.77 %
- Est sale value
- 828,022.80 £Increased by 225.12 %
- Average area rental value
- 6,842.00 £/moIncreased by 222.89 %
- Est letting value
- 5,018.32 £/moIncreased by 700.00 %
- Est rental Yield
- 7.87 %Increased by 75.67 %
- Crime Rate
- 16.00 %Unchanged by 0.00 %
from 567,724.00 £
from 254,679.74 £
from 2,119.00 £/mo
from 627.29 £/mo
from 4.48 %
from 16.00 %
Agent Activity
Romans created the listing.
Nearby Schools
| Name | Type | Ofsted | Distance |
|---|---|---|---|
| Windlesham Village Infant School | Academy Converter | Requires improvement | 0.70 KM |
| Woodcote House School | Other Independent School | 0.73 KM | |
| Fernways School | Other Independent Special School | 0.79 KM | |
| Hall Grove School | Other Independent School | 1.59 KM | |
| St Mary'S School Ascot | Other Independent School | 1.80 KM |
Images
Nearby Streets
| Name | Average Price | Average Sqft | Distance |
|---|---|---|---|
| Kennel Lane | £ 0 | 0 | 0.00 KM |
| The Covert | £ 0 | 0 | 0.00 KM |
| New Road | £ 1,750,000 | 0 | 0.00 KM |
| Pound Lane | £ 0 | 0 | 0.00 KM |
| Rectory Lane | £ 0 | 0 | 0.00 KM |
Nearby Transport
| Name | NLC | TLC | Distance |
|---|---|---|---|
| Bagshot | 5681 | BAG | 2.79 KM |
| Ascot (Berks) | 5666 | ACT | 3.30 KM |
| Sunningdale | 5671 | SNG | 4.11 KM |
| Martins Heron | 5692 | MAO | 7.12 KM |
| Longcross | 5674 | LNG | 8.09 KM |
Nearby Listings
| Address | Price | Type | Score | Distance |
|---|---|---|---|---|
| London Road, Windlesham, Surrey | £ 325,000 | BUY | 7 / 10 | 0.00 KM |
| Windlesham, Surrey, GU20 | £ 750,000 | BUY | Unknown | 0.12 KM |
| London Road, Windlesham, GU20 | £ 1,100,000 | BUY | 7 / 10 | 0.18 KM |
| London Road, Windlesham, Surrey, GU20 | £ 375,000 | BUY | 7 / 10 | 0.18 KM |
| London Road, Windlesham | £ 1,000,000 | BUY | 7 / 10 | 0.18 KM |
Nearby Properties
| Address | Price | Distance |
|---|---|---|
| Three Maples | £ 206,500 | 0.13 KM |
| Glyndebourne House | £ 970,000 | 0.13 KM |
| Faraway | £ 1,825,000 | 0.13 KM |
| Cedar Cottage | £ 662,000 | 0.13 KM |
| Essex House | £ 2,285,000 | 0.13 KM |