haart says ..
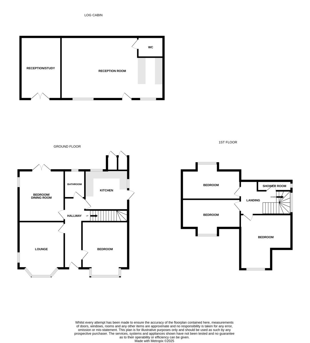
Guide Price: £375,000 - £400,000. Step into timeless charm and modern comfort with this exceptional 5-bedroom detached home, a rare gem that blends character, space, and versatility in perfect harmony
Property Oracle says ..
Therefore, we give this property 6 / 10. *Disclaimer: This is our option and does constitute a recommendation or financial advice. Do your own research. *
- Price
- 8
- Condition
- 5
- Location
- 7
- Land
- 7
- Bedrooms
- 5
- Bathrooms
- 2
- Sqft (est)
- 1,521.00
The heatmap indicates the level of crime in the area. The color of the heatmap indicates the crime severity and recency.
Metrics Year-on-Year
- Average area value
- 350,323.00 £Decreased by 1.18 %
- Est sale value
- 655,551.00 £Increased by 20.73 %
- Average area rental value
- 1,334.00 £/moDecreased by 2.49 %
- Est letting value
- 1,521.00 £/moUnchanged by 0.00 %
- Est rental Yield
- 4.57 %Decreased by 1.30 %
- Crime Rate
- 9.00 %Unchanged by 0.00 %
from 354,508.00 £
from 542,997.00 £
from 1,368.00 £/mo
from 1,521.00 £/mo
from 4.63 %
from 9.00 %
Agent Activity
haart created the listing.
Nearby Schools
| Name | Type | Ofsted | Distance |
|---|---|---|---|
| Clacton County High School | Academy Converter | Good | 0.68 KM |
| Ten2 St. James' Family Hub Delivery Site | Children's Centre Linked Site | 0.88 KM | |
| Shorefields School | Community Special School | Outstanding | 1.41 KM |
| Holland Park Primary School | Academy Converter | 1.65 KM | |
| Great Clacton Church Of England (Voluntary Aided) Junior School | Academy Sponsor Led | Good | 1.81 KM |
Images
Nearby Streets
| Name | Average Price | Average Sqft | Distance |
|---|---|---|---|
| St Pauls Road | £ 525,000 | 0 | 0.00 KM |
| Beach Mews | £ 135,000 | 0 | 0.00 KM |
| St Albans Road | £ 185,000 | 0 | 0.00 KM |
| Rosemary Road | £ 0 | 0 | 0.00 KM |
| Olivers Road | £ 0 | 0 | 0.00 KM |
Nearby Transport
| Name | NLC | TLC | Distance |
|---|---|---|---|
| Clacton-On-Sea | 6850 | CLT | 0.76 KM |
| Thorpe-Le-Soken | 6857 | TLS | 6.33 KM |
| Kirby Cross | 6862 | KBX | 8.28 KM |
| Weeley | 6859 | WEE | 8.52 KM |
Nearby Listings
| Address | Price | Type | Score | Distance |
|---|---|---|---|---|
| Church Road, Clacton-On-Sea | £ 375,000 | BUY | 6 / 10 | 0.00 KM |
| Church Road, Clacton-On-Sea | £ 375,000 | BUY | 5 / 10 | 0.02 KM |
| Harold Road, Clacton-On-Sea, Essex | £ 130,000 | BUY | 6 / 10 | 0.06 KM |
| Harold Road, Clacton on Sea, CO15 | £ 145,000 | BUY | 6 / 10 | 0.07 KM |
| Harold Road, Clacton-On-Sea | £ 260,000 | BUY | 5 / 10 | 0.08 KM |
Nearby Properties
| Address | Price | Distance |
|---|---|---|
| 17 Church Road | £ 193,000 | 0.01 KM |
| 19 Church Road | £ 343,000 | 0.01 KM |
| 11 Church Road | £ 282,000 | 0.01 KM |
| 15 Harold Road | £ 125,000 | 0.10 KM |
| 17 Harold Road | £ 240,000 | 0.10 KM |