Keatons says ..
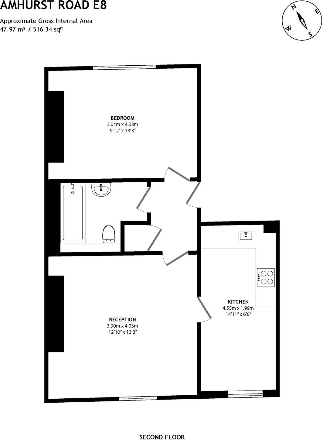
This exceptionally spacious one bedroom flat occupies the top floor of this imposing Victorian residence. Enjoying endless features including impressive ceiling heights, huge sash windows and contemporary fittings. Comprising a bright extensive living/entertaining space, spacious kitchen, double ...
Property Oracle says ..
Therefore, we give this property 5 / 10. *Disclaimer: This is our option and does constitute a recommendation or financial advice. Do your own research. *
- Price
- 5
- Condition
- 6
- Location
- 8
- Land
- 1
- Bedrooms
- 1
- Bathrooms
- 1
- Sqft (est)
- 398.51
The heatmap indicates the level of crime in the area. The color of the heatmap indicates the crime severity and recency.
Metrics Year-on-Year
- Average area value
- 440,000.00 £Decreased by 31.24 %
- Est sale value
- 304,063.13 £Increased by 0.26 %
- Average area rental value
- 2,681.00 £/moIncreased by 3.51 %
- Est letting value
- 1,594.04 £/moIncreased by 33.33 %
- Est rental Yield
- 7.31 %Increased by 50.41 %
- Crime Rate
- 3.00 %Unchanged by 0.00 %
from 639,918.00 £
from 303,266.11 £
from 2,590.00 £/mo
from 1,195.53 £/mo
from 4.86 %
from 3.00 %
Agent Activity
Keatons created the listing.
Nearby Schools
| Name | Type | Ofsted | Distance |
|---|---|---|---|
| Brook Satellite Children'S Centre | Children's Centre Linked Site | 0.15 KM | |
| Mossbourne Parkside Academy | Academy Converter | Good | 0.15 KM |
| Mossbourne Community Academy | Academy Sponsor Led | Outstanding | 0.21 KM |
| Stormont House School | Community Special School | Outstanding | 0.43 KM |
| Nightingale Primary School | Community School | Good | 0.70 KM |
Images
Nearby Streets
| Name | Average Price | Average Sqft | Distance |
|---|---|---|---|
| Spurstowe Road | £ 0 | 0 | 0.00 KM |
| Tolsford Road | £ 0 | 0 | 0.00 KM |
| Blakeney Close | £ 0 | 0 | 0.00 KM |
| Foxley Close | £ 0 | 0 | 0.00 KM |
| Kenmure Yard | £ 0 | 0 | 0.00 KM |
Nearby Transport
| Name | NLC | TLC | Distance |
|---|---|---|---|
| Hackney Downs | 6867 | HAC | 0.24 KM |
| Hackney Central | 6977 | HKC | 0.79 KM |
| London Fields | 6966 | LOF | 1.13 KM |
| Rectory Road | 6967 | REC | 1.13 KM |
| Clapton | 6926 | CPT | 1.42 KM |
Nearby Listings
| Address | Price | Type | Score | Distance |
|---|---|---|---|---|
| Amhurst Road, London, E8 | £ 450,000 | BUY | 5 / 10 | 0.00 KM |
| Amhurst Road, London, E8 | £ 550,000 | BUY | 5 / 10 | 0.01 KM |
| Andre Street, Hackney, London, E8 | £ 850,000 | BUY | Unknown | 0.02 KM |
| Amhurst Road, Hackney, London, E8 | £ 600,000 | BUY | 6 / 10 | 0.04 KM |
| Amhurst Road, E8 | £ 630,000 | BUY | 8 / 10 | 0.05 KM |
Nearby Properties
| Address | Price | Distance |
|---|---|---|
| 106 Amhurst Road | £ 640,000 | 0.02 KM |
| 129 Amhurst Road | £ 205,000 | 0.05 KM |
| 123a Amhurst Road | £ 1,150,000 | 0.05 KM |
| 129a Amhurst Road | £ 492,800 | 0.05 KM |
| 117a Amhurst Road | £ 1,200,000 | 0.05 KM |