Hunters says ..
Hunters are proud to present this remarkable 2-bedroom freehold terraced house, an exemplary representation of a charming property within the sought-after Jesus Green location. This house is a rare find, boasting an array of features that effortlessly blend traditional charm and modern convenienc...
Property Oracle says ..
The property is located in the Weavers area of Tower Hamlets, London. This area is known for its vibrant community and proximity to several transport links, including Bethnal Green station (approximately 0.95km away). The property itself appears to be in good condition, with a recently updated kitchen and bathroom. The photos show a well-maintained interior with modern fixtures. The property includes a garden, which is a desirable feature in London. The list price is £1,200,000. While comparable properties in the area are not directly provided, the price appears to be in line with the average price for similar properties in nearby streets. More information on the average price per square foot would be needed for a more definitive assessment of the price.
Therefore, we give this property 7 / 10. *Disclaimer: This is our option and does constitute a recommendation or financial advice. Do your own research. *
- Price
- 7
- Condition
- 8
- Location
- 9
- Land
- 7
- Bedrooms
- 2
- Bathrooms
- 1
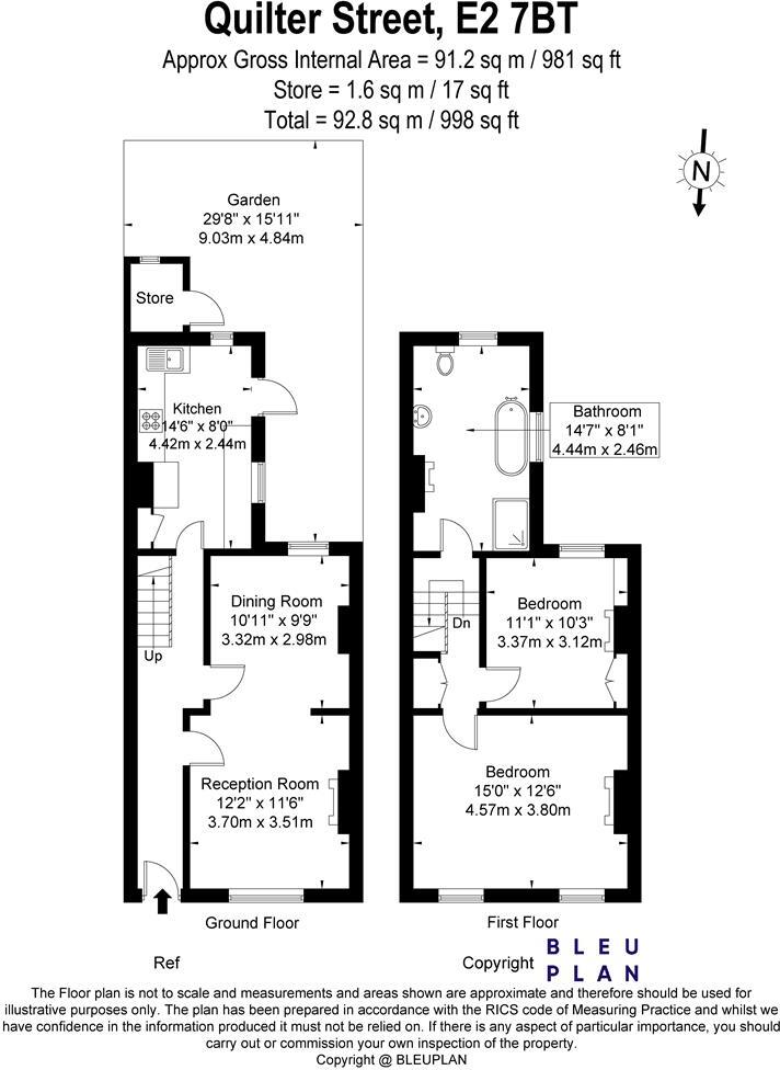
- Sqft (est)
- 998.89
The heatmap indicates the level of crime in the area. The color of the heatmap indicates the crime severity and recency.
Metrics Year-on-Year
- Average area value
- 599,375.00 £Decreased by 3.07 %
- Est sale value
- 957,935.51 £Increased by 15.54 %
- Average area rental value
- 2,567.00 £/moDecreased by 0.31 %
- Est letting value
- 3,995.56 £/moIncreased by 33.33 %
- Est rental Yield
- 5.14 %Increased by 2.80 %
- Crime Rate
- 3.00 %Unchanged by 0.00 %
Agent Activity
Hunters created the listing.
Nearby Schools
| Name | Type | Ofsted | Distance |
|---|---|---|---|
| Elizabeth Selby Infants' School | Community School | Good | 0.34 KM |
| The School At Hackney City Farm | Other Independent School | Good | 0.35 KM |
| Mulberry Academy Shoreditch | Academy Converter | Outstanding | 0.38 KM |
| Columbia Primary School | Community School | Good | 0.39 KM |
| Lawdale Junior School | Community School | Good | 0.46 KM |
Images
Nearby Streets
| Name | Average Price | Average Sqft | Distance |
|---|---|---|---|
| Kite Place | £ 527,500 | 0 | 0.00 KM |
| Ion Square | £ 0 | 0 | 0.00 KM |
| St. Peter's Square | £ 0 | 0 | 0.00 KM |
| Warner Place | £ 0 | 0 | 0.00 KM |
| Ivimey Street | £ 0 | 0 | 0.00 KM |
Nearby Transport
| Name | NLC | TLC | Distance |
|---|---|---|---|
| Bethnal Green Rail | 6961 | BET | 0.95 KM |
| Hoxton | 1023 | HOX | 1.05 KM |
| Cambridge Heath | 6962 | CBH | 1.08 KM |
| Shoreditch High Street | 1024 | SDC | 1.14 KM |
| Whitechapel | 4935 | ZLW | 1.29 KM |
Nearby Listings
| Address | Price | Type | Score | Distance |
|---|---|---|---|---|
| Quilter Street, London, E2 | £ 1,200,000 | BUY | 7 / 10 | 0.00 KM |
| Wimbolt Street, London, E2 | £ 1,100,000 | BUY | 5 / 10 | 0.10 KM |
| Baxendale Street, Jesus Green | £ 1,100,000 | BUY | 6 / 10 | 0.11 KM |
| Durant Street, Bethnal Green, London, E2 | £ 650,000 | BUY | 6 / 10 | 0.11 KM |
| Barnet Grove, London, E2 | £ 1,100,000 | BUY | 6 / 10 | 0.11 KM |
Nearby Properties
| Address | Price | Distance |
|---|---|---|
| 113 Wellington Row | £ 465,000 | 0.04 KM |
| 111 Wellington Row | £ 1,065,000 | 0.04 KM |
| 83a Wellington Row | £ 845,000 | 0.04 KM |
| 107 Wellington Row | £ 330,000 | 0.04 KM |
| 83 Wellington Row | £ 1,225,000 | 0.04 KM |