Bromley Street, Blackburn
By Keenans Estate Agents
£ 200,000
Reviews
3 out of 5 stars
Keenans Estate Agents says ..
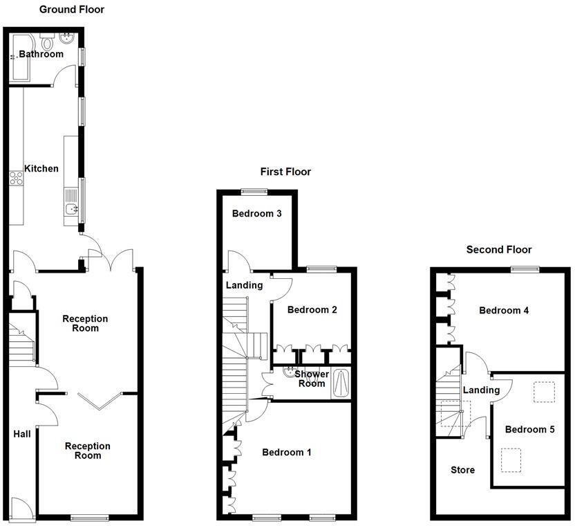
NEUTRALLY FINISHED FIVE BEDROOM HOME Welcome to this deceptively spacious five-bedroom terraced home located on Bromley Street in Blackburn. This property offers an ideal blend of modern living and comfort, making it perfect for families or those seeking ample space. As you ent...
Property Oracle says ..
Therefore, we give this property 6 / 10. *Disclaimer: This is our option and does constitute a recommendation or financial advice. Do your own research. *
- Price
- 8
- Condition
- 8
- Location
- 7
- Land
- 1
- Bedrooms
- 5
- Bathrooms
- 2
- Sqft (est)
- 1,277.00
The heatmap indicates the level of crime in the area. The color of the heatmap indicates the crime severity and recency.
Metrics Year-on-Year
- Average area value
- 222,500.00 £Increased by 57.52 %
- Est sale value
- 455,889.00 £Increased by 233.64 %
- Average area rental value
- 450.00 £/moDecreased by 12.96 %
- Est letting value
- 0.00 £/mo
- Est rental Yield
- 2.43 %Decreased by 44.65 %
- Crime Rate
- 11.00 %Unchanged by 0.00 %
from 141,252.00 £
from 136,639.00 £
from 517.00 £/mo
from 0.00 £/mo
from 4.39 %
from 11.00 %
Agent Activity
Keenans Estate Agents created the listing.
Nearby Schools
| Name | Type | Ofsted | Distance |
|---|---|---|---|
| Dar Ul Madinah | Other Independent School | Inadequate | 0.45 KM |
| Ashworth Nursery School | Local Authority Nursery School | Outstanding | 0.51 KM |
| Wensley Fold Children'S Centre | Children's Centre | 0.55 KM | |
| St Barnabas And St Paul'S Church Of England Voluntary Aided Primary School | Voluntary Aided School | Outstanding | 0.59 KM |
| Queen Elizabeth'S Primary School | Free Schools | 0.63 KM |
Images
Nearby Streets
| Name | Average Price | Average Sqft | Distance |
|---|---|---|---|
| St Barnabas Street | £ 0 | 0 | 0.00 KM |
| Wensley Road | £ 0 | 0 | 0.00 KM |
| Leamington Close | £ 0 | 0 | 0.00 KM |
| Hazel Close | £ 0 | 0 | 0.00 KM |
| Leamington Road | £ 210,000 | 0 | 0.00 KM |
Nearby Transport
| Name | NLC | TLC | Distance |
|---|---|---|---|
| Mill Hill (Lancs) | 2750 | MLH | 1.49 KM |
| Blackburn | 2737 | BBN | 2.22 KM |
| Cherry Tree | 2573 | CYT | 2.76 KM |
| Ramsgreave And Wilpshire | 2734 | RGW | 4.17 KM |
| Pleasington | 2752 | PLS | 5.36 KM |
Nearby Listings
| Address | Price | Type | Score | Distance |
|---|---|---|---|---|
| Bromley Street, Blackburn | £ 200,000 | BUY | 6 / 10 | 0.00 KM |
| St. Barnabas Street, Blackburn, Lancashire, BB2 | £ 90,000 | BUY | 5 / 10 | 0.06 KM |
| 21 Bromley Street, Blackburn BB2 6LJ | £ 40,000 | BUY | 5 / 10 | 0.06 KM |
| Preston New Road, Blackburn | £ 325,000 | BUY | 4 / 10 | 0.13 KM |
| Downham Street, Blackburn | £ 149,950 | BUY | 6 / 10 | 0.14 KM |
Nearby Properties
| Address | Price | Distance |
|---|---|---|
| 51 Bromley Street | £ 68,779 | 0.03 KM |
| 41 Bromley Street | £ 81,000 | 0.03 KM |
| 65 Bromley Street | £ 114,000 | 0.03 KM |
| 16 St Barnabas Street | £ 65,500 | 0.04 KM |
| 4 St Barnabas Street | £ 15,000 | 0.04 KM |