DE
Chapter Road, Willesden
By Dexters
£ 122,500
Dexters says ..
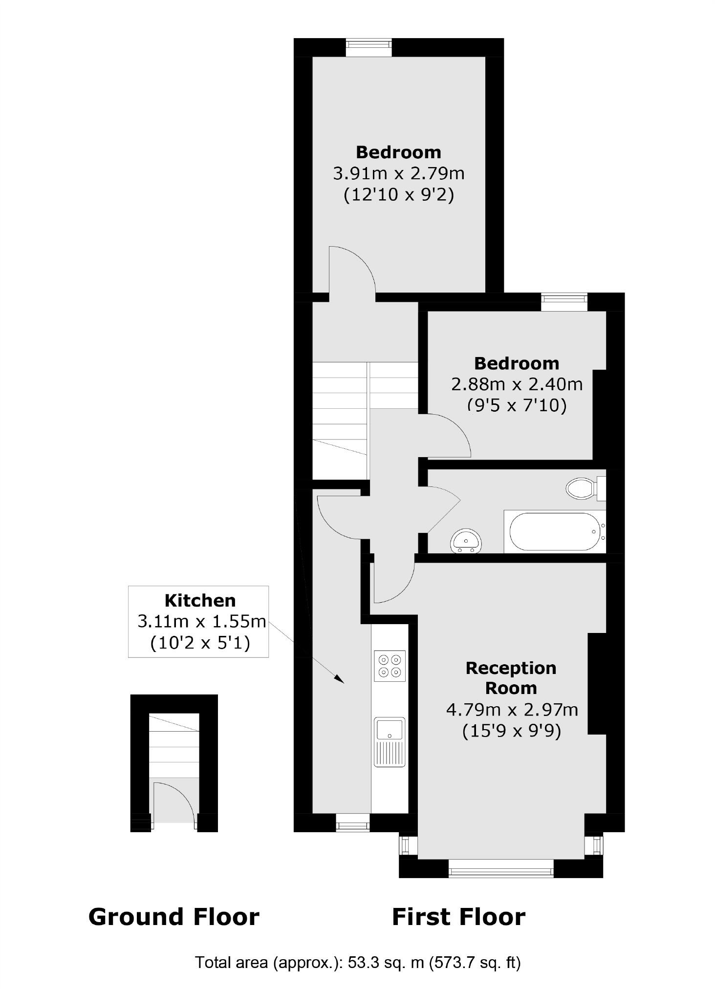
**SHARED OWNERSHIP**A two double bedroom first floor period conversion measuring in excess of 570 sq.ft, with a large reception room, separate kitchen, bathroom and no onward chain. There is also potential to convert the loft (STPP).
- Bedrooms
- 2
- Bathrooms
- 1
The heatmap indicates the level of crime in the area. The color of the heatmap indicates the crime severity and recency.
Metrics Year-on-Year
- Average area value
- 628,995.00 £Increased by 10.43 %
- Average area rental value
- 1,632.00 £/moDecreased by 14.96 %
- Est rental Yield
- 3.11 %Decreased by 23.02 %
- Crime Rate
- 6.00 %Unchanged by 0.00 %
from 569,600.00 £
from 1,919.00 £/mo
from 4.04 %
from 6.00 %
Agent Activity
Dexters created the listing.
Nearby Schools
| Name | Type | Ofsted | Distance |
|---|---|---|---|
| St Andrew And St Francis Cofe Primary School | Academy Sponsor Led | Good | 0.28 KM |
| Gladstone Park Primary School | Academy Sponsor Led | Good | 0.34 KM |
| St Mary Magdalen'S Catholic Junior School | Voluntary Aided School | Good | 0.69 KM |
| Convent Of Jesus And Mary Rc Infant School | Voluntary Aided School | Outstanding | 0.81 KM |
| Avigdor Hirsch Torah Temimah Primary School | Voluntary Aided School | Good | 0.95 KM |
Images
Nearby Streets
| Name | Average Price | Average Sqft | Distance |
|---|---|---|---|
| St Andrews Road | £ 315,000 | 0 | 0.00 KM |
| Kendal Road | £ 0 | 0 | 0.00 KM |
| Clare Road | £ 0 | 0 | 0.00 KM |
| Unity Close | £ 0 | 0 | 0.00 KM |
| Staverton Road | £ 0 | 0 | 0.00 KM |
Nearby Transport
| Name | NLC | TLC | Distance |
|---|---|---|---|
| Willesden Junction | 1457 | WIJ | 2.35 KM |
| Kensal Rise | 1448 | KNR | 2.38 KM |
| Kensal Green | 1447 | KNL | 2.46 KM |
| Cricklewood | 1519 | CRI | 2.50 KM |
| Brondesbury Park | 1438 | BSP | 2.87 KM |
Nearby Listings
| Address | Price | Type | Score | Distance |
|---|---|---|---|---|
| Chapter Road, Willesden | £ 122,500 | BUY | Unknown | 0.00 KM |
| Chapter Road, Willesden | £ 350,000 | BUY | Unknown | 0.00 KM |
| Chapter Road, London | £ 450,000 | BUY | 6 / 10 | 0.05 KM |
| Sandringham Road, London NW2 | £ 350,000 | BUY | Unknown | 0.08 KM |
| Sandringham Road, London NW2 | £ 299,950 | BUY | 6 / 10 | 0.08 KM |
Nearby Properties
| Address | Price | Distance |
|---|---|---|
| 150 Chapter Road | £ 246,500 | 0.03 KM |
| 142 Chapter Road | £ 640,000 | 0.03 KM |
| 78 Sandringham Road | £ 149,950 | 0.10 KM |
| 78a Sandringham Road | £ 465,000 | 0.10 KM |
| 92 Sandringham Road | £ 770,000 | 0.10 KM |