Goldstone Drive, Bridgnorth, Shropshire, WV16
Doolittle & Dalley logo

Goldstone Drive, Bridgnorth, Shropshire, WV16

By Doolittle & Dalley

£ 280,000

Reviews

3 out of 5 stars

Doolittle & Dalley says ..

Doolittle and Dalley are pleased to present this wonderful three bedroom semi detached family home. Local amenities are close by whilst still being within easy reach of the historic market town of Bridgnorth, which offers an array of independent shops and cafes and everyday amenities. Located in ...

Property Oracle says ..

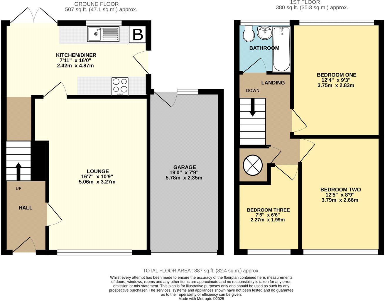
This property is a 3-bedroom semi-detached house located in Bridgnorth, Shropshire. The list price is £280,000, and the property has 887 sqft of living space. The average price for similar properties in the area is £397,461, with an average price per sqft of £325. The property appears to be in good condition based on the provided images, with a modern kitchen and bathroom. There is a garden present. While the list price is below the average for the area, it is important to note that the sqft of this property is significantly smaller than the average. The location is close to several schools, including St. John’s Catholic Primary School (rated “Good” by Ofsted) and Bridgnorth Endowed School (also rated “Good”).

Therefore, we give this property 7 / 10. *Disclaimer: This is our option and does constitute a recommendation or financial advice. Do your own research. *

Price
7
Condition
8
Location
7
Land
6
Bedrooms
3
Bathrooms
1
Sqft (est)
887.00

The heatmap indicates the level of crime in the area. The color of the heatmap indicates the crime severity and recency.

Metrics Year-on-Year

Average area value
350,000.00 £
Increased by 13.87 %
from 307,363.00 £
Est sale value
329,964.00 £
Increased by 20.00 %
from 274,970.00 £
Average area rental value
965.00 £/mo
Decreased by 13.76 %
from 1,119.00 £/mo
Est letting value
887.00 £/mo
Unchanged by 0.00 %
from 887.00 £/mo
Est rental Yield
3.31 %
Decreased by 24.26 %
from 4.37 %
Crime Rate
9.00 %
Unchanged by 0.00 %
from 9.00 %

Agent Activity

  • Doolittle & Dalley created the listing.

Nearby Schools

NameTypeOfstedDistance
Shropshire Se Early Help Family HubChildren's Centre0.45 KM
St Leonard'S Cofe Primary SchoolAcademy Converter0.66 KM
St John'S Catholic Primary SchoolVoluntary Aided SchoolGood0.68 KM
Bridgnorth Endowed SchoolAcademy ConverterGood1.08 KM
Oldbury Wells SchoolAcademy ConverterGood1.31 KM

Images

Picture No. 24 Picture No. 12 Picture No. 15 Picture No. 16 Picture No. 19 Picture No. 18 Picture No. 21 Picture No. 17 Picture No. 14 Picture No. 13 Picture No. 42 Picture No. 27 Picture No. 28 Picture No. 29 Picture No. 32 Picture No. 30 Picture No. 31 Picture No. 40 Picture No. 38 Picture No. 37 Picture No. 39 Picture No. 41 Picture No. 33 Picture No. 34 Picture No. 36

Nearby Streets

NameAverage PriceAverage SqftDistance
Princess Drive £ 310,00000.00 KM
Westgate £ 170,00000.00 KM
Westland Drive £ 000.00 KM
Hollybush Road £ 000.00 KM
Ashcroft £ 385,00000.00 KM

Nearby Listings

AddressPriceTypeScoreDistance
Goldstone Drive, Bridgnorth, Shropshire, WV16 £ 280,000BUY7 / 100.00 KM
Goldstone Drive, Bridgnorth, Shropshire £ 255,000BUY7 / 100.02 KM
10 Goldstone Drive, Bridgnorth £ 299,950BUY7 / 100.02 KM
12 Queensway Drive, Bridgnorth £ 500,000BUY7 / 100.08 KM
16 Dunval Road, Bridgnorth £ 365,000BUY7 / 100.11 KM

Nearby Properties

AddressPriceDistance
25 Goldstone Drive £ 179,3500.02 KM
10 Goldstone Drive £ 194,9500.02 KM
2 Goldstone Drive £ 300,0000.02 KM
13 Goldstone Drive £ 192,0000.02 KM
8 Goldstone Drive £ 189,0000.02 KM