Kimberley Road, Evington, Leicester
By Knightsbridge Estate Agents & Valuers
£ 475,000
Reviews
3 out of 5 stars
Knightsbridge Estate Agents & Valuers says ..
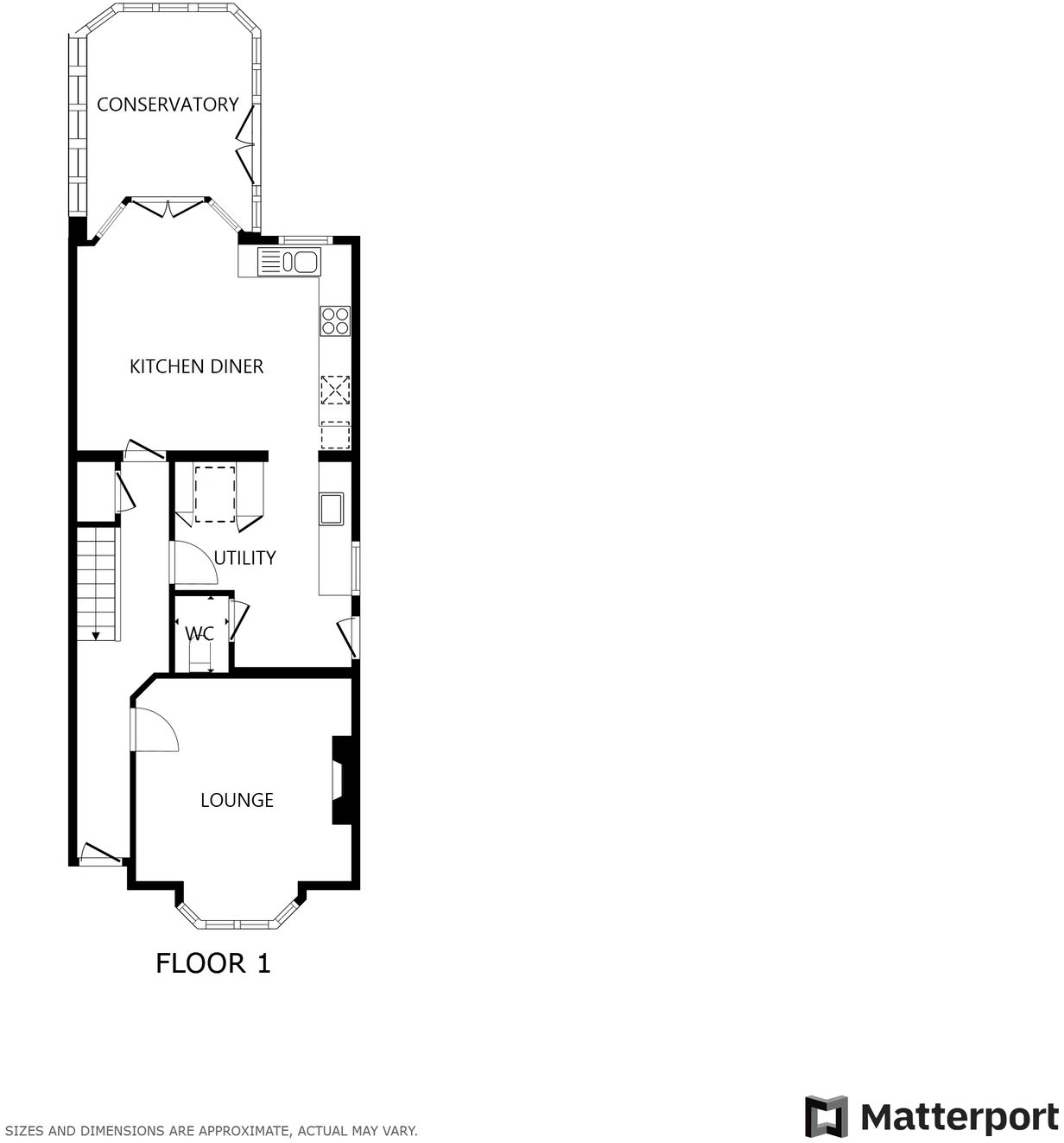
Offering FOUR DOUBLE BEDROOMS is this SPACIOUS three storey semi-detached property situated on Kimberley Road. The loft provides great scope for dormer loft conversion, sub. to planning permissions.
Property Oracle says ..
This property is a 4-bedroom, 2-bathroom semi-detached house located on Kimberley Road in Stoneygate, Leicester. The area is characterized by its proximity to good schools, including Land Of Learning Primary School and Evington Valley Primary School, both rated as “Good” by Ofsted. Leicester train station is also within a reasonable distance, offering convenient transportation links. The property itself boasts a well-maintained garden, as evidenced by the provided photographs, which show a patio area, mature trees and shrubs, and a decked area. The interior appears to be in good condition, with some traditional features and modern updates. The kitchen and bathrooms appear clean and well-maintained. The property benefits from a conservatory. The asking price of £475,000 is higher than the average price for the area (£305,921), but comparable to other semi-detached properties in the immediate vicinity. The average price per square foot in the area is £299, and while the square footage of this property is not provided, the price seems relatively in line with similar properties in the area, considering its features and location. Overall, the property presents a desirable combination of location, condition, and amenities.
Therefore, we give this property 7 / 10. *Disclaimer: This is our option and does constitute a recommendation or financial advice. Do your own research. *
- Price
- 7
- Condition
- 8
- Location
- 9
- Land
- 7
- Bedrooms
- 4
- Bathrooms
- 2
- Sqft (est)
- 559.00
The heatmap indicates the level of crime in the area. The color of the heatmap indicates the crime severity and recency.
Metrics Year-on-Year
- Average area value
- 300,000.00 £Decreased by 8.89 %
- Est sale value
- 233,103.00 £Increased by 38.54 %
- Average area rental value
- 871.00 £/moDecreased by 7.24 %
- Est letting value
- 559.00 £/mo
- Est rental Yield
- 3.48 %Increased by 1.75 %
- Crime Rate
- 1.00 %Unchanged by 0.00 %
Agent Activity
Knightsbridge Estate Agents & Valuers created the listing.
Nearby Schools
| Name | Type | Ofsted | Distance |
|---|---|---|---|
| Land Of Learning Primary School | Other Independent School | Good | 0.47 KM |
| Evington Valley Primary School | Community School | Good | 0.49 KM |
| Leicester Preparatory School | Other Independent School | 0.60 KM | |
| Leicester Islamic Academy | Other Independent School | Good | 0.67 KM |
| Imam Muhammad Adam Institute Boys School | Other Independent School | 0.78 KM |
Images
Nearby Streets
| Name | Average Price | Average Sqft | Distance |
|---|---|---|---|
| Oakfield Road | £ 0 | 0 | 0.00 KM |
| Chesterfield Road | £ 0 | 0 | 0.00 KM |
| Aber Walk | £ 475,000 | 0 | 0.00 KM |
| East Avenue | £ 0 | 0 | 0.00 KM |
| Francis Walk | £ 0 | 0 | 0.00 KM |
Nearby Transport
| Name | NLC | TLC | Distance |
|---|---|---|---|
| Leicester | 1947 | LEI | 2.45 KM |
| South Wigston | 1949 | SWS | 5.53 KM |
| Syston | 1900 | SYS | 8.35 KM |
Nearby Listings
| Address | Price | Type | Score | Distance |
|---|---|---|---|---|
| Kimberley Road, Evington, Leicester | £ 475,000 | BUY | 7 / 10 | 0.00 KM |
| St. Philips Road, Evington, Leicester | £ 450,000 | BUY | Unknown | 0.13 KM |
| St. Philips Road, Evington, Leicester | £ 475,000 | BUY | 6 / 10 | 0.13 KM |
| St. Philips Road, Evington, Leicester, LE5 | £ 625,000 | BUY | 6 / 10 | 0.14 KM |
| Evington Parks Road, Evington, Leicester | £ 340,000 | BUY | 6 / 10 | 0.14 KM |
Nearby Properties
| Address | Price | Distance |
|---|---|---|
| 196 Kimberley Road | £ 230,000 | 0.05 KM |
| 188 Kimberley Road | £ 208,000 | 0.05 KM |
| 234 Kimberley Road | £ 332,250 | 0.05 KM |
| 256 Kimberley Road | £ 348,500 | 0.06 KM |
| 194 Kimberley Road | £ 112,000 | 0.06 KM |