Bettermove says ..
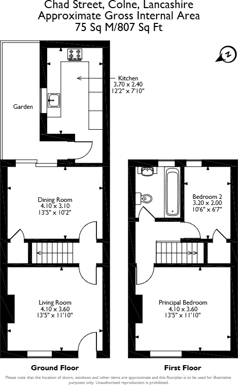
A SPACIOUS TWO BED TERRACED HOUSE in Colne, available VACANT for IMMEDIATE possession and CHAIN FREE. Call to enquire!Bettermove are proud to present this 2 bedroom terraced house in Colne, available with no forward chain.This property benefits from double glazing and gas central...
Property Oracle says ..
This two-bedroom terraced house on Chad Street, Colne, presents a good opportunity for first-time buyers or investors. The property benefits from a modern interior, including a recently updated kitchen and bathroom. While the outdoor space is limited, the location offers convenient access to local schools and transport links. The competitive price point makes it an attractive option in the current market.
Therefore, we give this property 6 / 10. *Disclaimer: This is our option and does constitute a recommendation or financial advice. Do your own research. *
- Price
- 8
- Condition
- 7
- Location
- 6
- Land
- 3
- Bedrooms
- 2
- Bathrooms
- 1
The heatmap indicates the level of crime in the area. The color of the heatmap indicates the crime severity and recency.
Metrics Year-on-Year
- Average area value
- 190,541.00 £Increased by 16.43 %
- Average area rental value
- 580.00 £/moDecreased by 7.94 %
- Est rental Yield
- 3.65 %Decreased by 21.00 %
- Crime Rate
- 3.00 %Unchanged by 0.00 %
Agent Activity
Bettermove created the listing.
Nearby Schools
| Name | Type | Ofsted | Distance |
|---|---|---|---|
| Pendle Vale College | Community School | Good | 0.30 KM |
| Pendle Community High School & College | Community Special School | Outstanding | 0.36 KM |
| Pendle View Primary School | Community Special School | Outstanding | 0.59 KM |
| Castercliff Primary School | Academy Sponsor Led | Good | 0.86 KM |
| Ss John Fisher And Thomas More Roman Catholic High School | Voluntary Aided School | Requires improvement | 0.92 KM |
Images
Nearby Streets
| Name | Average Price | Average Sqft | Distance |
|---|---|---|---|
| Thorne Street | £ 160,000 | 0 | 0.00 KM |
| Hacking Street | £ 0 | 0 | 0.00 KM |
| Rosehill Road | £ 0 | 0 | 0.00 KM |
| Bennett Street | £ 85,000 | 0 | 0.00 KM |
| Liddesdale Road | £ 0 | 0 | 0.00 KM |
Nearby Transport
| Name | NLC | TLC | Distance |
|---|---|---|---|
| Colne | 2562 | CNE | 1.93 KM |
| Nelson | 2565 | NEL | 2.22 KM |
| Brierfield | 2554 | BRF | 5.01 KM |
| Burnley Central | 2550 | BNC | 7.89 KM |
| Burnley Manchester Road | 2549 | BYM | 8.89 KM |
Nearby Listings
| Address | Price | Type | Score | Distance |
|---|---|---|---|---|
| Chad Street, Colne, BB8 | £ 105,000 | BUY | 6 / 10 | 0.00 KM |
| Chad Street, Colne | £ 110,000 | BUY | 6 / 10 | 0.01 KM |
| Swinden Lane, Colne, BB8 | £ 125,000 | BUY | 7 / 10 | 0.05 KM |
| Leeds Road, Nelson | £ 120,000 | BUY | 5 / 10 | 0.11 KM |
| Burnley Road, Colne | £ 139,950 | BUY | Unknown | 0.14 KM |
Nearby Properties
| Address | Price | Distance |
|---|---|---|
| 1 Chad Street | £ 81,000 | 0.01 KM |
| 3 Chad Street | £ 60,000 | 0.01 KM |
| 7 Chad Street | £ 63,000 | 0.01 KM |
| 9 Chad Street | £ 55,000 | 0.01 KM |
| 362 Burnley Road | £ 73,000 | 0.04 KM |