Pemberton Road, East Molesey, KT8
By Newton Huxley
£ 925,000
Reviews
3 out of 5 stars
Newton Huxley says ..
Rare Victorian home in with 3 double bedrooms, versatile living spaces, impressive garden room, and potential for expansion. Viewing highly recommended!
Property Oracle says ..
The property is located in a desirable area of East Molesey with good schools and transport links. The interior appears to have been recently renovated and is in good condition. The inclusion of a garden and a studio/workshop adds value to the property. While the list price is slightly above the average for the area, it is considered reasonable in comparison to similar properties, taking into account the renovations and additional features.
Therefore, we give this property 7 / 10. *Disclaimer: This is our option and does constitute a recommendation or financial advice. Do your own research. *
- Price
- 7
- Condition
- 9
- Location
- 8
- Land
- 6
- Bedrooms
- 3
- Bathrooms
- 1
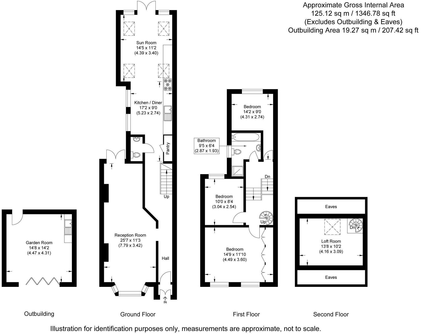
- Sqft (est)
- 1,346.78
- Lot (est)
- 207.42
The heatmap indicates the level of crime in the area. The color of the heatmap indicates the crime severity and recency.
Metrics Year-on-Year
- Average area value
- 736,658.00 £Decreased by 7.15 %
- Est sale value
- 975,068.72 £Increased by 11.56 %
- Average area rental value
- 2,100.00 £/moDecreased by 8.93 %
- Est letting value
- 2,693.56 £/moIncreased by 100.00 %
- Est rental Yield
- 3.42 %Decreased by 2.01 %
- Crime Rate
- 6.00 %Unchanged by 0.00 %
Agent Activity
Newton Huxley created the listing.
Nearby Schools
| Name | Type | Ofsted | Distance |
|---|---|---|---|
| St Lawrence Cofe Aided Junior School, East Molesey | Voluntary Aided School | Good | 0.39 KM |
| St Alban'S Catholic Primary School | Academy Converter | Good | 0.59 KM |
| The Orchard Infant School | Foundation School | Outstanding | 1.03 KM |
| Chandlers Field Primary School | Foundation School | Good | 1.38 KM |
| Twickenham Preparatory School | Other Independent School | 1.47 KM |
Images
Nearby Streets
| Name | Average Price | Average Sqft | Distance |
|---|---|---|---|
| Parabola Court | £ 0 | 0 | 0.00 KM |
| Kent Road | £ 1,166,650 | 0 | 0.00 KM |
| Manor Road | £ 1,525,000 | 0 | 0.00 KM |
| Church Road | £ 1,093,571 | 0 | 0.00 KM |
| School Road | £ 573,429 | 0 | 0.00 KM |
Nearby Transport
| Name | NLC | TLC | Distance |
|---|---|---|---|
| Hampton Court | 5561 | HMC | 1.70 KM |
| Hampton | 5560 | HMP | 2.18 KM |
| Esher | 5558 | ESH | 2.53 KM |
| Thames Ditton | 5610 | THD | 2.55 KM |
| Hinchley Wood | 5591 | HYW | 3.59 KM |
Nearby Listings
| Address | Price | Type | Score | Distance |
|---|---|---|---|---|
| Pemberton Road, East Molesey, KT8 | £ 925,000 | BUY | 7 / 10 | 0.00 KM |
| Parabola Court, Pemberton Road, East Molesey | £ 699,950 | BUY | 7 / 10 | 0.04 KM |
| Pemberton Road, East Molesey | £ 1,025,000 | BUY | 6 / 10 | 0.04 KM |
| Pemberton Road, East Molesey, KT8 | £ 975,000 | BUY | 7 / 10 | 0.05 KM |
| Pemberton Road, East Molesey | £ 750,000 | BUY | 7 / 10 | 0.06 KM |
Nearby Properties
| Address | Price | Distance |
|---|---|---|
| 33 Pemberton Road | £ 497,000 | 0.01 KM |
| 49 Pemberton Road | £ 815,000 | 0.01 KM |
| 3 Pemberton Road | £ 690,000 | 0.01 KM |
| 61 Pemberton Road | £ 742,500 | 0.01 KM |
| 57 Pemberton Road | £ 1,025,000 | 0.01 KM |