CH
West Buckland, Kingsbridge, TQ7
By Charles Head
£ 600,000
Reviews
3 out of 5 stars
Charles Head says ..
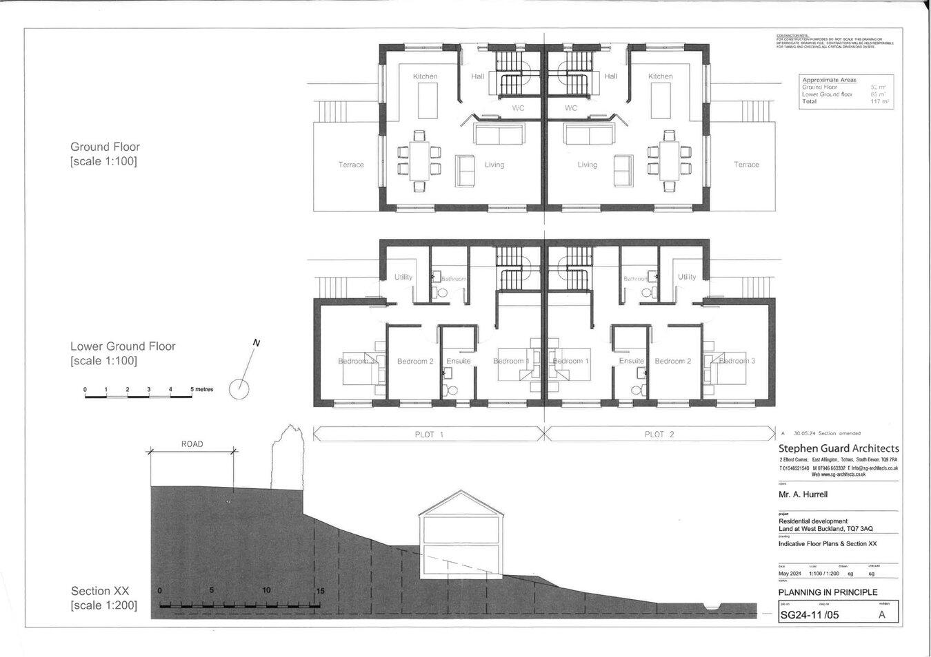
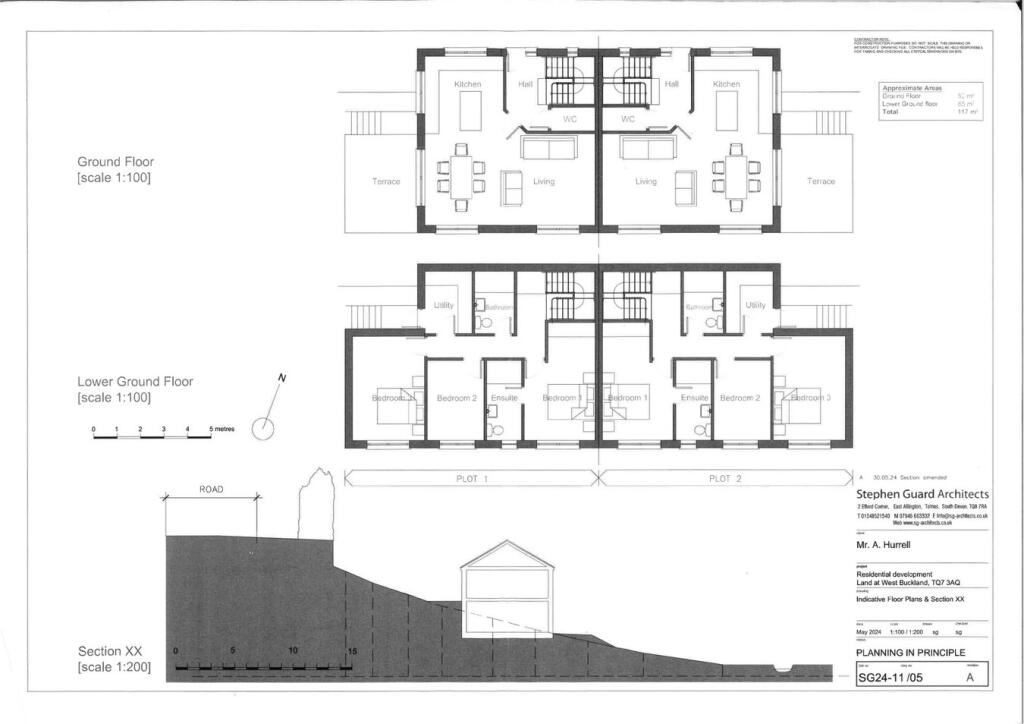
A rare opportunity near Bantham Beach—character cottage with land benefiting from planning in principle for two semi-detached houses, outbuilding with annex potential (STPP), garages.
Property Oracle says ..
Therefore, we give this property 7 / 10. *Disclaimer: This is our option and does constitute a recommendation or financial advice. Do your own research. *
- Price
- 7
- Condition
- 7
- Location
- 8
- Land
- 8
- Bedrooms
- 3
- Bathrooms
- 2
- Sqft (est)
- 1,732.93
- Lot (est)
- 1,799.40
The heatmap indicates the level of crime in the area. The color of the heatmap indicates the crime severity and recency.
Metrics Year-on-Year
- Average area value
- 504,375.00 £Decreased by 47.90 %
- Est sale value
- 949,645.64 £Decreased by 36.35 %
- Average area rental value
- 1,350.00 £/moDecreased by 5.40 %
- Est letting value
- 1,732.93 £/moUnchanged by 0.00 %
- Est rental Yield
- 3.21 %Increased by 81.36 %
- Crime Rate
- 0.00 %
from 968,017.00 £
from 1,492,052.73 £
from 1,427.00 £/mo
from 1,732.93 £/mo
from 1.77 %
from 0.00 %
Agent Activity
Charles Head created the listing.
Nearby Schools
| Name | Type | Ofsted | Distance |
|---|---|---|---|
| Thurlestone All Saints Church Of England Academy | Academy Converter | Good | 0.63 KM |
| Aveton Gifford Cofe Primary School | Academy Converter | Good | 4.51 KM |
| Malborough With South Huish Church Of England Primary School | Voluntary Controlled School | Good | 6.09 KM |
| West Alvington Church Of England Academy | Academy Converter | Good | 6.92 KM |
| Kingsbridge Academy | Academy Converter | 7.99 KM |
Images
Nearby Streets
| Name | Average Price | Average Sqft | Distance |
|---|---|---|---|
| Woodlands | £ 500,000 | 0 | 0.00 KM |
| Sea View Terrace | £ 0 | 0 | 0.00 KM |
| The Nook | £ 0 | 0 | 0.00 KM |
| Church Cottages | £ 0 | 0 | 0.00 KM |
| Parkfield Walk | £ 0 | 0 | 0.00 KM |
Nearby Listings
| Address | Price | Type | Score | Distance |
|---|---|---|---|---|
| West Buckland, Kingsbridge, TQ7 | £ 600,000 | BUY | 7 / 10 | 0.00 KM |
| West Buckland, Kingsbridge | £ 895,000 | BUY | 7 / 10 | 0.19 KM |
| Thurlestone, TQ7 | £ 645,000 | BUY | 7 / 10 | 0.55 KM |
| Court Park, Thurlestone | £ 695,000 | BUY | 7 / 10 | 0.58 KM |
| Bantham Vineyard, Bantham, Kingsbridge, Devon, TQ7 3AN | £ 650,000 | BUY | Unknown | 0.59 KM |
Nearby Properties
| Address | Price | Distance |
|---|---|---|
| 3 Valleyside | £ 300,000 | 0.42 KM |
| 14 Island View | £ 178,500 | 0.58 KM |
| 4 Island View | £ 89,500 | 0.58 KM |
| 6 Island View | £ 280,000 | 0.58 KM |
| 10 Island View | £ 200,000 | 0.58 KM |