Fountain Park Way, White City, W12
By Benham & Reeves
£ 750,000
Reviews
3 out of 5 stars
Benham & Reeves says ..
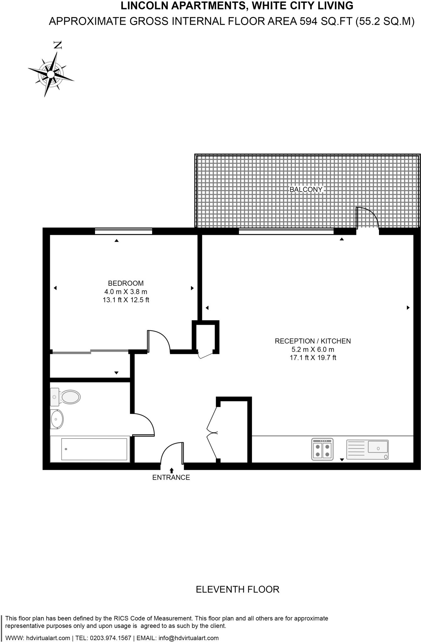
An immaculate one-bedroom apartment on the 11th floor at White City Living.
Property Oracle says ..
The property is a one-bedroom apartment located in White City, W12, with a list price of £750,000. The apartment is situated within the White City Living development, which offers amenities such as a communal garden, swimming pool, and cinema. The apartment itself appears modern and well-maintained, based on the provided images. It features an open-plan living area, a private balcony, and a modern bathroom and kitchen. The location benefits from proximity to Westfield Shopping Centre and White City/Wood Lane stations, providing good transport links. However, the property lacks a private garden. The average price for properties in the area is £864,631, with an average price per square foot of £1,005. This property is listed at a price per sqft below average, making it potentially good value for money. Nearby comparable properties range in price from £675,000 to £1,100,000, suggesting the list price is reasonable given its size and features.
Therefore, we give this property 6 / 10. *Disclaimer: This is our option and does constitute a recommendation or financial advice. Do your own research. *
- Price
- 8
- Condition
- 9
- Location
- 9
- Land
- 1
- Bedrooms
- 1
- Bathrooms
- 1
- Sqft (est)
- 594.00
The heatmap indicates the level of crime in the area. The color of the heatmap indicates the crime severity and recency.
Metrics Year-on-Year
- Average area value
- 541,667.00 £Decreased by 44.13 %
- Est sale value
- 550,638.00 £Decreased by 8.76 %
- Average area rental value
- 2,752.00 £/moIncreased by 10.17 %
- Est letting value
- 2,376.00 £/moIncreased by 100.00 %
- Est rental Yield
- 6.10 %Increased by 97.41 %
- Crime Rate
- 4.00 %Unchanged by 0.00 %
Agent Activity
Benham & Reeves created the listing.
Nearby Schools
| Name | Type | Ofsted | Distance |
|---|---|---|---|
| Catch22 Pupil Parent Partnership | Other Independent Special School | Good | 0.31 KM |
| Ormiston Latimer Academy | Academy Alternative Provision Converter | Good | 0.35 KM |
| Saint Francis Of Assisi Catholic Primary School | Voluntary Aided School | Good | 0.61 KM |
| Oxford Gardens Primary School | Community School | Good | 0.67 KM |
| Shepherds Bush Families Project And Children'S Centre | Children's Centre Linked Site | 0.68 KM |
Images
Nearby Streets
| Name | Average Price | Average Sqft | Distance |
|---|---|---|---|
| Silver Road | £ 0 | 0 | 0.00 KM |
| Fountain Park Way | £ 0 | 0 | 0.00 KM |
| Macfarlane Place | £ 0 | 0 | 0.00 KM |
| Lower Road | £ 0 | 0 | 0.00 KM |
| Ansleigh Place | £ 0 | 0 | 0.00 KM |
Nearby Transport
| Name | NLC | TLC | Distance |
|---|---|---|---|
| Shepherd'S Bush | 9587 | SPB | 0.92 KM |
| Kensington (Olympia) | 3092 | KPA | 2.06 KM |
| Kensal Green | 1447 | KNL | 2.09 KM |
| Kensal Rise | 1448 | KNR | 2.53 KM |
| Queens Park (London) | 1419 | QPW | 3.12 KM |
Nearby Listings
| Address | Price | Type | Score | Distance |
|---|---|---|---|---|
| Belvedere Row Apartments, Fountain Park Way, London, W12 | £ 1,075,000 | BUY | 5 / 10 | 0.00 KM |
| Fountain Park Way, White City, W12 | £ 750,000 | BUY | 6 / 10 | 0.00 KM |
| Fountain Park Way, White City, W12 | £ 1,075,000 | BUY | Unknown | 0.00 KM |
| Fountain Park Way, White City, W12 | £ 1,150,000 | BUY | 7 / 10 | 0.00 KM |
| Fountain Park Way, White City, W12 | £ 1,050,000 | BUY | 6 / 10 | 0.00 KM |
Nearby Properties
| Address | Price | Distance |
|---|---|---|
| 127 Wood Lane | £ 320,000 | 0.33 KM |
| 111 Wood Lane | £ 190,000 | 0.33 KM |
| 129 Wood Lane | £ 250,000 | 0.33 KM |
| 147 Wood Lane | £ 238,000 | 0.33 KM |
| 143 Wood Lane | £ 340,000 | 0.33 KM |