Rushmeadow Road, Scarning, Dereham, Norfolk, NR19
WI

Rushmeadow Road, Scarning, Dereham, Norfolk, NR19

By Winkworth

£ 600,000

Reviews

3 out of 5 stars

Winkworth says ..

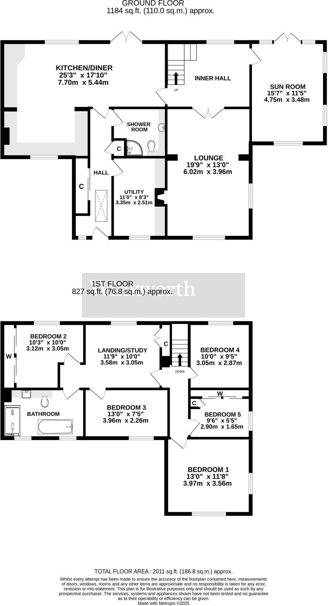
Located in the sought-after village of Scarning on a picturesque tree lined road close to the bustling market town of Dereham is this exceptional five-bedroom semi-detached cottage. Dating back to 1800’s, the property was once a pair of workers cottages and has since been extended and trans...

Property Oracle says ..

Therefore, we give this property 7 / 10. *Disclaimer: This is our option and does constitute a recommendation or financial advice. Do your own research. *

Price
6
Condition
8
Location
7
Land
9
Bedrooms
5
Bathrooms
2
Sqft (est)
1,594.00

The heatmap indicates the level of crime in the area. The color of the heatmap indicates the crime severity and recency.

Metrics Year-on-Year

Average area value
491,667.00 £
Increased by 65.67 %
from 296,780.00 £
Est sale value
906,986.00 £
Increased by 109.19 %
from 433,568.00 £
Average area rental value
1,015.00 £/mo
Increased by 2.94 %
from 986.00 £/mo
Est letting value
1,594.00 £/mo
from 0.00 £/mo
Est rental Yield
2.48 %
Decreased by 37.84 %
from 3.99 %
Crime Rate
0.00 %
from 0.00 %

Agent Activity

  • Winkworth created the listing.

Nearby Schools

NameTypeOfstedDistance
Scarning Voluntary Controlled Primary SchoolVoluntary Controlled SchoolGood0.80 KM
Dereham Church Of England Infant & Nursery SchoolVoluntary Aided SchoolGood1.59 KM
Dereham Church Of England Junior AcademyAcademy Sponsor LedGood1.67 KM
Grove House Infant And Nursery SchoolAcademy ConverterGood1.86 KM
Dereham South Children'S CentreChildren's Centre2.08 KM

Images

Front Kitchen/Diner Lounge Rear Garden Entrance Hall Kitchen/Diner Kitchen/Diner Kitchen/Diner Kitchen/Diner Kitchen/Diner Inner Hall Lounge Lounge Sunroom Garden Room Utility Room Shower Room Landing/Study Area Landing/Study Area Bedroom 1 Bedroom 1 Bedroom 2 Bedroom 3 Bedroom 4 Bedroom 5 Family Bathroom Family Bathroom Entrance To Drive Drive & Front Garden Front Garden Front Garden Patio Area Rear Garden Rear Garden Rear Garden Rear Garden Field Views Front Garden Field Views Field Views

Nearby Streets

NameAverage PriceAverage SqftDistance
Willow Road £ 190,00000.00 KM
Saint Hilda Road £ 130,00000.00 KM
Saint Hilda Close £ 250,00000.00 KM
Swaffham Road £ 000.00 KM
Ted Ellis Walk £ 450,00000.00 KM

Nearby Listings

AddressPriceTypeScoreDistance
Rushmeadow Road, Scarning, Dereham, Norfolk, NR19 £ 600,000BUY7 / 100.00 KM
Rushmeadow Road, Scarning £ 750,000BUYUnknown0.28 KM
Scarning £ 575,000BUY7 / 100.30 KM
Rushmeadow Road, Scarning, Dereham £ 500,000BUY6 / 100.37 KM
Mitchell Close,Dereham,NR19 2XP £ 300,000BUY7 / 100.41 KM

Nearby Properties

AddressPriceDistance
Portswood £ 295,0000.37 KM
Chestnut Farm £ 390,0000.39 KM
11 Mitchell Close £ 240,0000.40 KM
14 Mitchell Close £ 248,0000.40 KM
3 Mitchell Close £ 110,9950.40 KM