Hunters says ..
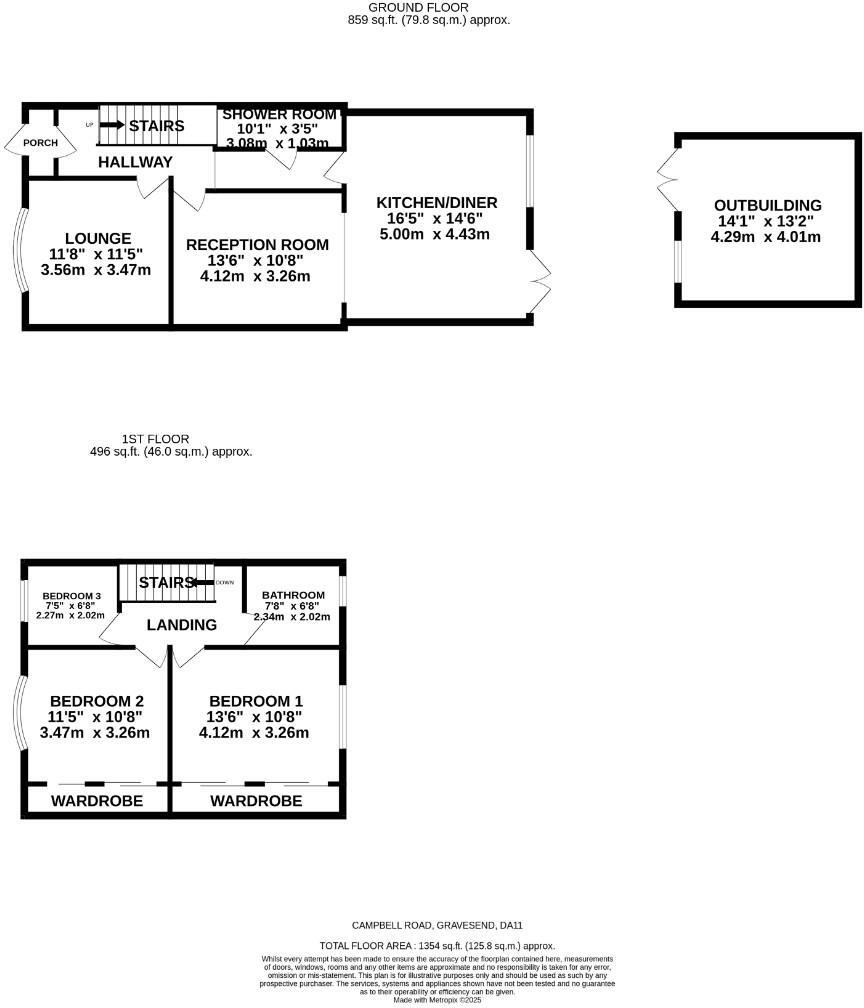
We are delighted to bring to market this extended three bedroom property located on Campbell Road. The ground floor accommodation comprises of porch, two reception rooms, a beautifully appointed open plan kitchen/diner and shower room. To first floor there are two double bedroo...
Property Oracle says ..
This is a 3-bedroom terraced house on Campbell Road, Gravesend. The property benefits from a modern kitchen, two bathrooms, and a good-sized garden with a shed. The property is located within close proximity to local schools and transportation links. The bathrooms could benefit from modernisation. Overall, this property presents a good opportunity for families looking for a well-maintained home in a convenient location.
Therefore, we give this property 7 / 10. *Disclaimer: This is our option and does constitute a recommendation or financial advice. Do your own research. *
- Price
- 7
- Condition
- 8
- Location
- 7
- Land
- 7
- Bedrooms
- 3
- Bathrooms
- 2
- Sqft (est)
- 1,354.10
The heatmap indicates the level of crime in the area. The color of the heatmap indicates the crime severity and recency.
Metrics Year-on-Year
- Average area value
- 302,655.00 £Increased by 6.63 %
- Est sale value
- 477,997.30 £Increased by 4.75 %
- Average area rental value
- 1,528.00 £/moIncreased by 7.53 %
- Est letting value
- 1,354.10 £/moUnchanged by 0.00 %
- Est rental Yield
- 6.06 %Increased by 0.83 %
- Crime Rate
- 6.00 %Unchanged by 0.00 %
Agent Activity
Hunters created the listing.
Nearby Schools
| Name | Type | Ofsted | Distance |
|---|---|---|---|
| Mayfield Grammar School, Gravesend | Academy Converter | Outstanding | 0.31 KM |
| Cecil Road Primary And Nursery School | Foundation School | Good | 0.48 KM |
| Copperfield Academy | Academy Sponsor Led | Good | 0.69 KM |
| Bronte School | Other Independent School | 0.76 KM | |
| Northfleet Nursery School | Local Authority Nursery School | Outstanding | 1.00 KM |
Images
Nearby Streets
| Name | Average Price | Average Sqft | Distance |
|---|---|---|---|
| Lennox Road | £ 0 | 0 | 0.00 KM |
| Victoria Road | £ 0 | 0 | 0.00 KM |
| May Avenue | £ 185,000 | 0 | 0.00 KM |
| Wycliffe Row | £ 0 | 0 | 0.00 KM |
| Bedford Road | £ 0 | 0 | 0.00 KM |
Nearby Transport
| Name | NLC | TLC | Distance |
|---|---|---|---|
| Gravesend | 5172 | GRV | 1.16 KM |
| Tilbury Town | 7462 | TIL | 2.76 KM |
| Northfleet | 5120 | NFL | 3.71 KM |
| Ebbsfleet International | 5566 | EBD | 4.01 KM |
| Swanscombe | 5156 | SWM | 5.38 KM |
Nearby Listings
| Address | Price | Type | Score | Distance |
|---|---|---|---|---|
| Campbell Road, Gravesend, DA11 | £ 425,000 | BUY | 7 / 10 | 0.00 KM |
| Campbell Road, Gravesend, Kent | £ 500,000 | BUY | 7 / 10 | 0.02 KM |
| Pelham Road, Gravesend, Kent | £ 375,000 | BUY | Unknown | 0.08 KM |
| Pelham Road, Gravesend, Kent | £ 248,000 | BUY | Unknown | 0.08 KM |
| Quarry Close, Gravesend, Kent, DA11 | £ 425,000 | BUY | 7 / 10 | 0.10 KM |
Nearby Properties
| Address | Price | Distance |
|---|---|---|
| 46 Campbell Road | £ 249,950 | 0.03 KM |
| 74 Campbell Road | £ 375,000 | 0.03 KM |
| 76 Campbell Road | £ 118,000 | 0.03 KM |
| 18 Campbell Road | £ 280,000 | 0.03 KM |
| 68 Campbell Road | £ 305,000 | 0.03 KM |