Blaenffos, Pembrokeshire
WE

Blaenffos, Pembrokeshire

By West Wales Properties

£ 350,000

Reviews

3 out of 5 stars

West Wales Properties says ..

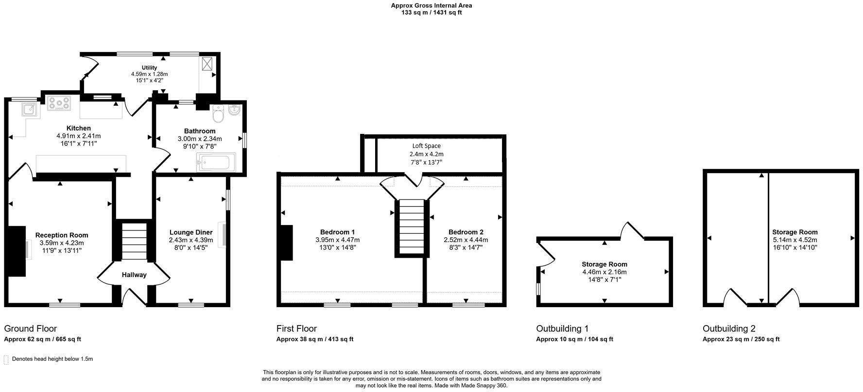
A characterful semi-detached smallholding with approximately 3.5 acres of excellent grazing land arranged as three connecting fields perfect for equestrian pursuits, hobby farming, or small-scale agriculture. Benefiting from a range of useful outbuildings and a well-stocked fishing pond this prop...

Property Oracle says ..

Therefore, we give this property 7 / 10. *Disclaimer: This is our option and does constitute a recommendation or financial advice. Do your own research. *

Price
6
Condition
7
Location
7
Land
9
Bedrooms
2
Bathrooms
1

The heatmap indicates the level of crime in the area. The color of the heatmap indicates the crime severity and recency.

Metrics Year-on-Year

Average area value
278,905.00 £
Increased by 2.67 %
from 271,663.00 £
Average area rental value
800.00 £/mo
Decreased by 34.53 %
from 1,222.00 £/mo
Est rental Yield
3.44 %
Decreased by 36.30 %
from 5.40 %
Crime Rate
113.00 %
Unchanged by 0.00 %
from 113.00 %

Agent Activity

  • West Wales Properties created the listing.

Nearby Schools

NameTypeOfstedDistance
Ysgol Gyfun Ddwyieithog Y PreseliWelsh Establishment3.56 KM
Ysgol Y FrenniWelsh Establishment3.56 KM
Cilgerran V.C.P. SchoolWelsh Establishment6.03 KM
Ysgol Gynradd EglwyswrwWelsh Establishment7.80 KM
Ysgol LlechrydWelsh Establishment8.10 KM

Images

DSC_0028.jpg DSC_0040.jpg DSC_0051.jpg DSC_0906.jpg DSC_0043.jpg DSC_0075.jpg DSC_0055.jpg DSC_0060.jpg DSC_0062.jpg DSC_0085.jpg DSC_0098.jpg DSC_0977.jpg DSC_0915.jpg DSC_0953.jpg DSC_0088.jpg DSC_0071.jpg DSC_0023.jpg DSC_0036.jpg DSC_0113.jpg DSC_0903.jpg DSC_0909.jpg DSC_0924.jpg DSC_0936.jpg DSC_0963.jpg DSC_0969.jpg

Nearby Streets

NameAverage PriceAverage SqftDistance
Llysonnen £ 275,00000.00 KM
Clos-Y-Gerddi £ 312,47500.00 KM

Nearby Listings

AddressPriceTypeScoreDistance
Blaenffos, Pembrokeshire £ 350,000BUY7 / 100.00 KM
Llysonen, Blaenffos, Boncath £ 275,000BUY7 / 100.11 KM
Erw Wen, Boncath, SA37 £ 320,000BUY6 / 100.14 KM
Erw Wen, Blaenffos, Boncath, Pembrokeshire, SA37 £ 340,000BUY7 / 100.14 KM
Blaenffos, Boncath, Pembrokeshire, SA37 £ 220,000BUY5 / 100.19 KM

Nearby Properties

AddressPriceDistance
6 Blaen Treweryll £ 195,0000.46 KM
16 Blaen Treweryll £ 290,0000.46 KM
8 Blaen Treweryll £ 128,5000.46 KM