3 Springfield Crescent, Carluke, ML8
PA

3 Springfield Crescent, Carluke, ML8

By Pacitti Jones

£ 185,000

Reviews

3 out of 5 stars

Pacitti Jones says ..

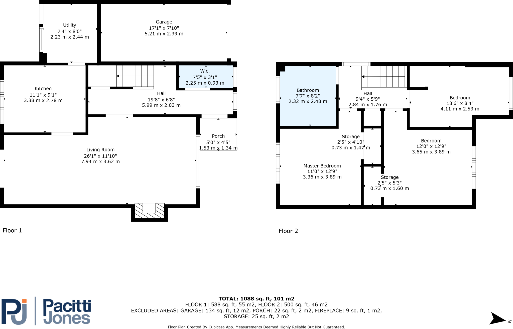
This stunning linked detached villa is situated within an attractive and quiet residential development and is presented in walk-in condition. This lovely family home has fresh décor, modern specifications and will surely be popular. The well laid out accommodation is bright and spacious an...

Property Oracle says ..

This property is a 3-bedroom detached house located in Springfield Crescent, Carluke, South Lanarkshire. The property is in good condition and has been recently modernised, as shown in the photos. It benefits from a rear garden. The asking price of £185,000 is slightly above the average price for Springfield Crescent but is in line with other similar properties in the area. The location is convenient with nearby rail links to Carluke, Hartwood and Lanark.

Therefore, we give this property 7 / 10. *Disclaimer: This is our option and does constitute a recommendation or financial advice. Do your own research. *

Price
7
Condition
9
Location
7
Land
7
Bedrooms
3
Bathrooms
1
Sqft (est)
1,207.37

The heatmap indicates the level of crime in the area. The color of the heatmap indicates the crime severity and recency.

Metrics Year-on-Year

Average area value
300,000.00 £
Decreased by 54.85 %
from 664,444.00 £
Est sale value
614,551.33 £
Increased by 92.08 %
from 319,953.05 £
Average area rental value
1,007.00 £/mo
Decreased by 25.41 %
from 1,350.00 £/mo
Est letting value
1,207.37 £/mo
from 0.00 £/mo
Est rental Yield
4.03 %
Increased by 65.16 %
from 2.44 %
Crime Rate
0.00 %
from 0.00 %

Agent Activity

  • Pacitti Jones created the listing.

Images

202505021425230.jpg 2025050214252329.jpg 2025050214252328.jpg 2025050214252326.jpg 2025050214252332.jpg 2025050214252331.jpg 2025050214252334.jpg 202505021425232.jpg 2025050214252335.jpg 2025050214252337.jpg 2025050214252310.jpg 2025050214252316.jpg 2025050214252317.jpg 2025050214252319.jpg 2025050214252336.jpg 2025050214252312.jpg 2025050214252324.jpg 2025050214252325.jpg 2025050214252318.jpg 2025050214252320.jpg 2025050214252321.jpg 202505021425236.jpg 2025050214252322.jpg 2025050214252314.jpg 2025050214252315.jpg 202505021425238.jpg 202505021425234.jpg

Nearby Streets

NameAverage PriceAverage SqftDistance
Springfield Crescent £ 197,00000.00 KM
Arnum Place £ 124,99500.00 KM
Arnum Gardens £ 139,00000.00 KM
Benty's Lane £ 263,33300.00 KM
Arran Gardens £ 160,00000.00 KM

Nearby Transport

NameNLCTLCDistance
Carluke9702CLU1.65 KM
Hartwood9246HTW9.14 KM
Lanark9710LNK9.15 KM

Nearby Listings

AddressPriceTypeScoreDistance
3 Springfield Crescent, Carluke, ML8 £ 185,000BUY7 / 100.00 KM
Lanark Road, Carluke £ 60,000BUY6 / 100.14 KM
23 Lanark Road Carluke ML8 4HE £ 525,000BUYUnknown0.14 KM
The Orchard, Lanark Road, Carluke, ML8 £ 525,000BUY6 / 100.18 KM
Lanark Road, Braidwood, Carluke £ 371,995BUY6 / 100.19 KM