Cheviot Close, South Sutton
By Watson Homes
£ 1,250,000
Reviews
3 out of 5 stars
Watson Homes says ..
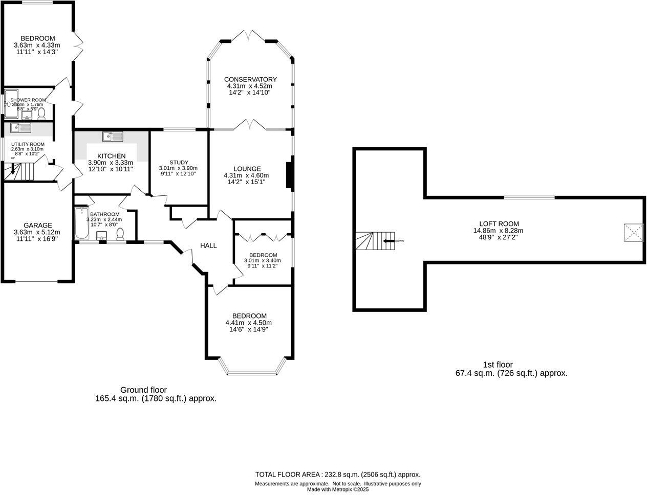
Watson Homes are delighted to present this deceptively spacious four double bedroom detached bungalow occupying a bold corner plot. The property offers a wealth of accommodation spanning over 2500 square feet. The property has fantastic scope to extend s.t.p.p, a large rear garden, a garage and o...
Property Oracle says ..
This property is a detached bungalow located in Cheviot Close, South Sutton, a suburb of Sutton in Greater London. The property benefits from a large plot size of 2,505.84 sqft and a generous internal area of 2,865.46 sqft. It features four bedrooms and two bathrooms. The images show the property to be in good condition with a well-maintained garden and a modern kitchen. The property is conveniently located near several schools, including Devonshire Primary School (rated Good by Ofsted) and is within approximately 1.5-2km of several train stations providing links into London. The list price is £1,250,000. While this is significantly higher than the average house price in the area (£442,613), the size and features of this property, along with its location, could justify this price. More information on comparable properties in the immediate vicinity would be needed for a more definitive price assessment.
Therefore, we give this property 7 / 10. *Disclaimer: This is our option and does constitute a recommendation or financial advice. Do your own research. *
- Price
- 6
- Condition
- 8
- Location
- 7
- Land
- 8
- Bedrooms
- 4
- Bathrooms
- 2
- Sqft (est)
- 2,865.46
- Lot (est)
- 2,505.84
The heatmap indicates the level of crime in the area. The color of the heatmap indicates the crime severity and recency.
Metrics Year-on-Year
- Average area value
- 426,436.00 £Decreased by 1.59 %
- Est sale value
- 1,378,286.26 £Increased by 21.77 %
- Average area rental value
- 1,587.00 £/moDecreased by 7.46 %
- Est letting value
- 2,865.46 £/moUnchanged by 0.00 %
- Est rental Yield
- 4.47 %Decreased by 5.89 %
- Crime Rate
- 1.00 %Unchanged by 0.00 %
Agent Activity
Watson Homes created the listing.
Nearby Schools
| Name | Type | Ofsted | Distance |
|---|---|---|---|
| Seaton House School | Other Independent School | 0.33 KM | |
| Barrow Hedges Primary School | Academy Converter | 0.78 KM | |
| Devonshire Primary School | Community School | Good | 1.03 KM |
| Eagle House School Sutton | Other Independent Special School | Good | 1.17 KM |
| Harris Academy Sutton | Free Schools | 1.33 KM |
Images
Nearby Streets
| Name | Average Price | Average Sqft | Distance |
|---|---|---|---|
| Chalgrove Road | £ 850,000 | 0 | 0.00 KM |
| Mitre Close | £ 0 | 0 | 0.00 KM |
| West Way | £ 1,250,000 | 0 | 0.00 KM |
| The Causeway | £ 0 | 0 | 0.00 KM |
| Upland Road | £ 0 | 0 | 0.00 KM |
Nearby Transport
| Name | NLC | TLC | Distance |
|---|---|---|---|
| Sutton | 5385 | SUO | 1.54 KM |
| Carshalton Beeches | 5406 | CSB | 1.57 KM |
| Belmont | 5350 | BLM | 2.02 KM |
| Carshalton | 5405 | CSH | 2.69 KM |
| West Sutton | 5293 | WSU | 3.18 KM |
Nearby Listings
| Address | Price | Type | Score | Distance |
|---|---|---|---|---|
| Cheviot Close, South Sutton | £ 1,250,000 | BUY | 7 / 10 | 0.00 KM |
| Cheviot Close, South Sutton | £ 1,200,000 | BUY | 7 / 10 | 0.06 KM |
| Banstead Road South, Sutton | £ 1,250,000 | BUY | 7 / 10 | 0.19 KM |
| The Gallop, Sutton, SM2 | £ 1,500,000 | BUY | Unknown | 0.21 KM |
| The Gallop, Sutton | £ 1,500,000 | BUY | 7 / 10 | 0.22 KM |
Nearby Properties
| Address | Price | Distance |
|---|---|---|
| 10 The Byway | £ 405,000 | 0.10 KM |
| 11 The Byway | £ 678,000 | 0.10 KM |
| 16 The Byway | £ 609,950 | 0.10 KM |
| 21 The Byway | £ 580,000 | 0.10 KM |
| 15 The Byway | £ 630,000 | 0.10 KM |