Grammar School Court, Ormskirk, L39
By Arnold & Phillips
£ 230,000
Reviews
3 out of 5 stars
Arnold & Phillips says ..
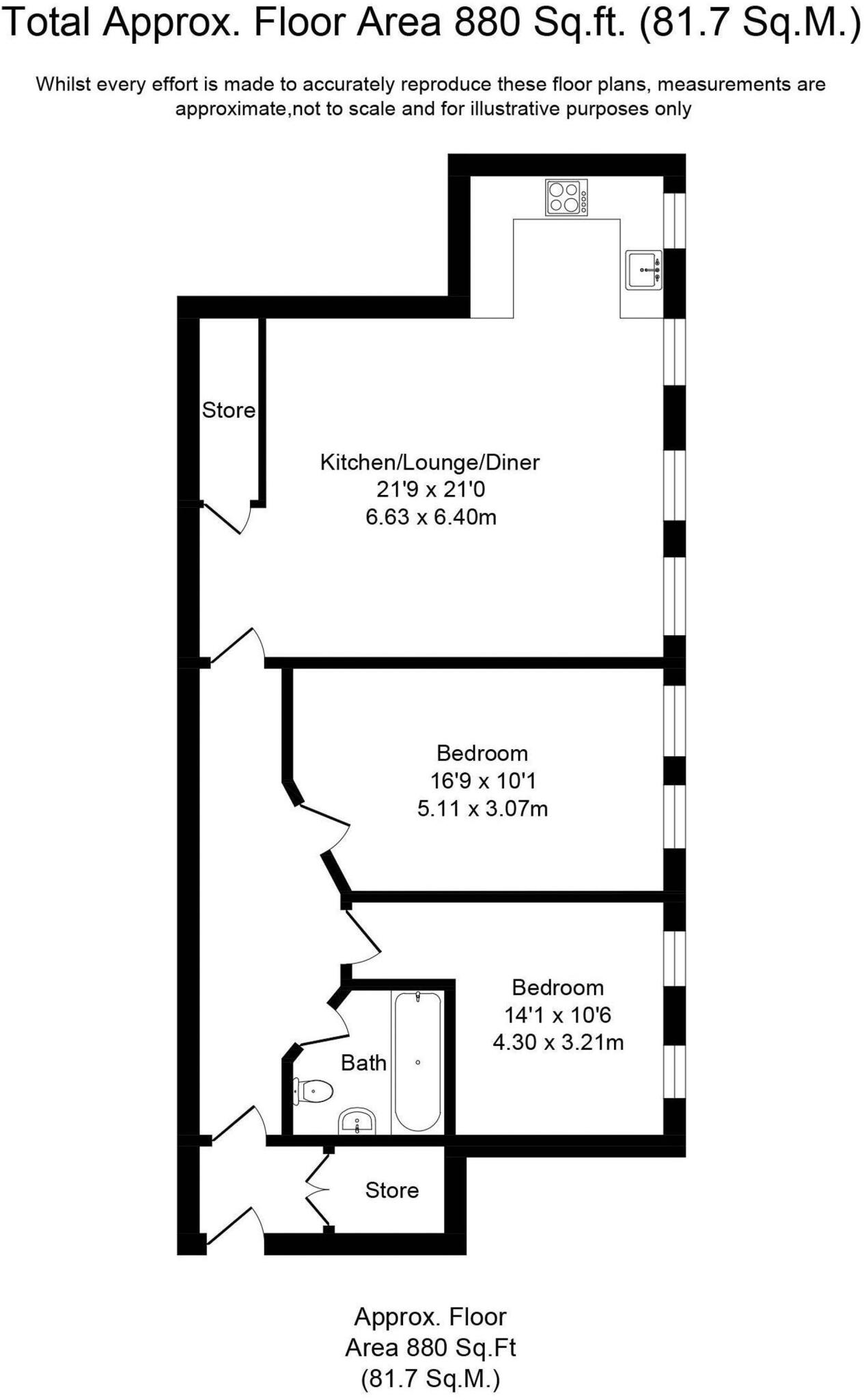
Arnold and Phillips are delighted to present this stylish two-bedroom ground-floor apartment located in the sought-after apartment complex, Grammar School Court.
Property Oracle says ..
This property is a 2-bedroom, 1-bathroom apartment located in Ormskirk, Lancashire. The apartment is situated in Grammar School Court, a development that appears to be in a well-maintained complex with attractive landscaping. The interior is modern and well-presented, suggesting that it is in good condition. The property benefits from a good-sized plot of land, providing outdoor space. Ormskirk offers convenient access to local amenities, schools, and transportation links, enhancing the property’s desirability. The list price of £230,000 is slightly above the average price for the area (£219,135), but considering the property’s modern condition, desirable location, and outdoor space, it could be considered reasonable, especially when compared to similar properties in the same development.
Therefore, we give this property 7 / 10. *Disclaimer: This is our option and does constitute a recommendation or financial advice. Do your own research. *
- Price
- 7
- Condition
- 9
- Location
- 8
- Land
- 7
- Bedrooms
- 2
- Bathrooms
- 1
- Sqft (est)
- 910.00
- Lot (est)
- 880.00
The heatmap indicates the level of crime in the area. The color of the heatmap indicates the crime severity and recency.
Metrics Year-on-Year
- Average area value
- 172,617.00 £Decreased by 13.74 %
- Est sale value
- 135,590.00 £Decreased by 18.58 %
- Average area rental value
- 835.00 £/moIncreased by 18.61 %
- Est letting value
- 0.00 £/mo
- Est rental Yield
- 5.80 %Increased by 37.44 %
- Crime Rate
- 6.00 %Unchanged by 0.00 %
Agent Activity
Arnold & Phillips created the listing.
Nearby Schools
| Name | Type | Ofsted | Distance |
|---|---|---|---|
| The Acorns School | Pupil Referral Unit | Good | 0.48 KM |
| Ormskirk Church Of England Primary School | Voluntary Controlled School | Good | 0.78 KM |
| Turning Point Academy | Other Independent School | Good | 0.78 KM |
| Moorgate Nursery School & Children'S Centre | Children's Centre | 0.78 KM | |
| Moorgate Nursery School | Local Authority Nursery School | Outstanding | 0.78 KM |
Images
Nearby Streets
| Name | Average Price | Average Sqft | Distance |
|---|---|---|---|
| Abbotsford | £ 125,000 | 0 | 0.00 KM |
| Oak Green | £ 0 | 0 | 0.00 KM |
| Chapel Mews | £ 66,500 | 0 | 0.00 KM |
| Leyland Way | £ 0 | 0 | 0.00 KM |
| Market Cross | £ 0 | 0 | 0.00 KM |
Nearby Transport
| Name | NLC | TLC | Distance |
|---|---|---|---|
| Ormskirk | 2281 | OMS | 0.49 KM |
| Aughton Park | 2215 | AUG | 2.05 KM |
| Town Green | 2283 | TWN | 3.65 KM |
| New Lane | 2358 | NLN | 5.37 KM |
| Burscough Junction | 2280 | BCJ | 5.67 KM |
Nearby Listings
| Address | Price | Type | Score | Distance |
|---|---|---|---|---|
| Grammar School Court, Ormskirk, L39 | £ 280,000 | BUY | 6 / 10 | 0.00 KM |
| Grammar School Court, Ormskirk, L39 | £ 235,000 | BUY | 7 / 10 | 0.00 KM |
| Grammar School Court, Ormskirk, L39 | £ 230,000 | BUY | 7 / 10 | 0.00 KM |
| Grammar School Court, Ormskirk | £ 360,000 | BUY | 6 / 10 | 0.01 KM |
| Grammar School Court, Ormskirk, Lancashire, L39 | £ 225,000 | BUY | 7 / 10 | 0.06 KM |
Nearby Properties
| Address | Price | Distance |
|---|---|---|
| 32 Grammar School Court | £ 159,950 | 0.06 KM |
| 31 Grammar School Court | £ 188,950 | 0.06 KM |
| 27 Grammar School Court | £ 189,950 | 0.06 KM |
| 10 Grammar School Court | £ 228,000 | 0.06 KM |
| 26 Grammar School Court | £ 172,000 | 0.06 KM |