Howards says ..
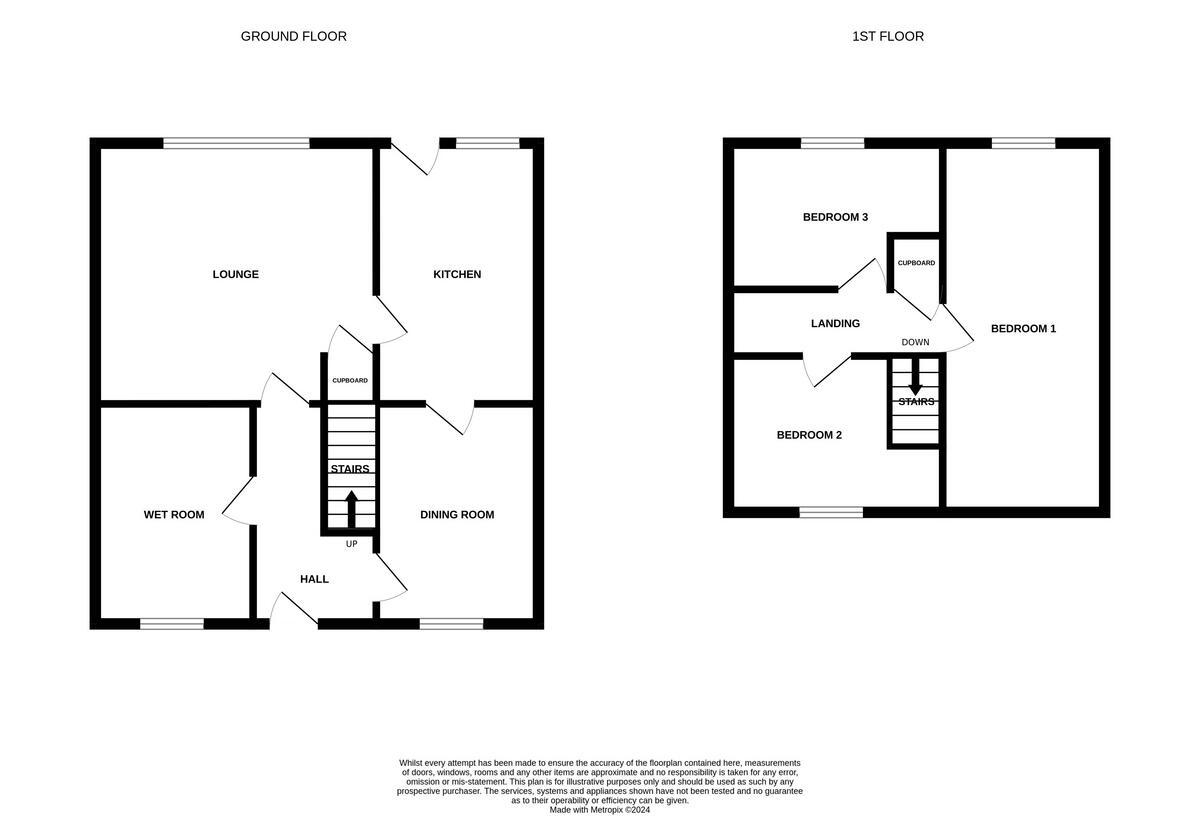
Chain free - 3 bed Semi Detached ‘Chalet style’ House with garage and driveway, rear garden, 3 bedrooms all off landing, spacious lounge, kitchen and dining room, wet room. PVCu double glazing, gas central heating
Property Oracle says ..
This 3-bedroom semi-detached house in Gorleston, Great Yarmouth, is listed at £200,000. The property features a garage and driveway, providing off-street parking, which is a desirable feature. The photos suggest a manageable garden and the interior layout is typical of similar properties in the area. However, the interior is dated and could benefit from significant modernisation. The kitchen and bathroom are particularly in need of updating. The property’s location in Gorleston offers proximity to local amenities, schools (including several ‘Good’ and ‘Requires Improvement’ rated schools in close proximity), and Great Yarmouth town centre. Public transport connections to Great Yarmouth are relatively easy. Comparable properties in the area, while exhibiting variations in condition, price, and size, generally fall within a similar price bracket, suggesting that £200,000 is a competitive price for this property within the current market conditions, provided buyers acknowledge the required renovations. Whilst a garden is presented, precise dimensions are unavailable influencing the land value. The lack of precise property square footage and plot size data prevents a definitive assessment of value per square foot.
Therefore, we give this property 6 / 10. *Disclaimer: This is our option and does constitute a recommendation or financial advice. Do your own research. *
- Price
- 7
- Condition
- 5
- Location
- 7
- Land
- 6
- Bedrooms
- 3
- Bathrooms
- 1
- Sqft (est)
- 1,000.00
The heatmap indicates the level of crime in the area. The color of the heatmap indicates the crime severity and recency.
Metrics Year-on-Year
- Average area value
- 202,500.00 £Decreased by 14.10 %
- Est sale value
- 188,000.00 £Decreased by 20.00 %
- Average area rental value
- 675.00 £/moDecreased by 26.63 %
- Est letting value
- 0.00 £/mo
- Est rental Yield
- 4.00 %Decreased by 14.53 %
- Crime Rate
- 18.00 %Unchanged by 0.00 %
Agent Activity
Howards created the listing.
Nearby Schools
| Name | Type | Ofsted | Distance |
|---|---|---|---|
| Seagulls Children'S Centre | Children's Centre | 0.46 KM | |
| Wroughton Infant Academy | Academy Converter | Good | 0.48 KM |
| Wroughton Junior Academy | Academy Sponsor Led | Requires improvement | 0.48 KM |
| East Norfolk Sixth Form College | Academy 16-19 Converter | Good | 0.56 KM |
| Lynn Grove Academy | Academy Converter | Good | 0.78 KM |
Images
Nearby Streets
| Name | Average Price | Average Sqft | Distance |
|---|---|---|---|
| Lime Way | £ 0 | 0 | 0.00 KM |
| Lavender Gardens | £ 0 | 0 | 0.00 KM |
| Mayflower Way | £ 315,000 | 0 | 0.00 KM |
| Sunflower Close | £ 0 | 0 | 0.00 KM |
| Carnation Way | £ 330,000 | 0 | 0.00 KM |
Nearby Transport
| Name | NLC | TLC | Distance |
|---|---|---|---|
| Great Yarmouth | 7328 | GYM | 3.54 KM |
| Berney Arms | 7330 | BYA | 9.46 KM |
Nearby Listings
| Address | Price | Type | Score | Distance |
|---|---|---|---|---|
| Erica Way, Gorleston | £ 200,000 | BUY | 6 / 10 | 0.00 KM |
| Erica Way, Gorleston | £ 220,000 | BUY | 6 / 10 | 0.01 KM |
| Veronica Green, Gorleston | £ 175,000 | BUY | 6 / 10 | 0.05 KM |
| Veronica Green, Gorleston, Great Yarmouth | £ 190,000 | BUY | 4 / 10 | 0.05 KM |
| Hazel Way, Gorleston | £ 210,000 | BUY | 7 / 10 | 0.09 KM |
Nearby Properties
| Address | Price | Distance |
|---|---|---|
| 4 Erica Way | £ 120,000 | 0.02 KM |
| 3 Erica Way | £ 139,500 | 0.02 KM |
| 2 Erica Way | £ 137,000 | 0.02 KM |
| 11 Veronica Green | £ 142,500 | 0.03 KM |
| 14 Veronica Green | £ 127,000 | 0.03 KM |