Crighton, Washington, Tyne and Wear, NE38
By YOUR MOVE Chris Stonock
£ 120,000
Reviews
3 out of 5 stars
YOUR MOVE Chris Stonock says ..
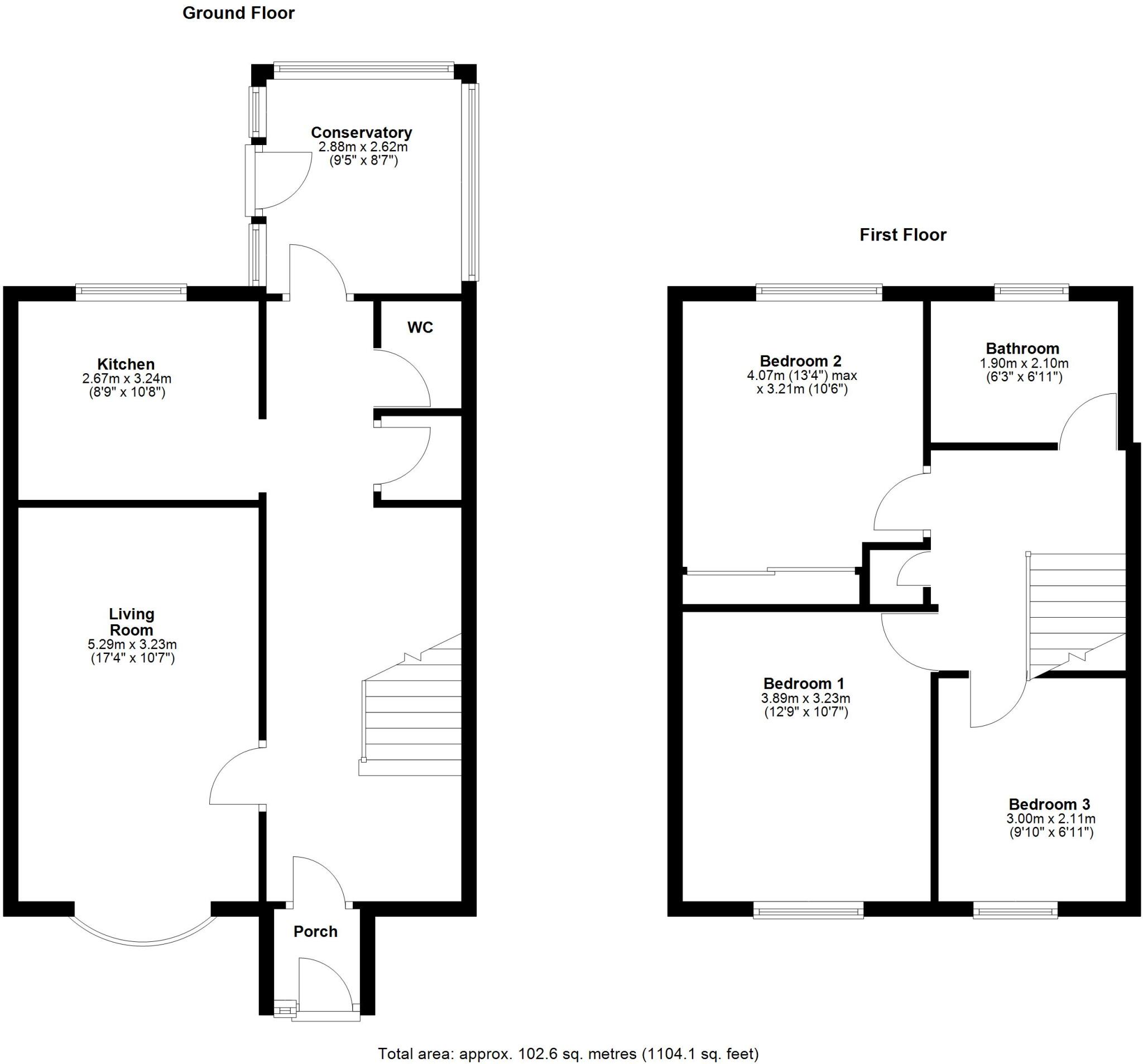
We are delighted to present this well-maintained three-bedroom mid-terraced property, offered to the market with no onward chain. Ideal for first-time buyers, this home is situated in a quiet cul-de-sac, enjoying a pleasant outlook over a green space and conveniently located close to local amenit...
Property Oracle says ..
Therefore, we give this property 6 / 10. *Disclaimer: This is our option and does constitute a recommendation or financial advice. Do your own research. *
- Price
- 8
- Condition
- 5
- Location
- 7
- Land
- 7
- Bedrooms
- 3
- Bathrooms
- 0
- Sqft (est)
- 745.11
The heatmap indicates the level of crime in the area. The color of the heatmap indicates the crime severity and recency.
Metrics Year-on-Year
- Average area value
- 197,600.00 £Increased by 0.12 %
- Est sale value
- 187,022.61 £Increased by 18.40 %
- Average area rental value
- 1,200.00 £/moIncreased by 42.69 %
- Est letting value
- 745.11 £/mo
- Est rental Yield
- 7.29 %Increased by 42.66 %
- Crime Rate
- 2.00 %Unchanged by 0.00 %
from 197,369.00 £
from 157,963.32 £
from 841.00 £/mo
from 0.00 £/mo
from 5.11 %
from 2.00 %
Agent Activity
YOUR MOVE Chris Stonock created the listing.
Nearby Schools
| Name | Type | Ofsted | Distance |
|---|---|---|---|
| St John Boste Catholic Primary School | Academy Converter | 0.12 KM | |
| Sunderland Children'S Centre Washington (Oxclose) | Children's Centre Linked Site | 0.14 KM | |
| Oxclose Primary Academy | Academy Sponsor Led | Good | 0.16 KM |
| Oxclose Nursery School | Local Authority Nursery School | Outstanding | 0.17 KM |
| Oxclose Community Academy | Academy Converter | Good | 0.35 KM |
Images
Nearby Streets
| Name | Average Price | Average Sqft | Distance |
|---|---|---|---|
| Sunderland Highway | £ 77,500 | 0 | 0.00 KM |
| Tor Mere Close | £ 0 | 0 | 0.00 KM |
| Washington Highway | £ 0 | 0 | 0.00 KM |
| Chiltern Close | £ 0 | 0 | 0.00 KM |
| Parsons Interchange | £ 0 | 0 | 0.00 KM |
Nearby Transport
| Name | NLC | TLC | Distance |
|---|---|---|---|
| Heworth | 7766 | HEW | 5.98 KM |
| Chester-Le-Street | 7736 | CLS | 6.22 KM |
Nearby Listings
| Address | Price | Type | Score | Distance |
|---|---|---|---|---|
| Crighton, Washington, Tyne and Wear, NE38 | £ 120,000 | BUY | 6 / 10 | 0.00 KM |
| Raglan, Oxclose, Washington | £ 115,000 | BUY | Unknown | 0.17 KM |
| Alnwick Court, Oxclose, Washington, Tyne And Wear, NE38 | £ 55,000 | BUY | 6 / 10 | 0.27 KM |
| Bamburgh Close, Oxclose Washington | £ 50,000 | BUY | 5 / 10 | 0.35 KM |
| Stridingedge, Washington | £ 105,000 | BUY | 6 / 10 | 0.36 KM |
Nearby Properties
| Address | Price | Distance |
|---|---|---|
| 51 Crighton | £ 97,000 | 0.04 KM |
| 74 Crighton | £ 103,000 | 0.04 KM |
| 62 Crighton | £ 96,000 | 0.04 KM |
| 61 Crighton | £ 107,000 | 0.04 KM |
| 63 Crighton | £ 38,000 | 0.04 KM |