BidX1 says ..
N/A
Property Oracle says ..
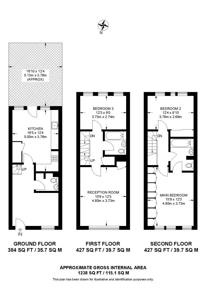
The property is a three-bedroom semi-detached house located in Spirit Quay, Wapping, London. The property is in a good location, with good access to transport links and local amenities. Hermitage Primary School is close by and has a ‘Good’ Ofsted rating. The interior of the property is dated and in need of renovation. The bathrooms, in particular, look worn. The kitchen also appears dated. The property has a garden, which is a desirable feature in London. The garden is paved and has some greenery around the edges. The property is listed for £700,000. The average price for properties on Spirit Quay is £775,000. The average price per square foot in the area is £1,169. Given the condition of the property, the price seems reasonable.
Therefore, we give this property 6 / 10. *Disclaimer: This is our option and does constitute a recommendation or financial advice. Do your own research. *
- Price
- 7
- Condition
- 5
- Location
- 8
- Land
- 6
- Bedrooms
- 3
- Bathrooms
- 2
The heatmap indicates the level of crime in the area. The color of the heatmap indicates the crime severity and recency.
Metrics Year-on-Year
- Average area value
- 1,071,462.00 £Increased by 21.52 %
- Average area rental value
- 2,484.00 £/moDecreased by 4.86 %
- Est rental Yield
- 2.78 %Decreased by 21.69 %
- Crime Rate
- 1.00 %Unchanged by 0.00 %
Agent Activity
BidX1 created the listing.
Nearby Schools
| Name | Type | Ofsted | Distance |
|---|---|---|---|
| Hermitage Primary School | Community School | Good | 0.17 KM |
| St Paul'S Whitechapel Church Of England Primary School | Voluntary Aided School | Outstanding | 0.50 KM |
| Wapping Children'S Centre | Children's Centre | 0.59 KM | |
| Riverside Primary School | Community School | Outstanding | 0.71 KM |
| St Michael'S Catholic College | Academy Converter | Outstanding | 0.72 KM |
Images
Nearby Streets
| Name | Average Price | Average Sqft | Distance |
|---|---|---|---|
| Smeaton Street | £ 775,000 | 0 | 0.00 KM |
| Waveney Close | £ 0 | 0 | 0.00 KM |
| Market Garden | £ 1,198,318 | 0 | 0.00 KM |
| Wapping High Street | £ 185,000 | 0 | 0.00 KM |
| Waterside Promenade | £ 0 | 0 | 0.00 KM |
Nearby Transport
| Name | NLC | TLC | Distance |
|---|---|---|---|
| Wapping | 1085 | WPE | 0.94 KM |
| Shadwell | 1082 | SDE | 1.01 KM |
| Rotherhithe | 1039 | ROE | 1.47 KM |
| Whitechapel | 4935 | ZLW | 1.59 KM |
| Fenchurch Street | 7490 | FST | 1.73 KM |
Nearby Listings
| Address | Price | Type | Score | Distance |
|---|---|---|---|---|
| Spirit Quay, London, E1W | £ 700,000 | BUY | 6 / 10 | 0.00 KM |
| Spirit Quay, Wapping | £ 1,250,000 | BUY | 7 / 10 | 0.01 KM |
| Spirit Quay, E1W, Wapping, London, E1W | £ 850,000 | BUY | Unknown | 0.05 KM |
| Spirit Quay, Wapping, London, E1W | £ 385,000 | BUY | Unknown | 0.05 KM |
| Spirit Quay, LONDON E1W | £ 960,000 | BUY | 7 / 10 | 0.05 KM |
Nearby Properties
| Address | Price | Distance |
|---|---|---|
| 5 Douthwaite Square | £ 525,000 | 0.05 KM |
| 2 Douthwaite Square | £ 278,288 | 0.05 KM |
| 61 Spirit Quay | £ 840,000 | 0.05 KM |
| 36 Spirit Quay | £ 410,000 | 0.05 KM |
| 22 Spirit Quay | £ 90,000 | 0.05 KM |