Barnard Marcus says ..
This three-bedroom, semi-detached family house without a private rear garage and no onward chain situated on Highview Road in Acton, conveniently placed within walking distance to Acton Main Line & North Acton station and access to the A40, taking you into Central London with ease.
Property Oracle says ..
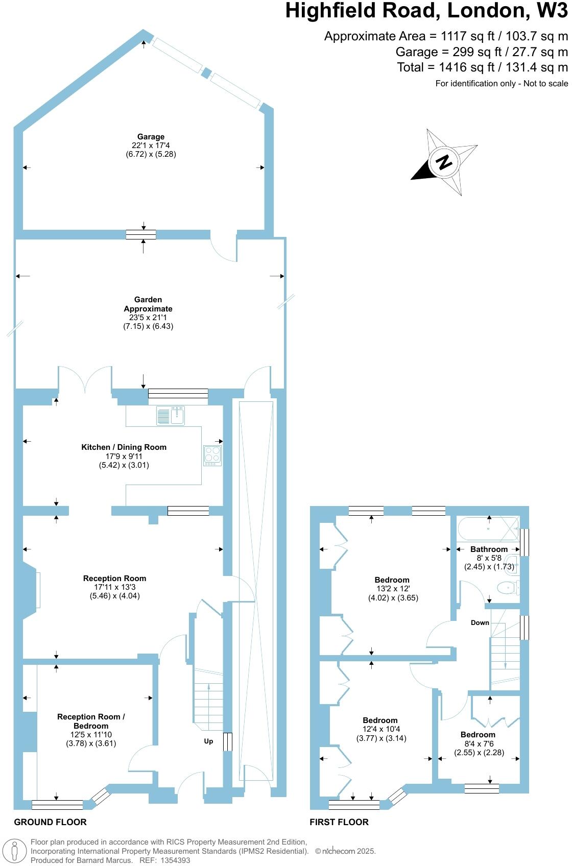
This is a semi-detached property located on Highfield Road in Acton Central, London. It features three bedrooms and two bathrooms, with a spacious 1,743 sq ft of living space. While the location is advantageous, offering proximity to transportation and schools, the property’s condition suggests a need for renovation. The kitchen and bathroom appear dated, and the garden requires significant attention. The asking price of £725,000 seems reasonable given the size and location, but potential buyers should factor in the cost of necessary updates and improvements.
Therefore, we give this property 5 / 10. *Disclaimer: This is our option and does constitute a recommendation or financial advice. Do your own research. *
- Price
- 7
- Condition
- 4
- Location
- 7
- Land
- 5
- Bedrooms
- 3
- Bathrooms
- 2
- Sqft (est)
- 1,743.00
The heatmap indicates the level of crime in the area. The color of the heatmap indicates the crime severity and recency.
Metrics Year-on-Year
- Average area value
- 633,524.00 £Decreased by 17.79 %
- Est sale value
- 1,511,181.00 £Increased by 19.92 %
- Average area rental value
- 2,128.00 £/moIncreased by 15.40 %
- Est letting value
- 3,486.00 £/moIncreased by 100.00 %
- Est rental Yield
- 4.03 %Increased by 40.42 %
- Crime Rate
- 1.00 %Unchanged by 0.00 %
Agent Activity
Barnard Marcus created the listing.
Nearby Schools
| Name | Type | Ofsted | Distance |
|---|---|---|---|
| London Bunka Yochien | Other Independent School | Good | 0.71 KM |
| West Acton Primary School | Community School | Good | 0.96 KM |
| Advance Education | Other Independent School | Requires improvement | 1.21 KM |
| Greek Primary School Of London | Other Independent School | Good | 1.27 KM |
| St Vincent'S Catholic Primary School | Voluntary Aided School | Good | 1.27 KM |
Images
Nearby Streets
| Name | Average Price | Average Sqft | Distance |
|---|---|---|---|
| Canada Road | £ 514,167 | 0 | 0.00 KM |
| Walton Way | £ 491,389 | 0 | 0.00 KM |
| Park View | £ 719,993 | 0 | 0.00 KM |
| Britannia Way | £ 0 | 0 | 0.00 KM |
| The Link | £ 0 | 0 | 0.00 KM |
Nearby Transport
| Name | NLC | TLC | Distance |
|---|---|---|---|
| Acton Main Line | 3000 | AML | 0.87 KM |
| Acton Central | 1404 | ACC | 1.88 KM |
| Harlesden | 1521 | HDN | 2.15 KM |
| Stonebridge Park | 1454 | SBP | 2.38 KM |
| South Acton | 1452 | SAT | 2.61 KM |
Nearby Listings
| Address | Price | Type | Score | Distance |
|---|---|---|---|---|
| Highfield Road, London | £ 725,000 | BUY | 5 / 10 | 0.00 KM |
| Highfield Road, Acton, W3 | £ 799,950 | BUY | 6 / 10 | 0.04 KM |
| Highfield Road, Acton, Acton, W3 | £ 850,000 | BUY | 6 / 10 | 0.07 KM |
| Northfields Road, Acton | £ 750,000 | BUY | 6 / 10 | 0.08 KM |
| Highfield Road, Acton, London, W3 | £ 850,000 | BUY | 6 / 10 | 0.08 KM |
Nearby Properties
| Address | Price | Distance |
|---|---|---|
| 48 Northfields Road | £ 740,000 | 0.06 KM |
| 42 Northfields Road | £ 830,000 | 0.06 KM |
| 58 Northfields Road | £ 639,500 | 0.06 KM |
| 22 Northfields Road | £ 585,000 | 0.06 KM |
| 56 Northfields Road | £ 905,000 | 0.06 KM |