Naylor Powell says ..
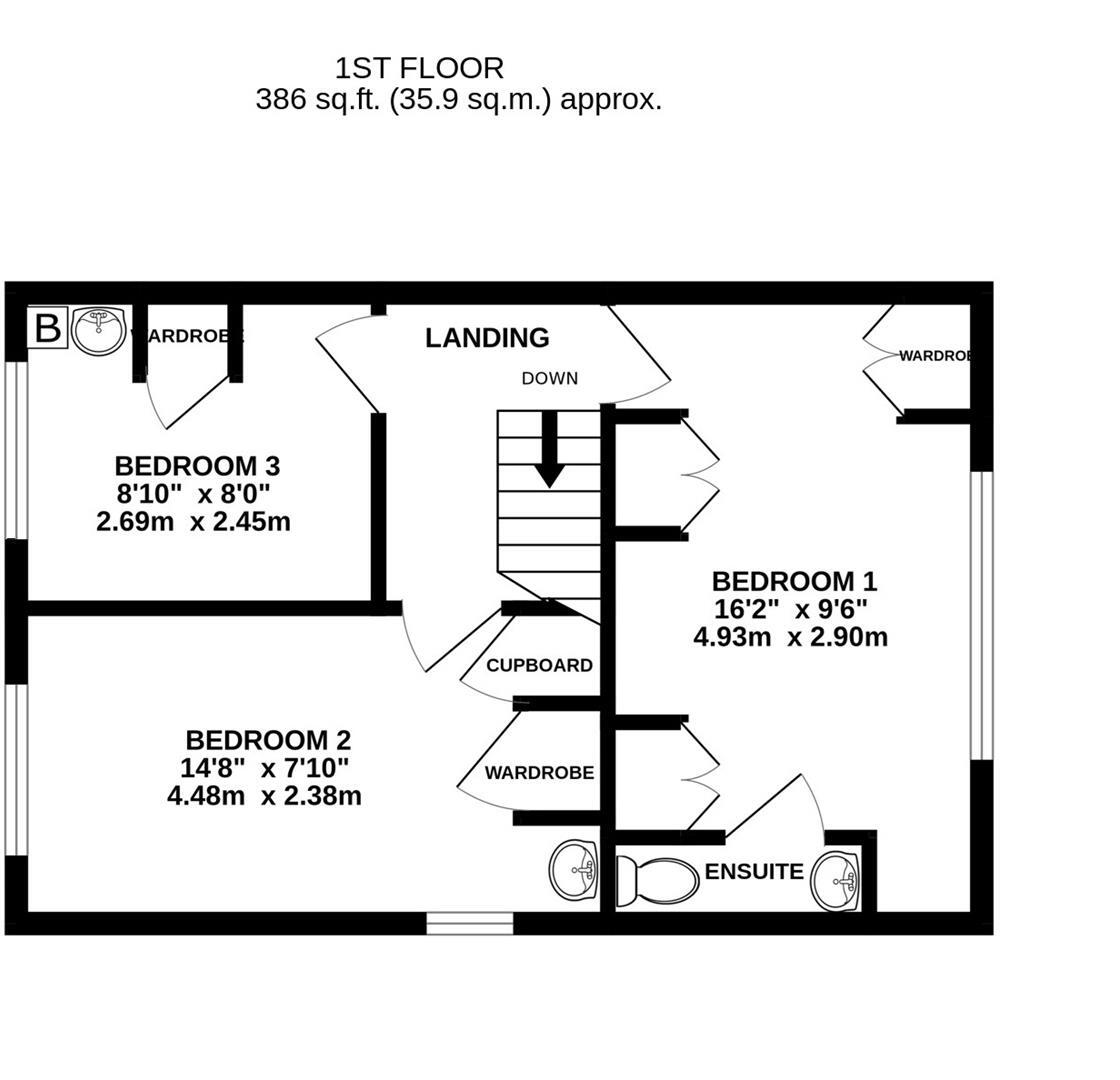
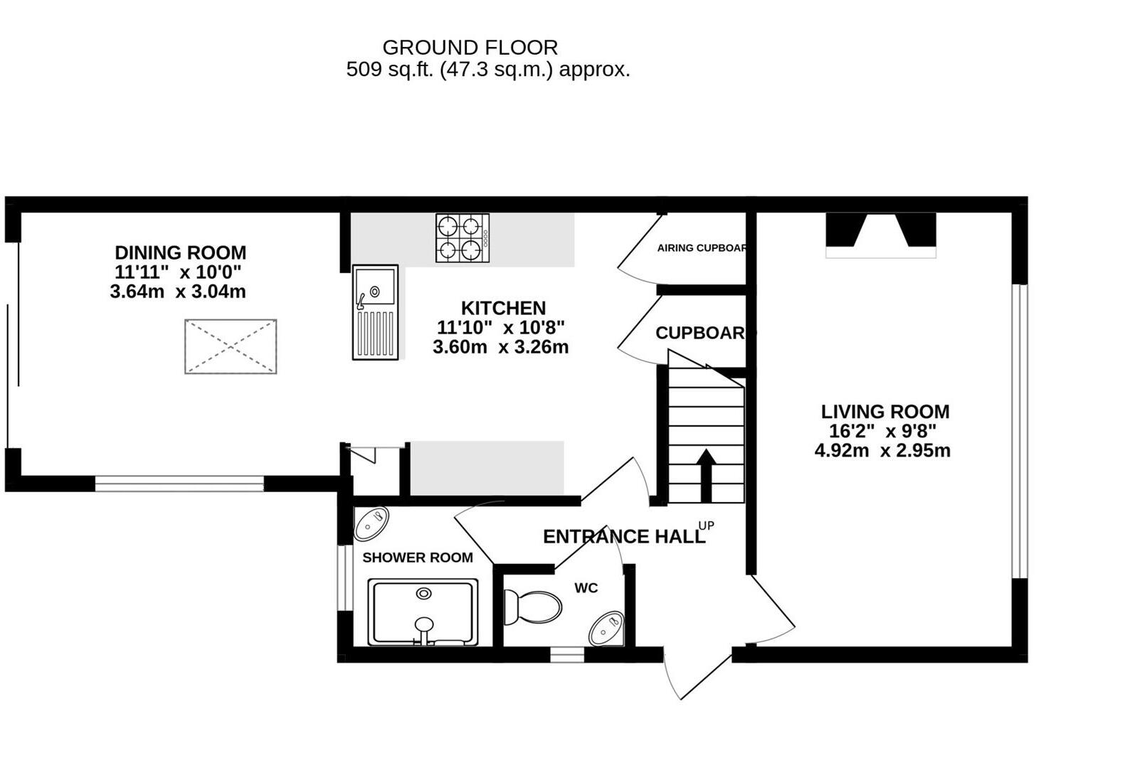
Located in the popular area of Hucclecote, this 3-bedroom chalet-style property is offered to the market chain-free. Featuring two reception rooms, a downstairs shower room, and three double bedrooms, this family home provides comfort and convenience. Outside of the property is a driveway offerin...
Property Oracle says ..
This is a three-bedroom semi-detached property located in Hucclecote, Gloucester. The property offers a garden with a shed and greenhouse. While the property is in fair condition, it would benefit from modernization, particularly in the kitchen and bathroom. The location is convenient, with nearby schools and transportation links. The asking price of £285,000 is slightly below the average for the area, making it a potentially attractive purchase for those willing to invest in some renovations.
Therefore, we give this property 6 / 10. *Disclaimer: This is our option and does constitute a recommendation or financial advice. Do your own research. *
- Price
- 7
- Condition
- 6
- Location
- 7
- Land
- 7
- Bedrooms
- 3
- Bathrooms
- 1
- Sqft (est)
- 894.48
The heatmap indicates the level of crime in the area. The color of the heatmap indicates the crime severity and recency.
Metrics Year-on-Year
- Average area value
- 290,495.00 £Decreased by 11.63 %
- Est sale value
- 290,706.00 £Increased by 0.31 %
- Average area rental value
- 1,124.00 £/moIncreased by 4.46 %
- Est letting value
- 894.48 £/moUnchanged by 0.00 %
- Est rental Yield
- 4.64 %Increased by 18.07 %
- Crime Rate
- 28.00 %Unchanged by 0.00 %
Agent Activity
Naylor Powell created the listing.
Nearby Schools
| Name | Type | Ofsted | Distance |
|---|---|---|---|
| Hillview Primary School | Community School | Good | 0.23 KM |
| Dinglewell Junior School | Community School | Good | 1.10 KM |
| Dinglewell Infant School | Community School | Good | 1.10 KM |
| Abbeymead Primary School | Community School | Good | 2.03 KM |
| Barnwood Church Of England Primary School | Voluntary Aided School | Requires improvement | 2.11 KM |
Images
Nearby Streets
| Name | Average Price | Average Sqft | Distance |
|---|---|---|---|
| Saint Philips Close | £ 0 | 0 | 0.00 KM |
| Fircroft Close | £ 403,333 | 0 | 0.00 KM |
| Saint Margarets Road | £ 0 | 0 | 0.00 KM |
| Kennedy Close | £ 239,950 | 0 | 0.00 KM |
| Conway Road | £ 312,475 | 0 | 0.00 KM |
Nearby Transport
| Name | NLC | TLC | Distance |
|---|---|---|---|
| Gloucester | 4760 | GCR | 5.46 KM |
Nearby Listings
| Address | Price | Type | Score | Distance |
|---|---|---|---|---|
| Chosen Way, Hucclecote | £ 285,000 | BUY | 6 / 10 | 0.00 KM |
| Queens Close, Hucclecote, Gloucester | £ 225,000 | BUY | 7 / 10 | 0.18 KM |
| Chosen Way, Hucclecote, Gloucester | £ 395,000 | BUY | 7 / 10 | 0.26 KM |
| Gilpin Avenue, Hucclecote, Gloucester, Gloucestershire, GL3 | £ 280,000 | BUY | 7 / 10 | 0.27 KM |
| Chosen Way, Hucclecote, Gloucester | £ 279,950 | BUY | 6 / 10 | 0.27 KM |
Nearby Properties
| Address | Price | Distance |
|---|---|---|
| 149 Chosen Way | £ 220,000 | 0.03 KM |
| 141 Chosen Way | £ 192,500 | 0.03 KM |
| 145 Chosen Way | £ 235,000 | 0.03 KM |
| 143 Chosen Way | £ 214,000 | 0.03 KM |
| 153 Chosen Way | £ 154,000 | 0.03 KM |