Flag Cutters Way, Horsford, NR10
By The Estate Agency Hub Ltd
£ 325,000
Reviews
3 out of 5 stars
The Estate Agency Hub Ltd says ..
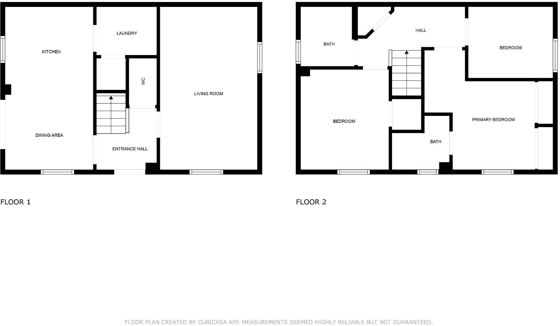
Built in 2019 by David Wilson Homes, we are pleased to present this three bedroom semi-detached family home on a modern development in the popular village of Horsford.
Property Oracle says ..
This property is a 3 bedroom, 2 bathroom house located in Horsford, Norfolk. The property is presented in good condition and benefits from a private rear garden. Horsford is a desirable village location with good local amenities and schools, including Horsford Cofe Va Primary School which is rated as ‘Good’ by Ofsted. The property is listed at £325,000. While there is limited comparable data provided, the price seems reasonable given the location, condition, and size of the property. More data on nearby property prices and square footage would allow for a more precise analysis of the value.
Therefore, we give this property 7 / 10. *Disclaimer: This is our option and does constitute a recommendation or financial advice. Do your own research. *
- Price
- 7
- Condition
- 8
- Location
- 8
- Land
- 7
- Bedrooms
- 3
- Bathrooms
- 2
- Sqft (est)
- 770.00
The heatmap indicates the level of crime in the area. The color of the heatmap indicates the crime severity and recency.
Metrics Year-on-Year
- Average area value
- 424,200.00 £Increased by 10.42 %
- Est sale value
- 172,480.00 £Decreased by 31.71 %
- Average area rental value
- 1,450.00 £/moIncreased by 18.76 %
- Est letting value
- 0.00 £/moDecreased by 100.00 %
- Est rental Yield
- 4.10 %Increased by 7.61 %
- Crime Rate
- 26.00 %Unchanged by 0.00 %
Agent Activity
The Estate Agency Hub Ltd marked this listing as sold.
The Estate Agency Hub Ltd created the listing.
Nearby Schools
| Name | Type | Ofsted | Distance |
|---|---|---|---|
| Horsford Cofe Va Primary School | Voluntary Aided School | Good | 0.81 KM |
| Hellesdon Children'S Centre | Children's Centre | 1.33 KM | |
| Drayton Community Infant School | Academy Sponsor Led | 3.39 KM | |
| Drayton And Taverham Sure Start Children'S Centre | Children's Centre | 3.46 KM | |
| Drayton Cofe Junior School | Voluntary Controlled School | Good | 3.74 KM |
Images
Nearby Streets
| Name | Average Price | Average Sqft | Distance |
|---|---|---|---|
| Willow Way | £ 0 | 0 | 0.00 KM |
| Rowan Crescent | £ 240,000 | 0 | 0.00 KM |
| Broom Close | £ 425,000 | 0 | 0.00 KM |
| Moore Close | £ 0 | 0 | 0.00 KM |
| Sandy Lane | £ 795,000 | 0 | 0.00 KM |
Nearby Listings
| Address | Price | Type | Score | Distance |
|---|---|---|---|---|
| Flag Cutters Way, HORSFORD, NR10 | £ 300,000 | BUY | 8 / 10 | 0.00 KM |
| Flag Cutters Way, Horsford, NR10 | £ 325,000 | BUY | 7 / 10 | 0.00 KM |
| Flag Cutters Way, NR10 | £ 310,000 | BUY | 7 / 10 | 0.00 KM |
| Flag Cutters Way, NR10 | £ 188,000 | BUY | 7 / 10 | 0.00 KM |
| Willow Way, Horsford, NR10 | £ 240,000 | BUY | 7 / 10 | 0.12 KM |
Nearby Properties
| Address | Price | Distance |
|---|---|---|
| Green Lane Farm | £ 975,000 | 0.13 KM |
| Oakdene | £ 475,000 | 0.13 KM |
| 17 Olive Crescent | £ 245,000 | 0.23 KM |
| 25 Olive Crescent | £ 125,000 | 0.23 KM |
| 13 Olive Crescent | £ 240,000 | 0.23 KM |