Gascoigne Halman says ..
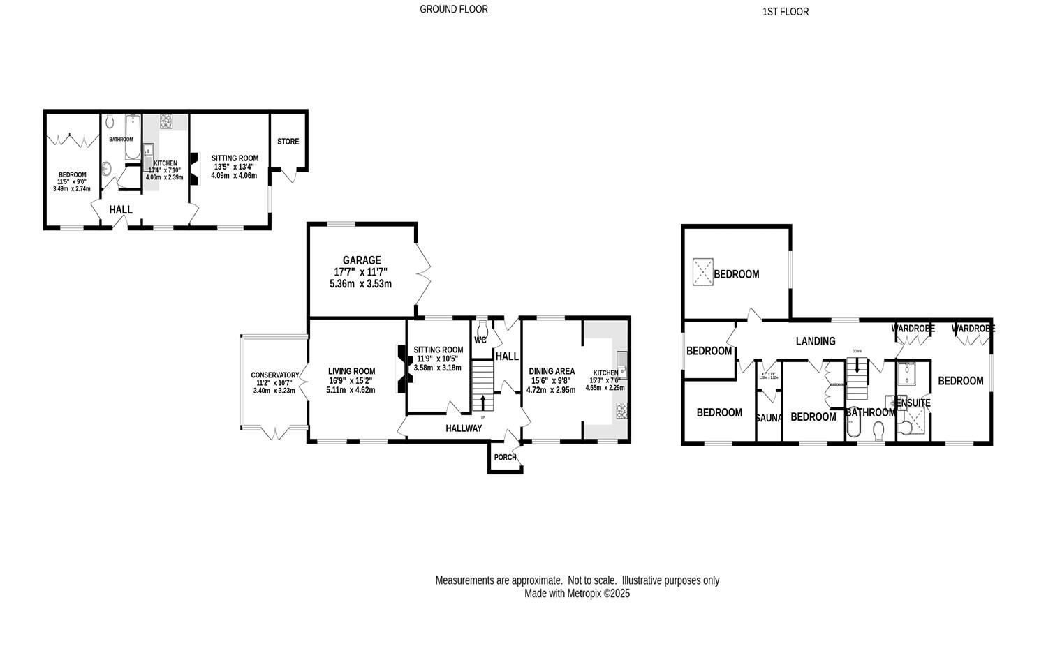
A STONE DETACHED FARMHOUSE STYLE HOME set within PICTURESQUE GROUNDS and an attractive Hamlet setting close to the popular town of WHALEY BRIDGE. The property has SPACIOUS ACCOMMODATION WITH FIVE BEDROOMS and the added benefit of a further DETACHED BUNGALOW within the grounds offering ONE BEDROO...
Property Oracle says ..
Therefore, we give this property 6 / 10. *Disclaimer: This is our option and does constitute a recommendation or financial advice. Do your own research. *
- Price
- 4
- Condition
- 7
- Location
- 7
- Land
- 8
- Bedrooms
- 5
- Bathrooms
- 3
- Sqft (est)
- 1,453.67
The heatmap indicates the level of crime in the area. The color of the heatmap indicates the crime severity and recency.
Metrics Year-on-Year
- Average area value
- 334,167.00 £Increased by 24.23 %
- Est sale value
- 373,593.19 £Decreased by 19.44 %
- Average area rental value
- 1,252.00 £/moIncreased by 4.33 %
- Est letting value
- 0.00 £/moDecreased by 100.00 %
- Est rental Yield
- 4.50 %Decreased by 15.89 %
- Crime Rate
- 0.00 %
from 269,000.00 £
from 463,720.73 £
from 1,200.00 £/mo
from 1,453.67 £/mo
from 5.35 %
from 0.00 %
Agent Activity
Gascoigne Halman created the listing.
Nearby Schools
| Name | Type | Ofsted | Distance |
|---|---|---|---|
| Taxal And Fernilee Cofe Primary School | Voluntary Controlled School | Good | 1.27 KM |
| Whaley Bridge Primary School | Community School | Requires improvement | 1.42 KM |
| Furness Vale Primary And Nursery School | Community School | Good | 1.99 KM |
| High Peak School | Other Independent Special School | Good | 3.19 KM |
| Kettleshulme St James Cofe (Va) Primary School | Voluntary Aided School | Good | 3.23 KM |
Images
Nearby Streets
| Name | Average Price | Average Sqft | Distance |
|---|---|---|---|
| Williamson Crescent | £ 0 | 0 | 0.00 KM |
| Overton Lane | £ 0 | 0 | 0.00 KM |
| Linglongs Road | £ 426,235 | 0 | 0.00 KM |
Nearby Transport
| Name | NLC | TLC | Distance |
|---|---|---|---|
| Whaley Bridge | 2772 | WBR | 1.35 KM |
| Furness Vale | 2952 | FNV | 2.04 KM |
| New Mills Newtown | 2769 | NMN | 3.32 KM |
| New Mills Central | 2974 | NMC | 3.76 KM |
| Disley | 2765 | DSL | 5.83 KM |
Nearby Listings
| Address | Price | Type | Score | Distance |
|---|---|---|---|---|
| Whaley Bridge, High Peak | £ 750,000 | BUY | 6 / 10 | 0.00 KM |
| Stoneheads, Whaley Bridge, High Peak | £ 750,000 | BUY | 7 / 10 | 0.01 KM |
| 85 Whaley Lane, Whaley Bridge, SK23 | £ 875,000 | BUY | 7 / 10 | 0.20 KM |
| Meadowfield, Whaley Bridge, SK23 | £ 440,000 | BUY | 7 / 10 | 0.21 KM |
| Meadowfield, Whaley Bridge, High Peak | £ 450,000 | BUY | 7 / 10 | 0.23 KM |
Nearby Properties
| Address | Price | Distance |
|---|---|---|
| 25 Stoneheads | £ 165,000 | 0.02 KM |
| 27 Stoneheads | £ 525,000 | 0.05 KM |
| 10 Stoneheads | £ 459,950 | 0.05 KM |
| 21 Stoneheads | £ 500,000 | 0.05 KM |
| 3 Stoneheads | £ 400,000 | 0.05 KM |