Ossulton Way, Hampstead Garden Suburb, N2
By Chancellors
£ 475,000
Reviews
3 out of 5 stars
Chancellors says ..
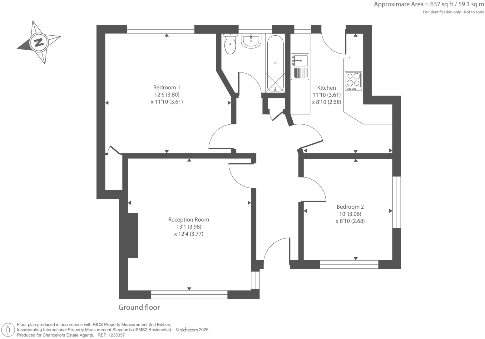
Located on the North side of Hampstead Garden Suburb is this newly decorated ground floor purpose built apartment. The property is offered chain free and has the following accommodation:
Property Oracle says ..
This property is a 2-bedroom maisonette located in Hampstead Garden Suburb, a highly desirable area of North London. The property benefits from being close to excellent schools such as Brookland Infant and Nursery School and Bishop Douglass School, both rated as Outstanding or Good by Ofsted. East Finchley Underground Station (Northern Line) provides convenient access to central London. The maisonette itself appears to be in good condition, with a recently updated kitchen and bathroom. While the images show a small amount of garden space, the plot size is listed as 0.00 sqft, which is unusual for a property in this area. The list price of £475,000 seems reasonable considering comparable properties in the area, although the lack of plot size details makes it difficult to give a definitive assessment.
Therefore, we give this property 6 / 10. *Disclaimer: This is our option and does constitute a recommendation or financial advice. Do your own research. *
- Price
- 7
- Condition
- 7
- Location
- 9
- Land
- 3
- Bedrooms
- 2
- Bathrooms
- 0
- Sqft (est)
- 637.00
The heatmap indicates the level of crime in the area. The color of the heatmap indicates the crime severity and recency.
Metrics Year-on-Year
- Average area value
- 781,875.00 £Increased by 10.58 %
- Est sale value
- 405,132.00 £Decreased by 19.19 %
- Average area rental value
- 2,137.00 £/moDecreased by 5.78 %
- Est letting value
- 637.00 £/moDecreased by 50.00 %
- Est rental Yield
- 3.28 %Decreased by 14.81 %
- Crime Rate
- 5.00 %Unchanged by 0.00 %
Agent Activity
Chancellors created the listing.
Nearby Schools
| Name | Type | Ofsted | Distance |
|---|---|---|---|
| Oak Lodge School | Academy Special Converter | Outstanding | 0.23 KM |
| Oakbridge Special Education | Special Post 16 Institution | 0.28 KM | |
| Bishop Douglass School Finchley | Academy Converter | Good | 0.48 KM |
| Christ'S College Finchley | Academy Converter | Good | 0.81 KM |
| Brookland Infant And Nursery School | Community School | Outstanding | 0.93 KM |
Images
Nearby Streets
| Name | Average Price | Average Sqft | Distance |
|---|---|---|---|
| Juliana Close | £ 575,000 | 0 | 0.00 KM |
| Brighton Road | £ 0 | 0 | 0.00 KM |
| Abbotts Gardens | £ 0 | 0 | 0.00 KM |
| Primrose Close | £ 0 | 0 | 0.00 KM |
| The Mead | £ 327,000 | 0 | 0.00 KM |
Nearby Transport
| Name | NLC | TLC | Distance |
|---|---|---|---|
| Hampstead Heath | 1413 | HDH | 4.18 KM |
| Finchley Road And Frognal | 1445 | FNY | 4.44 KM |
| West Hampstead Thameslink | 1525 | WHP | 4.80 KM |
| New Southgate | 6019 | NSG | 4.89 KM |
| West Hampstead | 1421 | WHD | 4.89 KM |
Nearby Listings
| Address | Price | Type | Score | Distance |
|---|---|---|---|---|
| Ossulton Way, Hampstead Garden Suburb, N2 | £ 475,000 | BUY | 6 / 10 | 0.00 KM |
| Ossulton Way, Hampstead Garden Suburb, N2 | £ 2,000,000 | BUY | 9 / 10 | 0.06 KM |
| Ossulton Way, Hampstead Garden Suburb, London, N2 | £ 1,795,000 | BUY | 8 / 10 | 0.06 KM |
| 109 Ossulton Way, Hampstead Garden Suburb, London, N2 | £ 325,000 | BUY | 7 / 10 | 0.10 KM |
| Holyoake Walk, London, N2 | £ 1,200,000 | BUY | Unknown | 0.12 KM |
Nearby Properties
| Address | Price | Distance |
|---|---|---|
| 52 Ossulton Way | £ 1,110,000 | 0.08 KM |
| 78 Ossulton Way | £ 1,510,000 | 0.08 KM |
| 76 Ossulton Way | £ 1,370,000 | 0.08 KM |
| 48 Ossulton Way | £ 1,050,000 | 0.08 KM |
| 96 Ossulton Way | £ 1,385,000 | 0.08 KM |