Hortons says ..
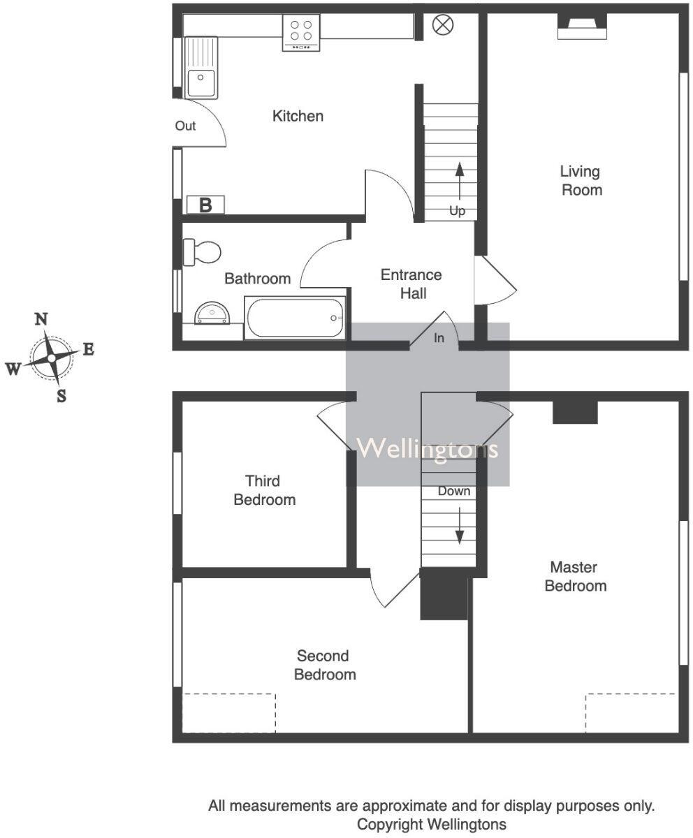
**Renovation opportunity** A three-bed semi-detached home in Derby Green, with front and rear gardens. Close to shops, station, schools, and countryside. Includes garage and driveway. Potential to renovate and extend (s.t.p.p). Open house on 10th May.
Property Oracle says ..
The property is a 3-bedroom, 1-bathroom semi-detached house located in Blackwater, Hampshire. It is listed at £375,000 and has a floor area of 565 sqft. The property benefits from a good location with several highly-rated primary schools and train stations nearby. However, the average house price in the area is significantly higher (£597,800), and the average house size is considerably larger (1,423 sqft). Based on the images, the property appears dated and in need of modernisation and updating. The garden is present but overgrown. The asking price may be considered reasonable compared to some lower-priced nearby properties but is significantly lower than the area average. The lack of plot size information and the need for modernisation should be considered.
Therefore, we give this property 5 / 10. *Disclaimer: This is our option and does constitute a recommendation or financial advice. Do your own research. *
- Price
- 6
- Condition
- 4
- Location
- 7
- Land
- 5
- Bedrooms
- 3
- Bathrooms
- 1
- Sqft (est)
- 565.00
The heatmap indicates the level of crime in the area. The color of the heatmap indicates the crime severity and recency.
Metrics Year-on-Year
- Average area value
- 453,750.00 £Decreased by 10.46 %
- Est sale value
- 280,805.00 £Decreased by 1.78 %
- Average area rental value
- 1,675.00 £/moDecreased by 47.29 %
- Est letting value
- 565.00 £/moDecreased by 66.67 %
- Est rental Yield
- 4.43 %Decreased by 41.17 %
- Crime Rate
- 13.00 %Unchanged by 0.00 %
Agent Activity
Hortons created the listing.
Nearby Schools
| Name | Type | Ofsted | Distance |
|---|---|---|---|
| Frogmore Infant School | Community School | Outstanding | 0.47 KM |
| Frogmore Junior School | Academy Sponsor Led | Good | 0.60 KM |
| Water Lilies Children'S Centre | Children's Centre Linked Site | 0.60 KM | |
| Potley Hill Primary School | Community School | Good | 1.07 KM |
| Uplands Primary School And Nursery | Community School | Outstanding | 1.18 KM |
Images
Nearby Streets
| Name | Average Price | Average Sqft | Distance |
|---|---|---|---|
| Winchester Way | £ 0 | 0 | 0.00 KM |
| Heron Court | £ 250,000 | 0 | 0.00 KM |
| Sycamore Close | £ 0 | 0 | 0.00 KM |
| York Way | £ 0 | 0 | 0.00 KM |
| Fox Court | £ 0 | 0 | 0.00 KM |
Nearby Transport
| Name | NLC | TLC | Distance |
|---|---|---|---|
| Sandhurst (Berks) | 5646 | SND | 1.21 KM |
| Blackwater | 5625 | BAW | 2.59 KM |
| Crowthorne | 5628 | CRN | 3.94 KM |
| Camberley | 5682 | CAM | 6.10 KM |
| Fleet | 5522 | FLE | 6.24 KM |
Nearby Listings
| Address | Price | Type | Score | Distance |
|---|---|---|---|---|
| Olde Farm Drive, Blackwater, GU17 | £ 375,000 | BUY | 5 / 10 | 0.00 KM |
| Olde Farm Drive, Blackwater | £ 425,000 | BUY | Unknown | 0.02 KM |
| Olde Farm Drive, Blackwater, Camberley, Hampshire, GU17 | £ 550,000 | BUY | 7 / 10 | 0.09 KM |
| Olde Farm Drive, Blackwater, Camberley | £ 525,000 | BUY | Unknown | 0.09 KM |
| Woodville Close, Blackwater | £ 550,000 | BUY | 7 / 10 | 0.12 KM |
Nearby Properties
| Address | Price | Distance |
|---|---|---|
| 23 Olde Farm Drive | £ 233,500 | 0.01 KM |
| 29 Olde Farm Drive | £ 205,000 | 0.01 KM |
| 12 Olde Farm Drive | £ 325,000 | 0.01 KM |
| 38 Olde Farm Drive | £ 228,000 | 0.01 KM |
| 11 Olde Farm Drive | £ 415,000 | 0.01 KM |