Golf Road, New Inn, Pontypool
One2One logo

Golf Road, New Inn, Pontypool

By One2One

£ 295,000

Reviews

3 out of 5 stars

One2One says ..

***ASKING PRICE - £295,000*** Nestled in the charming area of New Inn, this delightful semi detached house on Golf Road offers a perfect blend of comfort and convenience. With three bedrooms, this property is ideal for families or those seeking extra space. The inviting reception room provides a ...

Property Oracle says ..

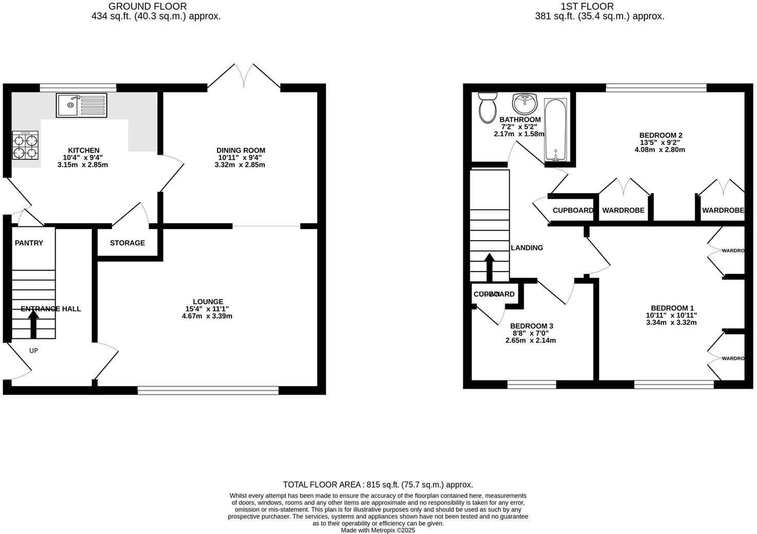
This property is a 3-bedroom semi-detached house located on Golf Road in New Inn, Pontypool. The location benefits from being close to New Inn Primary School (0.38km) and has good transport links with Pontypool and New Inn train station just 1.15km away. The property itself is in good condition and has been recently modernised, as shown by the photos. There is a well-maintained garden to the rear of the property. The list price of £295,000 is slightly below the average price for the area (£305,948), and considering the property’s condition and location, it represents reasonable value for money.

Therefore, we give this property 7 / 10. *Disclaimer: This is our option and does constitute a recommendation or financial advice. Do your own research. *

Price
7
Condition
8
Location
7
Land
7
Bedrooms
3
Bathrooms
1
Sqft (est)
685.93
Lot (est)
815.00

The heatmap indicates the level of crime in the area. The color of the heatmap indicates the crime severity and recency.

Metrics Year-on-Year

Average area value
283,000.00 £
Decreased by 21.70 %
from 361,433.00 £
Est sale value
260,653.40 £
Increased by 38.69 %
from 187,944.82 £
Average area rental value
1,134.00 £/mo
Increased by 19.24 %
from 951.00 £/mo
Est letting value
685.93 £/mo
from 0.00 £/mo
Est rental Yield
4.81 %
Increased by 52.22 %
from 3.16 %
Crime Rate
19.00 %
Unchanged by 0.00 %
from 19.00 %

Agent Activity

  • One2One created the listing.

Nearby Schools

NameTypeOfstedDistance
New Inn Primary SchoolWelsh Establishment0.38 KM
Griffithstown PrimaryWelsh Establishment2.55 KM
St David'S R.C. Jnr. & Inf. SchoolWelsh Establishment3.60 KM
West Monmouth Comprehensive SchoolWelsh Establishment3.66 KM
Penygarn Primary SchoolWelsh Establishment3.76 KM

Images

94 Golf Road-15.jpg 94 Golf Road-17.jpg 94 Golf Road-16.jpg 94 Golf Road-14.jpg 94 Golf Road-12.jpg 94 Golf Road-11.jpg 94 Golf Road-18.jpg 94 Golf Road-10.jpg 94 Golf Road-1.jpg 94 Golf Road-2.jpg 94 Golf Road-13.jpg 94 Golf Road-19.jpg 94 Golf Road-31.jpg 94 Golf Road-5.jpg 94 Golf Road-6.jpg 94 Golf Road-3.jpg 94 Golf Road-4.jpg 94 Golf Road-8.jpg 94 Golf Road-9.jpg 94 Golf Road-20.jpg 94 Golf Road-21.jpg 94 Golf Road-22.jpg 94 Golf Road-25.jpg 94 Golf Road-26.jpg 94 Golf Road-27.jpg 94 Golf Road-7.jpg 94 Golf Road-23.jpg 94 Golf Road-24.jpg 94 Golf Road-28.jpg 94 Golf Road-29.jpg 94 Golf Road-30.jpg

Nearby Streets

NameAverage PriceAverage SqftDistance
Hazel Close £ 311,66700.00 KM
Hillcrest £ 251,00000.00 KM
Laburnum Drive £ 321,25000.00 KM
Chestnut Close £ 245,00000.00 KM
Russell Close £ 000.00 KM

Nearby Transport

NameNLCTLCDistance
Pontypool And New Inn3744PPL1.15 KM
Cwmbran3738CWM4.33 KM

Nearby Listings

AddressPriceTypeScoreDistance
Golf Road, New Inn, Pontypool £ 295,000BUY7 / 100.00 KM
Princes Walk, New Inn £ 230,000BUY7 / 100.07 KM
Princes Walk, New Inn, NP4 £ 250,000BUYUnknown0.07 KM
Hazel Close, New Inn, Pontypool, NP4 £ 340,000BUY6 / 100.14 KM
Golf Road, Pontypool £ 250,000BUY6 / 100.15 KM

Nearby Properties

AddressPriceDistance
100 Golf Road £ 192,5000.04 KM
104 Golf Road £ 189,0000.04 KM
97 Golf Road £ 225,0000.04 KM
81 Golf Road £ 174,9500.04 KM
79 Golf Road £ 180,0000.06 KM