JU
Courthouse Croft, Kenilworth
By Julie Philpot
£ 269,950
Reviews
3 out of 5 stars
Julie Philpot says ..
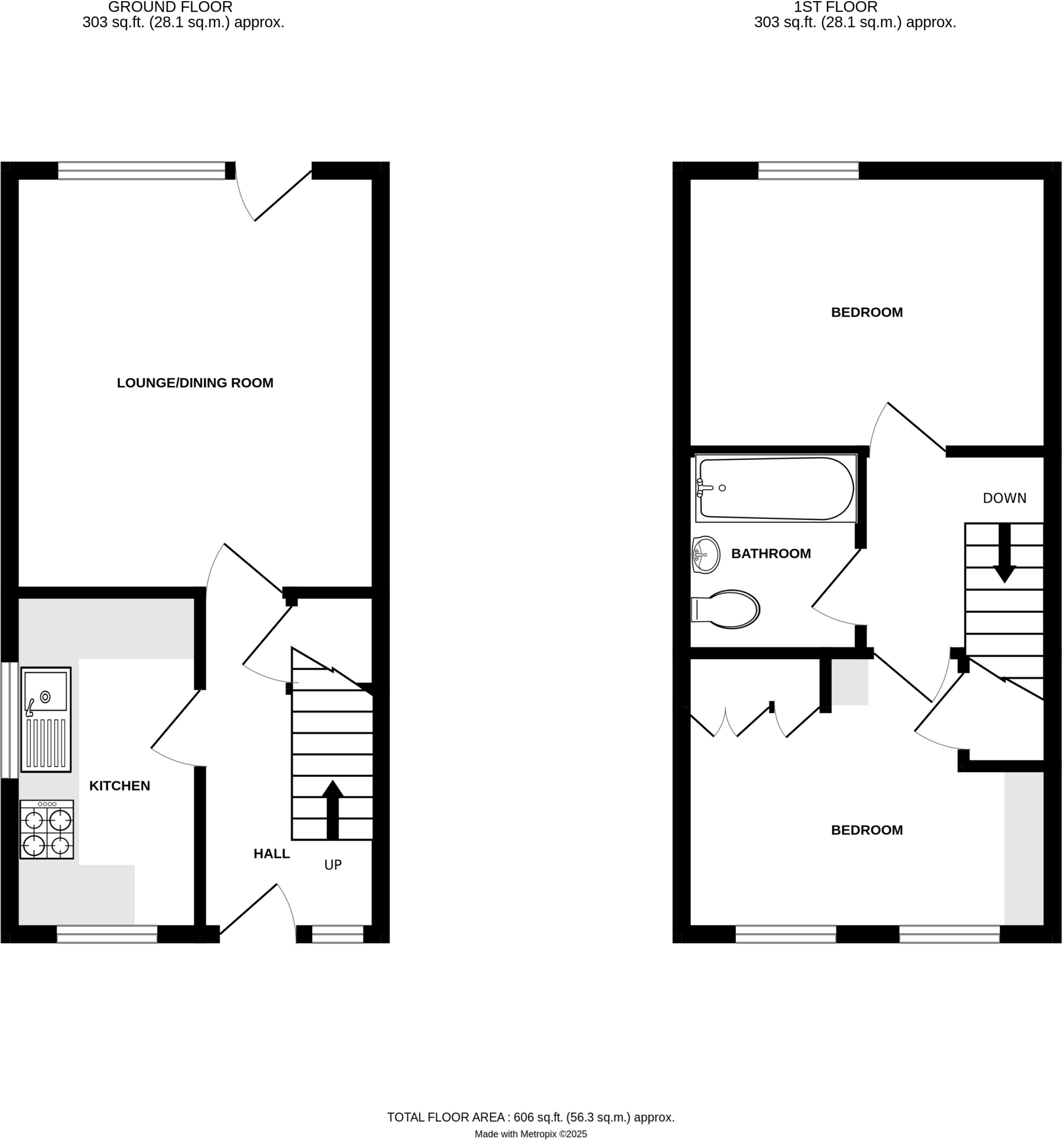
A well planned, semi detached house immediately available with 'No Chain' involved, that offers scope for modernisation, being ideal for Investment Buyers, First Time Buyers, or those who are looking to downsize. There are two double bedrooms, living room with direct access to the rear garden and...
Property Oracle says ..
Therefore, we give this property 6 / 10. *Disclaimer: This is our option and does constitute a recommendation or financial advice. Do your own research. *
- Price
- 6
- Condition
- 4
- Location
- 8
- Land
- 6
- Bedrooms
- 2
- Bathrooms
- 1
- Sqft (est)
- 606.00
The heatmap indicates the level of crime in the area. The color of the heatmap indicates the crime severity and recency.
Metrics Year-on-Year
- Average area value
- 450,680.00 £Increased by 2.66 %
- Est sale value
- 285,426.00 £Increased by 11.61 %
- Average area rental value
- 1,290.00 £/moIncreased by 8.77 %
- Est letting value
- 606.00 £/moUnchanged by 0.00 %
- Est rental Yield
- 3.43 %Increased by 5.86 %
- Crime Rate
- 3.00 %Unchanged by 0.00 %
from 438,987.00 £
from 255,732.00 £
from 1,186.00 £/mo
from 606.00 £/mo
from 3.24 %
from 3.00 %
Agent Activity
Julie Philpot created the listing.
Nearby Schools
| Name | Type | Ofsted | Distance |
|---|---|---|---|
| Kenilworth School And Sixth Form | Academy Converter | 0.28 KM | |
| Park Hill Junior School | Community School | Good | 0.57 KM |
| Thorns Community Infant School | Community School | Good | 1.15 KM |
| Crackley Hall School | Other Independent School | 1.61 KM | |
| Kenilworth Nursery School & Early Years Training Centre | Local Authority Nursery School | Outstanding | 1.93 KM |
Images
Nearby Streets
| Name | Average Price | Average Sqft | Distance |
|---|---|---|---|
| Cannadine Road | £ 375,000 | 0 | 0.00 KM |
| Hidcote Road | £ 0 | 0 | 0.00 KM |
| Field Close | £ 0 | 0 | 0.00 KM |
| Denemoor Court | £ 0 | 0 | 0.00 KM |
| Dalebrook Place | £ 0 | 0 | 0.00 KM |
Nearby Transport
| Name | NLC | TLC | Distance |
|---|---|---|---|
| Kenilworth | 7985 | KNW | 1.63 KM |
| Canley | 1129 | CNL | 6.22 KM |
| Warwick | 4600 | WRW | 6.95 KM |
| Leamington Spa | 4597 | LMS | 7.08 KM |
| Tile Hill | 1035 | THL | 7.10 KM |
Nearby Listings
| Address | Price | Type | Score | Distance |
|---|---|---|---|---|
| Courthouse Croft, Kenilworth | £ 269,950 | BUY | 6 / 10 | 0.00 KM |
| Courthouse Croft, Kenilworth | £ 189,950 | BUY | 7 / 10 | 0.16 KM |
| Turton Way, Kenilworth | £ 315,000 | BUY | 6 / 10 | 0.21 KM |
| Casita Grove, Kenilworth, CV8 | £ 875,000 | BUY | 8 / 10 | 0.23 KM |
| Turton Way, Kenilworth | £ 255,000 | BUY | Unknown | 0.26 KM |
Nearby Properties
| Address | Price | Distance |
|---|---|---|
| 20 Jackson Grove | £ 420,000 | 0.04 KM |
| 16 Jackson Grove | £ 420,000 | 0.04 KM |
| 5 Jackson Grove | £ 340,000 | 0.04 KM |
| 17 Jackson Grove | £ 370,000 | 0.04 KM |
| 9 Jackson Grove | £ 612,000 | 0.04 KM |