Elmers End Road, Beckenham
By Langford Russell
£ 365,000
Reviews
3 out of 5 stars
Langford Russell says ..
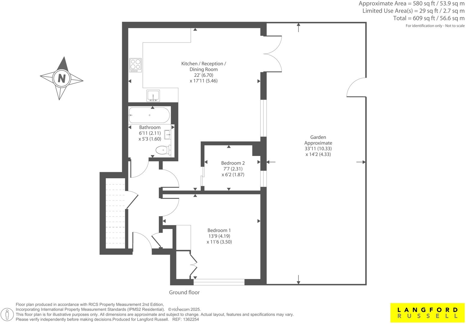
Langford Russell are delighted to market this smart property at Alexa Apartments. The development is located opposite Elmers End Station with a rail service into London Bridge in approximately 20 minutes. 620 Square feet, this boutique apartment is bright and spacious with plenty of n...
Property Oracle says ..
This is a well-presented two-bedroom apartment in Beckenham, offering a blend of modern living and convenience. The property benefits from its proximity to Elmers End station and local schools, making it an attractive option for commuters and families. The apartment features a modern kitchen and bathroom, and the inclusion of a garden is a significant bonus. While the square footage is relatively modest, the property is well-maintained and offers good value for money compared to other properties in the area. The property is located in a desirable location and is in good condition. The price is reasonable for the area.
Therefore, we give this property 7 / 10. *Disclaimer: This is our option and does constitute a recommendation or financial advice. Do your own research. *
- Price
- 7
- Condition
- 8
- Location
- 7
- Land
- 6
- Bedrooms
- 2
- Bathrooms
- 1
- Sqft (est)
- 609.00
The heatmap indicates the level of crime in the area. The color of the heatmap indicates the crime severity and recency.
Metrics Year-on-Year
- Average area value
- 666,950.00 £Increased by 20.68 %
- Est sale value
- 431,781.00 £Increased by 27.98 %
- Average area rental value
- 1,565.00 £/moDecreased by 5.89 %
- Est letting value
- 609.00 £/moUnchanged by 0.00 %
- Est rental Yield
- 2.82 %Decreased by 21.88 %
- Crime Rate
- 5.00 %Unchanged by 0.00 %
Agent Activity
Langford Russell created the listing.
Nearby Schools
| Name | Type | Ofsted | Distance |
|---|---|---|---|
| Churchfields Primary School | Academy Converter | 0.78 KM | |
| Marian Vian Primary School | Academy Converter | Good | 0.83 KM |
| Stewart Fleming Primary School | Academy Converter | Outstanding | 0.98 KM |
| Monks Orchard Primary School | Academy Converter | 0.99 KM | |
| Harris Primary Academy Kent House | Academy Sponsor Led | Outstanding | 1.40 KM |
Images
Nearby Streets
| Name | Average Price | Average Sqft | Distance |
|---|---|---|---|
| Priory Close | £ 625,000 | 0 | 0.00 KM |
| Grace Mews | £ 0 | 0 | 0.00 KM |
| Love Lane | £ 403,571 | 0 | 0.00 KM |
| Garden Road | £ 750,000 | 0 | 0.00 KM |
| Pottery Close | £ 475,000 | 0 | 0.00 KM |
Nearby Transport
| Name | NLC | TLC | Distance |
|---|---|---|---|
| Elmers End | 5049 | ELE | 0.21 KM |
| Birkbeck | 5401 | BIK | 0.71 KM |
| Clock House | 5048 | CLK | 1.47 KM |
| Kent House | 5080 | KTH | 1.49 KM |
| Anerley | 5397 | ANZ | 2.16 KM |
Nearby Listings
| Address | Price | Type | Score | Distance |
|---|---|---|---|---|
| Elmers End Road, Beckenham | £ 365,000 | BUY | 7 / 10 | 0.00 KM |
| Alexa Apartments, 255 Elmers End Road, Beckenham, BR3 | £ 360,000 | BUY | 7 / 10 | 0.00 KM |
| Elmers End Road, Beckenham | £ 675,000 | BUY | Unknown | 0.00 KM |
| Elmers End Road, Beckenham | £ 375,000 | BUY | 7 / 10 | 0.00 KM |
| Elmers End Road, Beckenham, BR3 | £ 375,000 | BUY | Unknown | 0.00 KM |
Nearby Properties
| Address | Price | Distance |
|---|---|---|
| 247 Elmers End Road | £ 540,000 | 0.01 KM |
| 255 Elmers End Road | £ 400,000 | 0.01 KM |
| 249 Elmers End Road | £ 360,000 | 0.01 KM |
| 261 Elmers End Road | £ 310,000 | 0.01 KM |
| 235 Elmers End Road | £ 650,000 | 0.01 KM |